Kindergarten Haylerstraße

Neubau eines Kindergartenpavillons

Fertigstellung Gebäude

Baumaßnahme

Neubau eines Kindergartenpavillons

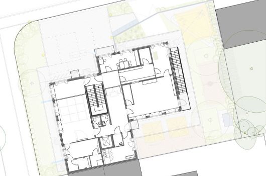
Raumprogramm

2 Kindergartengruppen, Mehrzweckraum, Intensivraum, Küche, Personal- und Nebenräume

Projektdaten

Lageplan
Lageplan

Standort
Haylerstraße

Stadtbezirk
Moosach

Größe
Nutzungsfläche: 408 Quadratmeter
Bruttogrundfläche: 713 Quadratmeter
Bruttorauminhalt: 2.662 Kubikmeter

Genehmigte Projektkosten gemäß Stadtratsbeschluss vom 25. Juli 2018
7,5 Millionen Euro

Baubeginn
II. Quartal 2019

Fertigstellung voraussichtlich
IV. Quartal 2019

Architekt (Objektplanung)
k.u.g.-architekten, München

Planung Freianlagen
Narr Rist Türk Landschaftsarchitekten BDLA, Marzling

Planungsunterlagen

Dies ist eine Bildergalerie in einem Slider. Mit den Vor- und Zurück-Kontrollelementen kann navigiert werden. Bei Klick öffnet sich ein Modal-Dialog, um das vergrößerte Bild mit weiteren Informationen anzuzeigen.

Aktuelle Meldungen

08. Juni 2020

Der Kindergartenpavillon an der Haylerstraße ist seit Juni 2020 in Betrieb. Die Einrichtung besteht aus zwei Kindergartengruppen.

Dies ist eine Bildergalerie in einem Slider. Mit den Vor- und Zurück-Kontrollelementen kann navigiert werden. Bei Klick öffnet sich ein Modal-Dialog, um das vergrößerte Bild mit weiteren Informationen anzuzeigen.

19. Dezember 2019

Die Fertigstellung des Gebäudes ist erfolgt.

Dies ist eine Bildergalerie in einem Slider. Mit den Vor- und Zurück-Kontrollelementen kann navigiert werden. Bei Klick öffnet sich ein Modal-Dialog, um das vergrößerte Bild mit weiteren Informationen anzuzeigen.

26. September 2019

Über drei Nächte hinweg wird der zweigeschossige Pavillonbau, bestehend aus 18 Sondermodulen, errichtet. Pro Nacht erfolgt die Anlieferung von sechs Modulen, die sofort platziert werden.

Dies ist eine Bildergalerie in einem Slider. Mit den Vor- und Zurück-Kontrollelementen kann navigiert werden. Bei Klick öffnet sich ein Modal-Dialog, um das vergrößerte Bild mit weiteren Informationen anzuzeigen.

Ähnliche Artikel

This is a carousel with rotating cards. Use the previous and next buttons to navigate, and Enter to activate cards.

Grundschule St.-Veit-Straße 46

Neubau einer Grundschule mit Sporthalle, Tiefgarage und Freisportflächen

Grund- und Mittelschule Rockefellerstraße 11

Neubau Grundschule und Mittelschule an der Rockefellerstraße 11 _ ehemalige Bernaysstraße 35

Gymnasien Siegfriedstraße und Karl-Theodor-Straße

Zukunft trifft Tradition: Historische Gymnasien umfassend modernisiert

Gymnasium Gmunder Straße

Neubau eines sechszügigen Gymnasiums mit Sporthalle, Tiefgarage und Nebengebäude

Grundschule Emmy-Noether-Straße

Neubau einer Grundschule mit Sporthalle, Tiefgarage und Haus für Kinder

Grundschule Welzenbachstraße

Erweiterung Grundschule am Amphionpark und Neubau des Sporttrakts