Grundschule Welzenbachstraße 12

Erweiterung Grundschule am Amphionpark und Neubau des Sporttrakts

Ansicht des neuen Erweiterungsbaus aus östlicher Richtung
Florian Holzherr
Außenansicht Grundschule Welzenbachstraße

Baumaßnahme

Erweiterung Grundschule Amphionpark und Neubau des Sporttrakts

Raumprogramm

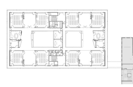
Zweizügige Grundschulerweiterung mit Unterrichtsräumen nach dem Münchner Lernhauskonzept

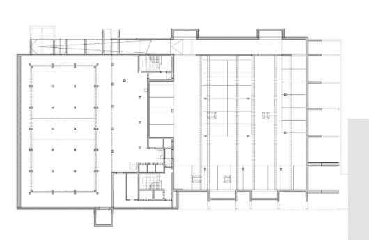
Zweifachsporthalle, Schwimmhalle mit 25-Meter-Becken und Tiefgarage

Oben im Bild: Außenansicht Grundschule Welzenbachstraße
Florian Holzherr

Projektdaten

Lageplan
Lageplan

Standort
Welzenbachstraße 12

Stadtbezirk
Moosach

Größe
Nutzungsfläche: 4.384 Quadratmeter
Brutto-Grundfläche: 6.705 Quadratmeter
Brutto-Rauminhalt: 35.400 Kubikmeter

Genehmigte Baukosten 
35,8 Millionen Euro

Voraussichtliche Abrechnung 
32,3 Millionen Euro

Baubeginn
IV. Quartal 2019

Baufertigstellung
III. Quartal 2021

Bauherrin
Landeshauptstadt München, Referat für Bildung und Sport, Projektleitung Baureferat

Architekt (Objektplanung)
Köhler Architekten + beratende Ingenieure, München

Planung Freianlagen
Büro Freiraum Berger Fuchs Landschaftsarchitekten, Freising

Architektur

Durch die Stapelung wird die Fläche effizient genutzt, wodurch das Gebäude eine optimale Gestaltung erhält. Anhand von großflächigen Glasfronten zwischen den einzelnen Nutzungsbereichen entstehen abwechslungsreiche Sichtbeziehungen, die als Orientierungspunkte dienen und eine intuitive Orientierung im Gebäude ermöglichen.

Nachhaltigkeit

Das Gebäude verfügt über eine Photovoltaikanlage und zeichnet sich durch die Verwendung warmer Holzoberflächen in den Lernhäusern und der Sporthalle aus.

Planungsunterlagen

Dies ist eine Bildergalerie in einem Slider. Mit den Vor- und Zurück-Kontrollelementen kann navigiert werden. Bei Klick öffnet sich ein Modal-Dialog, um das vergrößerte Bild mit weiteren Informationen anzuzeigen.

Meldung

03. Mai 2024

Das Baureferat der Stadt München wurde im Rahmen des ersten Schulbauprogramms damit beauftragt, die Grundschule am Amphionpark in der Welzenbachstraße um zwei weitere Züge zu erweitern und den Sporttrakt neu zu bauen. Das Gebäude besteht aus vier Nutzungseinheiten und bietet Platz für zwei Grundschulzüge im Münchner Lernhauskonzept, eine Zweifachsporthalle, eine Schwimmhalle sowie eine Tiefgarage. Der Schulhof wird zu einem zentralen Platz umgestaltet und aufgewertet, auf dem schulische und außerschulische Veranstaltungen stattfinden können. Die Sporthalle und die Schwimmhalle stehen auch für den Vereinssport zur Verfügung und sind über die Templestraße zugänglich.

Dies ist eine Bildergalerie in einem Slider. Mit den Vor- und Zurück-Kontrollelementen kann navigiert werden. Bei Klick öffnet sich ein Modal-Dialog, um das vergrößerte Bild mit weiteren Informationen anzuzeigen.

Ähnliche Artikel

This is a carousel with rotating cards. Use the previous and next buttons to navigate, and Enter to activate cards.

Grundschule St.-Veit-Straße 46

Neubau einer Grundschule mit Sporthalle, Tiefgarage und Freisportflächen

Grund- und Mittelschule Rockefellerstraße 11

Neubau Grundschule und Mittelschule an der Rockefellerstraße 11 _ ehemalige Bernaysstraße 35

Gymnasien Siegfriedstraße und Karl-Theodor-Straße

Zukunft trifft Tradition: Historische Gymnasien umfassend modernisiert

Gymnasium Gmunder Straße

Neubau eines sechszügigen Gymnasiums mit Sporthalle, Tiefgarage und Nebengebäude

Grundschule Emmy-Noether-Straße

Neubau einer Grundschule mit Sporthalle, Tiefgarage und Haus für Kinder