Hort Kopischstraße 10

Neubau eines Hortpavillons

Ansicht West

Baumaßnahme

Neubau eines Hortpavillons

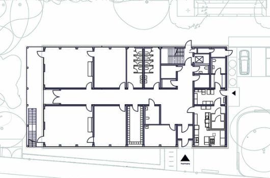
Raumprogramm

4 Hortgruppen, 4 Gruppenräume, 4 Hausaufgabenräume, Werkraum, Küche, Personal- und Nebenräume

Projektdaten

Lageplan
Lageplan
Standort
Kopischstraße 10

Stadtbezirk
Ramersdorf - Perlach

Größe
Nutzungsfläche: 776 Quadratmeter
Bruttogrundfläche: 1.229 Quadratmeter
Bruttorauminhalt: 4.917 Kubikmeter

Genehmigte Projektkosten gemäß Stadtratsbeschluss vom 25.7.2018
9,7 Millionen Euro

Baubeginn
I. Quartal 2019

Baufertigstellung
III. Quartal 2019

Architekt (Objektplanung)
Claudia Schreiber Architektur und Stadtplanung, München

Planung Freianlagen
Landschaftsarchitekturbüro Büro Freiraum, Freising

Planungsunterlagen

Dies ist eine Bildergalerie in einem Slider. Mit den Vor- und Zurück-Kontrollelementen kann navigiert werden. Bei Klick öffnet sich ein Modal-Dialog, um das vergrößerte Bild mit weiteren Informationen anzuzeigen.

Ähnliche Artikel

This is a carousel with rotating cards. Use the previous and next buttons to navigate, and Enter to activate cards.

Grundschule St.-Veit-Straße 46

Neubau einer Grundschule mit Sporthalle, Tiefgarage und Freisportflächen

Grund- und Mittelschule Rockefellerstraße 11

Neubau Grundschule und Mittelschule an der Rockefellerstraße 11 _ ehemalige Bernaysstraße 35

Gymnasien Siegfriedstraße und Karl-Theodor-Straße

Zukunft trifft Tradition: Historische Gymnasien umfassend modernisiert

Gymnasium Gmunder Straße

Neubau eines sechszügigen Gymnasiums mit Sporthalle, Tiefgarage und Nebengebäude

Grundschule Emmy-Noether-Straße

Neubau einer Grundschule mit Sporthalle, Tiefgarage und Haus für Kinder

Grundschule Welzenbachstraße

Erweiterung Grundschule am Amphionpark und Neubau des Sporttrakts