Haus für Kinder Riesstraße 49

Neubau Haus für Kinder

Visualisierung
Holzfurtner + Bahner Architekten
Visualisierung

Baumaßnahme

Neubau Haus für Kinder

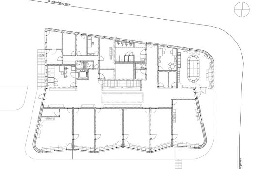
Raumprogramm

7 Gruppen mit 4 Krippen- und 3 Kindergartengruppen, 3 Multifunktionsräume, 1 Mehrzweckraum, Personal- und Nebenräume, Küche sowie anschließender Abbruch des Bestandsgebäudes

Oben im Bild: Visualisierung
Holzfurtner + Bahner Architekten

Projektdaten

Lageplan
Lageplan

Standort
Riesstraße 49

Stadtbezirk
Moosach

Größe
Nutzungsfläche: 963
Quadratmeter
Brutto-Grundfläche: 1.474 Quadratmeter
Brutto-Rauminhalt: 5.749 Kubikmeter

Genehmigte Projektkosten gemäß Stadtratsbeschluss vom 29. November 2017
5,52 Millionen Euro

Baubeginn
IV. Quartal 2018

Baufertigstellung
IV. Quartal 2019

Architekt (Objektplanung)
Holzfurtner + Bahner Architekten, München

Planung Freianlagen
Richard Pregler Garten- und Landschaftsarchitekt, München

Planungsunterlagen

Dies ist eine Bildergalerie in einem Slider. Mit den Vor- und Zurück-Kontrollelementen kann navigiert werden. Bei Klick öffnet sich ein Modal-Dialog, um das vergrößerte Bild mit weiteren Informationen anzuzeigen.

Aktuelle Meldungen

20. April 2020

Das Haus für Kinder ist seit März in Betrieb. Derzeit wird eine Notbetreuung angeboten.
Die Arbeiten an den Außenanlagen sind an der Nordseite des Geländes abgeschlossen.
Weitere Außen- und Bepflanzungsarbeiten werden derzeit getätigt.

Dies ist eine Bildergalerie in einem Slider. Mit den Vor- und Zurück-Kontrollelementen kann navigiert werden. Bei Klick öffnet sich ein Modal-Dialog, um das vergrößerte Bild mit weiteren Informationen anzuzeigen.

20. Dezember 2019

Die Baufertigstellung ist erfolgt. Das Gebäude wird an das Referat für Bildung und Sport übergeben.

28. November 2019

Der Innenausbau des Gebäudes steht kurz vor dem Abschluss. Nachdem der Estrich
trocken ist, kann mit dem Verlegen der Linoleumböden begonnen werden. In einem der
Gruppenräume im 1. Obergeschoss, werden die farblich abgestimmten Holzlamellen, mit
der Kreissäge auf die passende Länge zugeschnitten. Die Lamellen werden als
Fassadenverkleidung an der Südseite befestigt. In Kürze sind somit auch die
Fassadenarbeiten abgeschlossen.

Dies ist eine Bildergalerie in einem Slider. Mit den Vor- und Zurück-Kontrollelementen kann navigiert werden. Bei Klick öffnet sich ein Modal-Dialog, um das vergrößerte Bild mit weiteren Informationen anzuzeigen.

17. Mai 2019

Der Massivbau, Ecke Riesstraße/Pettenkoferstraße besteht aus hochwärmedämmenden
Ziegeln, die verklebt und anschließend verputzt werden. Durch dieses System entstehen
keine Wärmebrücken und die Fassade muss nicht zusätzlich gedämmt werden. Die
Fertigstellung des 1. Obergeschoss ist fast abgeschlossen und mit der Betonierung der
Decke für das Flachdach wird bereits begonnen.

Die Schalung und Betonierung der Fluchtbalkone wird vorgenommen. Im nächsten
Schritt wird die Decke über dem Obergeschoss betoniert. Hierzu kommen sogenannte
Mattenbewehrungen zum Einsatz. Über die gesamte Fläche des Flachdachs, werden sich
später Photovoltaik Module erstrecken.

Der Spielflur befindet sich noch im Rohbau. Die Betondecke über dem Erdgeschoss muss
noch richtig aushärten bevor die abgehängten Decken (Akustikdecken) montiert werden
können. Für die Innenwände hat man sich, bis auf wenige Ausnahmen, ebenfalls für
massives Mauerwerk entschieden.

Dies ist eine Bildergalerie in einem Slider. Mit den Vor- und Zurück-Kontrollelementen kann navigiert werden. Bei Klick öffnet sich ein Modal-Dialog, um das vergrößerte Bild mit weiteren Informationen anzuzeigen.

Ähnliche Artikel

This is a carousel with rotating cards. Use the previous and next buttons to navigate, and Enter to activate cards.

Grundschule St.-Veit-Straße 46

Neubau einer Grundschule mit Sporthalle, Tiefgarage und Freisportflächen

Grund- und Mittelschule Rockefellerstraße 11

Neubau Grundschule und Mittelschule an der Rockefellerstraße 11 _ ehemalige Bernaysstraße 35

Gymnasien Siegfriedstraße und Karl-Theodor-Straße

Zukunft trifft Tradition: Historische Gymnasien umfassend modernisiert

Gymnasium Gmunder Straße

Neubau eines sechszügigen Gymnasiums mit Sporthalle, Tiefgarage und Nebengebäude

Grundschule Emmy-Noether-Straße

Neubau einer Grundschule mit Sporthalle, Tiefgarage und Haus für Kinder

Grundschule Welzenbachstraße

Erweiterung Grundschule am Amphionpark und Neubau des Sporttrakts