Haus für Kinder Dülferstraße 32
Neubau Haus für Kinder
Baumaßnahme
Neubau Haus für Kinder
Raumprogramm
4 Gruppen mit 2 Krippen- und 2 Kindergartengruppen, Mehrzweckraum, Personal- und Nebenräume, Küche
Projektdaten
Standort
Dülferstraße 32
Stadtbezirk
Feldmoching
Größe
Nutzungsfläche: 718 Quadratmeter
Brutto-Grundfläche: 1.120 Quadratmeter
Brutto-Rauminhalt: 3.944 Kubikmeter
Genehmigte Projektkosten gemäß Stadtratsbeschluss vom 29. November 2017
4,11 Millionen Euro
Baubeginn
I. Quartal 2018
Baufertigstellung
III. Quartal 2019
Architekt (Objektplanung)
Betz Architekten, München
Planung Freianlagen
Valentien + Valentien Landschaftsarchitekten und Stadtplaner SRL, München
Aktuelle Meldungen
27. April 2020
Das Haus für Kinder an der Dülferstraße ist seit Januar 2020 in Betrieb. Die Einrichtung besteht aus zwei Krippen- und zwei Kindergartengruppen. Der Turnraum im Erdgeschoss bietet Platz zum Spielen und Toben. Das Oberlicht transportiert über das Treppenhaus viel natürliches Licht.
13. Januar 2020
Die Arbeiten der Außenanlagen sind fertiggestellt. Das Gebäude ist in Betrieb.
04. September 2019
Das Gebäude ist fertiggestellt und wird an das Referat für Bildung und Sport übergeben.
Die Gestaltung der Außenanlagen beginnen.
04. Juni 2019
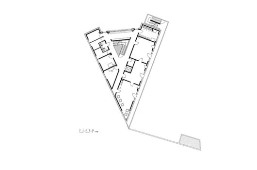
Die markante, dreieckige Gebäudeform mit der Spitze zur Dülferstraße ist das Resultat aus auf dem Grundstück vorhandener Elektroleitungen, die eine Überbauung in einem bestimmten Bereich verhinderten. Im Mehrzweckraum entstehen Kletterwand und Deckengerüst. Die Bodenarbeiten finden im Anschluss statt. Das Treppenhaus befindet sich im Herzen des Gebäudes mit noch provisorischer Absturzsicherung. Die Türen werden gerade montiert und die Elektroarbeiten abgeschlossen.