Haus für Kinder Christoph-Schmid- Straße 80
Neubau Haus für Kinder
Baumaßnahme
Neubau Haus für Kinder
Raumprogramm
8 Gruppenräume mit 2 Krippengruppen, 2 Kindergartengruppen sowie 2 Hortgruppen, Hausaufgabenraum, 2 Multifunktionsräume, Mehrzweckraum, Personal- und Nebenräume, Küche
Projektdaten
Standort
Christoph-Schmid-Straße 80
Stadtbezirk
Milbertshofen - Am Hart
Größe
Nutzungsfläche: 973 Quadratmeter
Brutto-Grundfläche: 1.453 Quadratmeter
Brutto-Rauminhalt: 5.346 Kubikmeter
Genehmigte Projektkosten gemäß Stadtratsbeschluss vom 07. August 2018
6,7 Millionen Euro
Baubeginn
I. Quartal 2019
Baufertigstellung
III. Quartal 2020
Architekt (Objektplanung)
Leistungsphase 1-5: Landherr Architekten und Stadtplaner BDA, München
Leistungsphase 6-9: Markus Zimmermann Architekt, München
Planung Freianlagen
Lynen & Dittmar Landschaftsarchitekten - Stadtplaner PartG, Freising
Aktuelle Meldungen
23. November 2020
Das Gebäude erhält eine hinterlüftete, vorgehängte Fassade, die mit kleinteiligen Faserzement-Schindeln bekleidet wird. Die Fenster und Fenstertüren sind aus Holz. Die Fensterflügel zur Nachtlüftung erhalten außenliegende, fest montierte Holzlamellen, die gleichzeitig als Sonnen- und Einbruchschutz dienen.
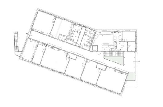
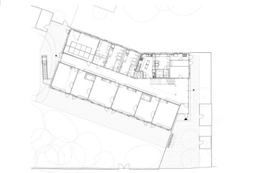
Alle Gruppen im Erdgeschoss haben direkten Zugang ins Freie und zur Freispielfläche, die Hortkinder im Obergeschoss können über Balkon und Freitreppe an der südwestlichen Gebäudeecke den Garten erreichen. An der westlichen Gebäudeseite befindet sich ein Balkon mit Außentreppe, der den ersten baulichen Rettungsweg aus den Gruppen im Obergeschoss sichert. Im Erdgeschoss befindet sich der Mehrzweckraum zum Garten orientiert. Für die Gartenspielzeuge und -möblierung wird auf der westlichen Freifläche ein Außengeräteraum errichtet.
14. September 2020
Mit dem heutigen Tag geht das Haus für Kinder in Betrieb.
24. Juli 2020
Die Einrichtung ist fertiggestellt und wird an das Referat für Bildung und Sport übergeben.
04. März 2020
Der Gebäudeeingang wird von der Christoph-Schmid-Straße über einen kleinen Vorplatz erreicht. Alle Gruppenräume sind nach Süden orientiert, die Gruppenräume für Kinderkrippe und Kindergarten liegen im Erdgeschoss und die Horträume im
Obergeschoss. Die Nebenräume sind im nördlichen Gebäudeteil untergebracht. Der nördliche und südliche Gebäudeteil ist durch einen Mittelflur verbunden, der sich nach Osten im Eingangsbereich hin öffnet. Der Eingangsbereich dient zugleich als Erschließung zwischen den beiden Geschossen und im Erdgeschoss als Elternwartebereich. Die Deckenöffnung ermöglicht Blickkontakt und Kommunikation über beide Ebenen und die gewünschten, fließenden Übergänge zwischen den einzelnen Bereichen.
16. Juli 2019
Der Rohbau ist fertiggestellt und wird mit einer vorgehängten Fassade aus kleinteiligen Faserzement-Schindeln verkleidet.
06. Mai 2019
Der zweigeschossige Massivbau aus Stahlbeton, der sich in seiner Ausrichtung am bestehenden Schulgebäude orientiert öffnet sich durch eine leichte Drehung in nordöstlicher Richtung zum großen Garten.