Grundschulhort Schöllstraße 17

Neubau eines Hortpavillons

Ansicht Ost

Baumaßnahme

Neubau eines Hortpavillons

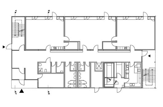
Raumprogramm

4 Hortgruppen, 4 Gruppenräume, 2 Mehrzweckräume, Personal- und Nebenräume, Küche

Projektdaten

Lageplan
Lageplan

Standort
Schöllstraße 17 - Neue Projektadresse Kupfferstraße 5c

Stadtbezirk
Allach - Untermenzing

Größe
Nutzungsfläche: 673 Quadratmeter
Bruttogrundfläche: 552 Quadratmeter
Bruttorauminhalt: 3645 Kubikmeter

Genehmigte Projektkosten gemäß Stadtratsbeschluss vom 25. Juli 2018
10,4 Millionen Euro

Baubeginn
II. Quartal 2019

Baufertigstellung
III. Quartal 2019

Architekt (Objektplanung)
macro architekten, München

Planung Freianlagen
TRR Landschaftsarchitekten Ritz und Ließmann, München

Planungsunterlagen

Dies ist eine Bildergalerie in einem Slider. Mit den Vor- und Zurück-Kontrollelementen kann navigiert werden. Bei Klick öffnet sich ein Modal-Dialog, um das vergrößerte Bild mit weiteren Informationen anzuzeigen.

Aktuelle Meldungen

09. September 2019

Die Inbetriebnahme der Grundschule ist erfolgt.

04. Juli 2019

Im 1. Obergeschoss der Grundschule werden die letzten mobilen Raumeinheiten montiert. Die Dacharbeiten sind fast abgeschlossen. Die Außenanlagen werden hergerichtet. Einige der Spielgeräte für die Freifläche sind bereits montiert. Die Installation der zentralen Lüftungsanlage auf dem Dach erfolgt. Der Linoleumboden wird in den Gruppenräumen verlegt. Der Innenausbau ist fast fertiggestellt.

In der Küche erfolgt der Aufbau und Installation der Küchengeräte. Die Elektroarbeiten sind in den letzten Zügen.

Dies ist eine Bildergalerie in einem Slider. Mit den Vor- und Zurück-Kontrollelementen kann navigiert werden. Bei Klick öffnet sich ein Modal-Dialog, um das vergrößerte Bild mit weiteren Informationen anzuzeigen.

Ähnliche Artikel

This is a carousel with rotating cards. Use the previous and next buttons to navigate, and Enter to activate cards.

Grundschule St.-Veit-Straße 46

Neubau einer Grundschule mit Sporthalle, Tiefgarage und Freisportflächen

Grund- und Mittelschule Rockefellerstraße 11

Neubau Grundschule und Mittelschule an der Rockefellerstraße 11 _ ehemalige Bernaysstraße 35

Gymnasien Siegfriedstraße und Karl-Theodor-Straße

Zukunft trifft Tradition: Historische Gymnasien umfassend modernisiert

Gymnasium Gmunder Straße

Neubau eines sechszügigen Gymnasiums mit Sporthalle, Tiefgarage und Nebengebäude

Grundschule Emmy-Noether-Straße

Neubau einer Grundschule mit Sporthalle, Tiefgarage und Haus für Kinder

Grundschule Welzenbachstraße

Erweiterung Grundschule am Amphionpark und Neubau des Sporttrakts