Grundschule Pfanzeltplatz Neubau Haus 10a

Bauteil I, Neubau Grundschule Haus 10a

Nordwestansicht Neubau
BECKER LACOUR
Grundschule Pfanzeltplatz Neubau Haus 10a

Baumaßnahme

Bauteil I, Neubau Grundschule Haus 10a

Raumprogramm

Zweizügiges Grundschulgebäude, Computerraum, Werkräume, Schulmensa

Oben im Bild: Grundschule Pfanzeltplatz Neubau Haus 10a
BECKER LACOUR

Projektdaten

Lageplan
Lageplan

Standort
Pfanzeltplatz 10a

Stadtbezirk
Ramersdorf – Perlach

Größe
Nutzungsfläche:         2.291 Quadratmeter
Brutto-Grundfläche:   3.602 Quadratmeter
Brutto-Rauminhalt:   14.699 Kubikmeter

Genehmigte Projektkosten gemäß Stadtratsbeschluss vom 18 Februar 2016
17,57 Millionen Euro

Teilprojekt III (Sanierung des bestehenden Schulgebäudes): 6,22 Millionen Euro
Teilprojekt II: (Neubau Zweifachsporthalle): 9,92 Millionen Euro
Teilprojekt I: (Neubau Schulerweiterung): 17,3 Millionen Euro

Baubeginn
III. Quartal 2016

Baufertigstellung
III. Quartal 2018

Architekt (Objektplanung)
Leistungsphase 1-5: Claus + Forster Architekten BDA, München
Leistungsphase 6-9: IMP Ingenieure, München

Planung Freianlagen
Landschaftsarchitekten EGL, Landshut

Planungsunterlagen

Dies ist eine Bildergalerie in einem Slider. Mit den Vor- und Zurück-Kontrollelementen kann navigiert werden. Bei Klick öffnet sich ein Modal-Dialog, um das vergrößerte Bild mit weiteren Informationen anzuzeigen.

Aktuelle Meldungen

Schulgrundstück: vorne Haus 10, mittig der Neubau und rechts hinter den Bäumen das historische Haus 10b

So faszinierend ist die neue Schule

Sehen und hören Sie unsere Schule ganz neu, ohne selbst hinzugehen! In bewegenden Videos und Fotos unserer multimedialen Reportagen erhalten sie virtuelle Einblicke.
Zur Multimediapräsentation

September 2018

Das Gebäude ist fertiggestellt und wurde 2018 an das Referat für Bildung und Sport übergeben

Auf dem Schulgrundstück am Pfanzeltplatz ist eine staatliche Grundschule mit einem Ganztageszug und einer Mittagsbetreuung untergebracht.

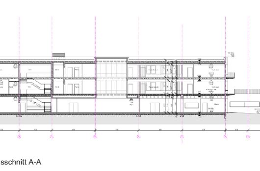
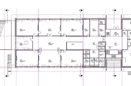
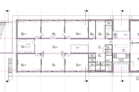
Anstelle der ehemaligen Holzpavillons wurde im Bereich des Pausenhofes ein Neubau und Erweiterungsbau, als Massivbau in Stahlbeton und Mauerwerk erstellt. Der Baukörper ist 3-geschossig und in ein Untergeschoss und zwei oberirdische Geschosse gegliedert. Darin sind zwei Einheiten gemäß des Lernhauskonzeptes für jeweils 4 Klassen, mehrere Fachräume und eine Mensa mit Küche untergebracht. Die Mensa ist als Versammlungsstätte ausgeführt.

Im Untergeschoss befinden sich die zentralen Campus-Technikräume, WC´s, Werkräume und die Mensa. Der großzügige Eingangsbereich wurde nach Norden und Süden als zweigeschossige verglaste Pfosten-Riegel-Fassade in Stahl errichtet. Die Obergeschosse gliedern sich in drei Bereiche, in das Lernhaus mit Klassenräumen, in Teamräumen mit WC-Anlagen und Garderobe sowie in Verwaltung und Fachräume. Verbindendes Element ist der zweigeschossige Treppenraum und Eingangsbereich. Das Dach ist als Flachdach mit Begrünung ausgeführt. Aufgrund der Verschattung durch den Baumbestand ist auf dem Dach keine Photovoltaik-Anlage untergebracht.

Dies ist eine Bildergalerie in einem Slider. Mit den Vor- und Zurück-Kontrollelementen kann navigiert werden. Bei Klick öffnet sich ein Modal-Dialog, um das vergrößerte Bild mit weiteren Informationen anzuzeigen.

Ähnliche Artikel

This is a carousel with rotating cards. Use the previous and next buttons to navigate, and Enter to activate cards.

Grundschule St.-Veit-Straße 46

Neubau einer Grundschule mit Sporthalle, Tiefgarage und Freisportflächen

Grund- und Mittelschule Rockefellerstraße 11

Neubau Grundschule und Mittelschule an der Rockefellerstraße 11 _ ehemalige Bernaysstraße 35

Gymnasien Siegfriedstraße und Karl-Theodor-Straße

Zukunft trifft Tradition: Historische Gymnasien umfassend modernisiert

Gymnasium Gmunder Straße

Neubau eines sechszügigen Gymnasiums mit Sporthalle, Tiefgarage und Nebengebäude

Grundschule Emmy-Noether-Straße

Neubau einer Grundschule mit Sporthalle, Tiefgarage und Haus für Kinder

Grundschule Welzenbachstraße

Erweiterung Grundschule am Amphionpark und Neubau des Sporttrakts