Grundschule Haager Straße 14- 18

Neubau einer 4-zügigen Grundschule mit integrierter 2-fach-Sporthalle

Ansicht Süd und Pausenhof
BECKERLACOUR
Grundschule Haager Straße

Baumaßnahme

Neubau einer 4-zügigen Grundschule mit integrierter 2-fach-Sporthalle

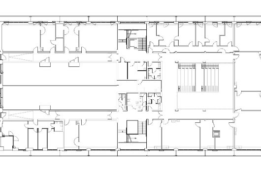
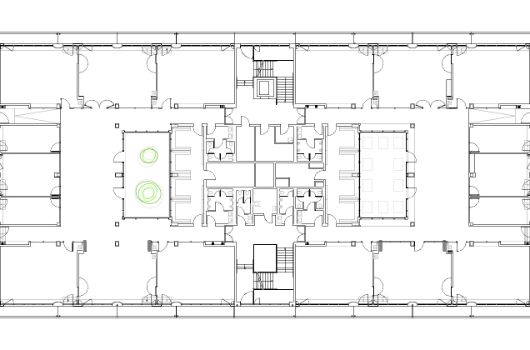
Raumprogramm

4 Lernhäuser mit je 4 Klassen und einer multifunktionalen Lernhausmitte sowie einer Sporthalle und Mensa

Oben im Bild: Grundschule Haager Straße
BECKERLACOUR

Projektdaten

Lageplan aktuell
Lageplan

Standort
Haager Straße 14-18

Stadtbezirk
Berg am Laim

Größe
Nutzungsfläche: 4.398 Quadratmeter
Brutto-Grundfläche: 7.454 Quadratmeter
Brutto-Rauminhalt: 29.775 Kubikmeter

Genehmigte Projektkosten gemäß Stadtratsbeschluss vom 12. Mai 2017
38,6 Millionen Euro

Baubeginn
I. Quartal 2018

Baufertigstellung
II. Quartal 2021

Architekt (Objekt Planung)
Leistungsphase 1-5: Raum und Bau Planungsgesellschaft mbH, München
Leistungsphase 6-9: Gerthner-Thieltges GmbH & Co. KG, Rosenheim

Planung Freianlagen
Leistungsphase 1-5: Stautner und Schäf Landschaftsarchitekten und Stadtplaner Partnerschaft mbB, München
Leistungsphase 6-9: EGL Entwicklung und Gestaltung von Landschaft GmbH, Landshut

Planungsunterlagen

Dies ist eine Bildergalerie in einem Slider. Mit den Vor- und Zurück-Kontrollelementen kann navigiert werden. Bei Klick öffnet sich ein Modal-Dialog, um das vergrößerte Bild mit weiteren Informationen anzuzeigen.

Aktuelle Meldungen

26.September 2022

Das Gebäude und die Außenanlagen konnten trotz pandemiebedingter Erschwernisse im Sommer 2021 planmäßig fertiggestellt und übergeben werden. Da der umgebende Wohnungsbau im Werksviertel noch nicht so weit ist, wird das Gebäude nun zunächst für zwei Jahre Interim als Berufsschule für Körperpflege sowie zusätzlich seit September 2022 als Förderschule genutzt. Die eigentlich nicht vorgesehenen Nutzungen konnten mit wenigen provisorischen Eingriffen sehr gut integriert werden.

Der Schulneubau liegt im industriell geprägten Bereich des Ostbahnhofs mit seinen großvolumigen Versorgungstypologien. Die städtebauliche Aufgabe bestand in der kompakten Einordnung in das neu entstehende Werksviertel. Die Gesamtanlage in unmittelbarer Nachbarschaft zum zukünftigen musikalischen Herzstück Münchens – dem neuen Konzerthaus – wird zum neuen Zentrum des entstehenden Stadtviertels. Hierzu trägt insbesondere der bereits jetzt rege genutzte Platz vor dem Haupteingang bei, der einen geschützten Baumbestand integriert und von diesem profitiert.

Die Fassade wurde im Erdgeschoß mit hellem Klinker bekleidet. Ein Material, das allgemein der ehemaligen industriellen Nutzung des Standorts Rechnung trägt und auch tatsächlich früher hier abgebaut und gebrannt wurde. Die drei Obergeschoße wurden mit warmtonigen Faserzementplatten, großflächigen Eichenfenstern und umlaufenden Fluchtbalkonen ausgestattet. Im Innenraum dominieren insbesondere in den Lernhäusern holzbekleidete Wandflächen, großzügige Glaswände und dazu kontrastierende Sichtbeton- und Farbakzente.

Die Mensa kann für schulische Veranstaltungen mit Bühne und Reihenbestuhlung umgebaut werden. Das angrenzende Forum mit großer Sitzstufen-Treppenanlage und Galerie sowie der zuschaltbare Musiksaal ergänzen diesen Bereich.

Die Sporthalle wurde sowohl organisatorisch als auch von den Abmessungen so konzipiert, dass sie zusätzlich zum Schulbetrieb für den Vereinssport genutzt werden kann. Der rückwärtige Außenbereich umfasst einen abwechslungsreich gestalteten Schulhof mit integriertem Verkehrsübungsplatz, vielfältig nutzbare Spielgeräte und für den Unterricht nutzbare Hochbeete. Darüber hinaus schließen sich hier die für den Schulbetrieb benötigten Außensportflächen an.

Dies ist eine Bildergalerie in einem Slider. Mit den Vor- und Zurück-Kontrollelementen kann navigiert werden. Bei Klick öffnet sich ein Modal-Dialog, um das vergrößerte Bild mit weiteren Informationen anzuzeigen.

Ähnliche Artikel

This is a carousel with rotating cards. Use the previous and next buttons to navigate, and Enter to activate cards.

Grundschule St.-Veit-Straße 46

Neubau einer Grundschule mit Sporthalle, Tiefgarage und Freisportflächen

Grund- und Mittelschule Rockefellerstraße 11

Neubau Grundschule und Mittelschule an der Rockefellerstraße 11 _ ehemalige Bernaysstraße 35

Gymnasien Siegfriedstraße und Karl-Theodor-Straße

Zukunft trifft Tradition: Historische Gymnasien umfassend modernisiert

Gymnasium Gmunder Straße

Neubau eines sechszügigen Gymnasiums mit Sporthalle, Tiefgarage und Nebengebäude

Grundschule Emmy-Noether-Straße

Neubau einer Grundschule mit Sporthalle, Tiefgarage und Haus für Kinder

Grundschule Welzenbachstraße

Erweiterung Grundschule am Amphionpark und Neubau des Sporttrakts