Grundschule Von-der-Pfordten-Straße _ ehemalige Camerloherstraße
Neubau einer Grundschule mit Tiefgarage und Freisportflächen
Baumaßnahme
Neubau einer Grundschule mit Tiefgarage und Freisportflächen
Raumprogramm
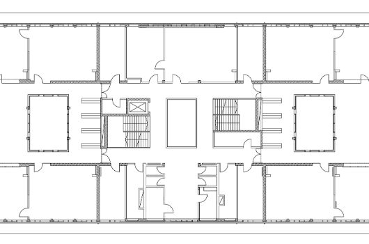
Grundschule, 5-zügig bestehend aus 5 Lernhäusern, 3 Räume für Werken und Textiles Gestalten, Fachlehrsälen, Mensa, Küche, Verwaltung im Erdgeschoss, Teilunterkellerung, Tiefgarage
Projektdaten
Standort
Camerloherstraße 110
Stadtbezirk
Laim
Größe
Nutzungsfläche: 5.249 Quadratmeter
Brutto-Grundfläche: 8.320 Quadratmeter
Brutto-Rauminhalt: 33.452 Kubikmeter
Genehmigte Projektkosten gemäß Stadtratsbeschluss
40,2 Millionen Euro
Baubeginn
I. Quartal 2019
Fertigstellung Neubau
III. Quartal 2021
Architekt (Objektplanung)
Leistungsphase 1-5: Asböck Architekten GmbH, München
Leistungsphase 6-9: Sellack Architekten und Ingenieure, München
Planung Freianlagen
ver.de Landschaftsarchitektur GbR, Freising
Aktuelle Meldungen
16. Oktober 2022
Der Neubau an der Von-der-Pfordten-Straße dient als neue Heimat für die ehemalige Grundschule Camerloherstraße aus dem Jahr 1959.
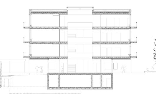
Der kompakte 4-geschossige Baukörper bildet mit der energetisch neu sanierten Sporthalle im Norden und dem Haus für Kinder im Süden des Grundstücks einen schönen geschützten Pausenhof mit großzügigem alten Baumbestand. Die lichtdurchflutete Mensa im Erdgeschoss ist nach Süden und Westen hin orientiert und kann auch als Versammlungsstätte genutzt werden. Im südlichen Bereich der Freiflächen ist eine Terrasse und ein Schulgarten situiert. Im Inneren sorgt das Farbkonzept für die einzelnen Lernhäuser für eine gute Orientierung und farbige Akzente.
Das äußere Erscheinungsbild ist durch die umlaufenden Fluchtbalkone und gelben Fassadenelemente sowie Sichtziegelwände im Sockelgeschoss und eingerücktem Obergeschoss geprägt und verleiht der Schule ein freundliches Gesamtbild.
10. Januar 2022
Die Arbeiten wurden rechtzeitig zum Schulbeginn 2021/22 fertiggestellt.
6. Juli 2021
Der Innenausbau steht kurz vor dem Abschluss. Mit den Ausarbeiten wird derzeit begonnen.
24. Februar 2021
Die Fassadenbauarbeiten und Dachabdichtungsarbeiten sind weitestgehend abgeschlossen. Die Akustikdecken in den Klassenräumen sind eingebaut und die Vorbereitung für die Bodenbeläge laufen. Aktuell finden die Fliesen- und Malerarbeiten, der Einbau der Geländer an den Innentreppen und im Lichthof, sowie die Montage der Heizungs-, Lüftungs-, Sanitär- und Elektroleitungen im Schulgebäude statt.
12. August 2020
Der Innenausbau hat begonnen.
14. Juli 2020
Die Fassade wird eingebaut.
25. Mai 2020
Der Rohbau ist fertig.
28.Januar 2020
Die Decke über dem 1.Obergeschoss ist fast fertiggestellt. Die Vorbereitungsarbeiten für den Aufbau des 2.Obergeschoss laufen bereits. Insgesamt sind für das Gebäude 4 Vollgeschosse vorgesehen.
30. Oktober 2019
Der Aushub und die Verbauarbeiten, die wegen des angrenzenden Baumbestandes notwendig waren, sind bereits erfolgt. Die Aufzugsunterfahrt und ein Teilbereich der Fundamente wurden erstellt.