Wohnquartier an der Freisinger Landstraße
Am Garchinger Mühlbach sind rund 600 Wohnungen, Kindertagesstätten, Einkaufs-, Sport- und Freizeitmöglichkeiten sowie öffentliche Grünflächen geplant.
Projekt
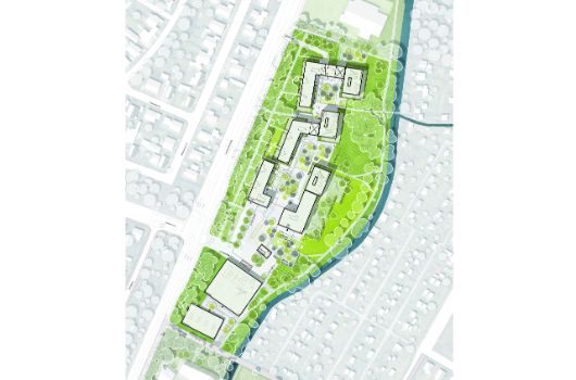
Östlich der Freisinger Landstraße soll am Garchinger Mühlbach ein neues Wohnquartier entstehen. Die Bebauung für dringend benötigte Wohnnutzung mit zugehörigen Infrastruktureinrichtungen, Sport- und Vereinsnutzungen sowie für großflächigen Einzelhandel soll sich auf den Bereich zwischen der Freisinger Landstraße und dem Garchinger Mühlbach beschränken. Die südlich des Emmerigwegs und östlich des Garchinger Mühlbachs gelegenen Flächen wurden durch den Tennispark St. Florian genutzt. Die südlich davon gelegenen, für eine Erholungsnutzung attraktiven, parkartigen Freiflächen des ehemaligen Floriansmühlbads sind derzeit für die Öffentlichkeit weder einsehbar noch zugänglich. Hier sollen öffentliche Grünflächen und Ausgleichsflächen angelegt werden.
Das Planungsgebiet eignet sich aufgrund seiner Lage und der bereits bestehenden Erschließung für die dringende Deckung des Wohnraumbedarfs in München.
Projekt-Steckbrief
Stadtbezirk: Schwabing – Freimann
Lage: östlich der Freisinger Landstraße
Fläche: zirka 13,5 Hektar
Bisher: Sport- und Freizeit, Gewerbe
Geplante Nutzungen: 600 Wohnungen, Kindertagesstätten, Gewerbe, Sport, Grünflächen
Bebauungsplan Nummer: 2113
Verfahrensstand: Satzungsbeschluss
Details zum Projekt
Das Planungsgebiet im nördlichen Stadtrandbereich Münchens, östlich der Freisinger Landstraße und nördlich der Floriansmühlstraße, umfasst unter anderem die Flächen des ehemaligen Floriansmühlbads und des ehemaligen Tennisparks St. Florian. Es liegt im Bereich der Isarauen und ist Teil eines regionalen Grünzugs. Nord- und Ostteil des Planungsgebiets befinden sich zudem innerhalb des Landschaftsschutzgebiets „Hirschau und Obere Isarau“ sowie innerhalb einer wichtigen Frischluftleitbahn.
Das Planungsgebiet besteht aus zwei Teilgebieten, die durch den Emmerigweg getrennt sind. Nördlich des Emmerigwegs sind Baukörper mit bis zu sieben Geschossen vorgesehen. Form und Anordnung der Gebäude wurden so gewählt, dass der wertvolle Baumbestand weitestgehend erhalten bleibt und der Luftaustausch sichergestellt ist. Der Baukörper im Norden des Gebiets ist durch eine grüne Fuge mit altem Baumbestand von dem Baukörper in der Mitte des Gebiets getrennt. Dieser umfasst einen begrünten Wohnhof mit gemeinschaftlichen Spiel- und Aufenthaltsbereichen und öffnet sich zum umgebenden Grün und dem Garchinger Mühlbach. Die Flächen für Gastronomie im südlichen Gebäudeteil orientieren sich zum baumüberstandenen, zentralen Platzbereich. Südlich des Platzes befinden sich Vereinssportflächen. Die Bebauung ist komplett von Grün umgeben.
Die vier- bis siebengeschossigen Wohnbauten im Teilgebiet südlich des Emmerigwegs sind versetzt zueinander angeordnet. Dadurch ist sowohl der Schallschutz zur vielbefahrenen Freisinger Landstraße hin als auch ein Blick ins Grüne und zum Garchinger Mühlbach gewährleistet. Richtung Straße bilden die Gebäude kleinere urbane Plätze aus, Richtung Grün und Wasser entstehen großzügige, begrünte Wohnhöfe.
Grundlage für den Bebauungsplanentwurf sind die Konzepte aus dem städtebaulichen und landschaftsplanerischen Wettbewerb für den Südteil sowie eine Machbarkeitsstudie für den Nordteil des Planungsteams zillerplus Architekten aus München mit den Freisinger Landschaftsarchitekten grabner huber lipp.
Es sollen insgesamt etwa 600 Wohnungen entstehen, davon bis zu 40 Prozent im geförderten Wohnungsbau.
Im Nordteil sind rund 260 Wohneinheiten geplant, dazu eine Kindertagesstätte mit zwei Kinderkrippen- und zwei Kindergartengruppen. Direkt am zentralen Platzbereich entstehen Einzelhandelsflächen. Außerdem ist eine Gaststätte mit Freischankbereich sowie eine Dreifachsporthalle mit Fitnessbereich und Freisportflächen für den Sportverein TS Jahn vorgesehen.
Im Südteil sind etwa 340 Wohneinheiten sowie eine Kindertagesstätte mit drei Kinderkrippen- und drei Kindergartengruppen vorgesehen.
Das grünordnerische Grundkonzept beruht auf dem weitestmöglichen Erhalt des Baumbestands. Dadurch soll das typische Orts- und Landschaftsbild erhalten bleiben, das durch die Lage in Nachbarschaft zu den Isarauen geprägt ist.
Es ist vorgesehen, bisher nicht zugängliche Flächen für die Allgemeinheit zu öffnen. So soll ein Teil des ehemaligen Floriansmühlbads mit seinem beeindruckenden Baumbestand in einen öffentlichen Park mit Sportangeboten umgewandelt werden. Geplant sind auch Brücken über den Mühlbach sowie neue Wege in Ost-West- und Nord-Süd-Richtung, die eine öffentliche und barrierefreie Querung des naturbelassenen Areals zu Fuß ermöglichen.
Am 11. März 2026 hat der Ausschuss für Stadtplanung und Bauordnung des Stadtrats die Änderung des Flächennutzungsplans mit integrierter Landschaftsplanung für den Bereich V/56 und den Bebauungsplan als Satzung beschlossen. Mit der Bekanntgabe des Beschlusses durch eine Veröffentlichung im Amtsblatt der Landeshauptstadt München tritt der Bebauungsplan in Kraft.
Der neue Bebauungsplan schafft die planungsrechtlichen Voraussetzungen für die städtebauliche Entwicklung des Areals.
Wettbewerb
Für den Südteil der Flächen an der Freisinger Landstraße wurde im Frühjahr/Sommer 2017 ein städtebaulicher und landschaftsplanerischer Wettbewerb durchgeführt. Für den Nordteil wurde im Frühjahr 2018 eine Machbarkeitsstudie erarbeitet. Das Planungsteam zillerplus Architekten aus München mit grabner huber lipp Landschaftsarchitekten aus Freising ging aus diesen Verfahren als Preisträger hervor. Diese Konzepte dienen als Grundlage für den Bebauungsplanentwurf.
Details zum Wettbewerb
1. Preis
zillerplus Architekten und Stadtplaner, München, mit grabner huber lipp landschaftsarchitekten und stadtplaner, Freising
Weitere Preise
2. Preis: blauraum Architekten, Hamburg, mit realgrün Landschaftsarchitekten, München
3. Preis: Grüntuch Ernst Architekten, Berlin, mit Keller Damm Kollegen Stadtplaner Landschaftsarchitekten, München
Ausloberin
Bayerische Hausbau GmbH & Co. KG und HVB Immobilien AG, München
Lage
Das 4,45 Hektar große Wettbewerbsgebiet liegt im 12. Stadtbezirk Schwabing-Freimann, östlich der Freisinger Landstraße und westlich der Sondermeierstraße zwischen Emmerigweg im Norden und der Floriansmühlstraße im Süden.
Anlass und Ziel des Wettbewerbs
Zur städtebaulichen Entwicklung der Grundstücke hat die Vollversammlung des Stadtrats der Landeshauptstadt München am 20. Juli 2016 einen Aufstellungs- und Eckdatenbeschluss gefasst, der die Vorgaben und Zielsetzungen für den städtebaulichen und landschaftsplanerischen Wettbewerb formuliert hat.
Die Bebauung soll auf das Areal zwischen Freisinger Landstraße und Garchinger Mühlbach beschränkt werden, die öffentliche Grünfläche auf die Bereiche des ehemaligen Floriansmühlbades.
Auf dem von der Freisinger Landstraße bis zum Garchinger Mühlbach reichenden Areal sollen Wohnbauflächen mit zirka 30.000 Quadratmeter Geschossfläche, eine Kindertagesstätte als integrierte Einrichtung, untergeordnet Flächen für die Nahversorgung und andere, die Wohnnutzung ergänzende gewerbliche Nutzungen entstehen.
Angesichts des aktuell sehr hohen Wohnungsbedarfs ist gemäß Eckdatenbeschluss im Rahmen des Wettbewerbes zu prüfen, inwieweit auch eine höhere Dichte auf dem Areal zu realisieren ist. Zusätzlich soll auch für die integrierte Kindertagesstätte die alternative Anordnung einer freistehenden Einrichtung unmittelbar östlich des Mühlbachs geprüft werden.
Neben der unmittelbaren Nähe zum Garchinger Mühlbach und der Grünfläche des ehemaligen Floriansmühlbads ist die städtebauliche und landschaftliche Situation des Wettbewerbsgebiets geprägt von der verkehrsreichen Freisinger Landstraße, die beidseits von erhaltenswertem Baumbestand gesäumt ist und der eher kleinteiligen Bebauung benachbarter Wohngebiete.
Die bisherige gewerbliche Nutzung wurde bereits aufgegeben, die Gebäude wurden abgebrochen. Das bestehende Wasserkraftwerk am Garchinger Mühlbach soll erhalten und weiterhin betrieben werden.
Würdigung des Preisgerichts
„Die Verfasser schlagen ein sich wiederholendes Prinzip von versetzt angeordneten, frei stehenden Häusern vor. Zur Freisinger Landstraße ergeben sich gut proportionierte städtische Eingangsplätze, von denen folgerichtig sämtliche Häuser des Quartiers erschlossen werden. Jedes Haus erhält somit eine Adresse an der Freisinger Landstraße. Zum Garchinger Mühlbach öffnet sich die Typologie mit großzügig bemessenen begrünten Wohnhöfen, die das Potenzial des Wohnens am Wasser in Gänze ausschöpfen.
Bezugnehmend auf klassische Bilder des Wohnens am Wasser werden die Gebäude teilweise direkt an die gefassten Kanten des Baches gerückt, was zu einer besonderen Wohnatmosphäre führen wird. Die polygonale Geometrie der Einzelhäuser vermeidet Engstellen zwischen den Häusern und ermöglicht nahezu jeder Wohnung einen Blick auf Park und Bach.
An der Freisinger Landstraße weicht die Bauflucht zurück und ermöglicht einen dichten Baumsaum, der in der Lage sein wird, die beiden Bestandsbiotope wirksam zu verbinden. Der wertvolle Baumbestand bleibt somit weitgehend erhalten. Es sind leicht geneigte, begrünte Dächer vorgesehen, welche den Häusern einen eigenständigen architektonischen Auftritt verleihen.
Entlang der Freisinger Landstraße werden vorwiegend kleine Wohnungen vorgeschlagen, die von der Feuerwehr folgerichtig vom inneren Erschließungsweg angeleitert werden können.
Die kompakten Punkthäuser am Bach sind je mit einem zweiten baulichen Rettungsweg geplant. Dies kommt der Gestaltung der Freibereiche mit hoher Aufenthaltsqualität zugute. Lediglich die teils direkt vor der Fassade verlaufenden Fußwege an der Freisinger Landstraße beziehungsweise auf der Nordseite der Häuser am Bach werden kritisch gesehen und bedürfen einer präziseren Zonierung.
Die Wohnungsgrundrisse lassen eine gute Umsetzbarkeit des geforderten Wohnungsschlüssels erwarten. Die vorgeschlagenen kompakten Sechsspänner bieten ein gutes Verhältnis von Hüllfläche zu Grundfläche und lassen trotz des zweiten Treppenhauses wirtschaftliche Baumaßnahmen erwarten.
Das zusätzliche sogenannte Gartentreppenhaus erscheint gerade im Hinblick auf die dort wohnenden Familien als interessantes zusätzliches Angebot. Die Erschließung aller Hauseingänge von den urbanen Eingangsplätzen ist noch nicht in letzter Konsequenz umgesetzt.
Die Bereiche zwischen den Baukörpern zur Freisinger Landstraße sind verlärmt, aber durch geschickte Anordnung der Einzelgebäude und einer entsprechenden Grundrissgestaltung erscheint die Lärmproblematik bewältigbar. Denn trotz einer offenen Bauweise bleibt der Schalleintrag ins Innere des Quartiers gering. Dies gelingt den Verfassern mit einer fein abgestimmten Anordnung und Gestaltung der Gebäude. In beiden Kindertagesstätten-Varianten ist die Freispielfläche lärmbelastet, was Lärmschutzmaßnahmen erforderlich macht.
Die integrierte Kindertagesstätte entspricht grundsätzlich den Anforderungen, jedoch sollten die Freispielflächen die geforderte Größe erreichen. Gleiches gilt für die freistehende Kindertagesstätte. Die vorgeschlagene Situierung führt jedoch zu einer ungünstigen Aufteilung der Freifläche und wird als trennendes Element im Park gesehen.
Die Stellplätze für Besucher sowie der Bring- und Holverkehr an der Floriansmühlstraße sind zu optimieren. Ein Rückwärts-Überfahren des Gehwegs ist zu vermeiden. Auch muss die bestehende Gefällesituation beachtet werden.
Insgesamt bieten die Verfasser einen Wettbewerbsbeitrag an, der differenziert auf die Probleme und Begabungen des Baugrundstücks antwortet und qualitätvolles Wohnen in angenehmer Atmosphäre ermöglicht. Ein hochwertiger und gut umsetzbaren Beitrag."
Empfehlung des Preisgerichts
"Das Preisgericht regt an, den Entwurf des ersten Preisträgers den weiteren Planungen zum Wettbewerbsgebiet zugrunde zu legen und im Übrigen grundsätzlich eine integrierte Lage der Kindertagesstätte in der Bebauung westlich des Kanals vorzusehen. Die Freiflächen könnten hierbei in die öffentliche Grünfläche integriert werden."
Preisgerichtssitzung
7. Juli 2017
Koordination
bgsm Architekten Stadtplaner, München
Details zur Machbarkeitsstudie
Machbarkeitsstudie
Im Rahmen der Machbarkeitsstudie für die nördlich an das Wettbewerbsgebiet anschließenden Flächen des Sportvereins TS Jahn („Planungsgebiet Machbarkeitsstudie“) haben die drei Preisträgerinnen des Wettbewerbs Vorschläge für einen städtebaulichen Entwurf entwickelt. Eine von den beauftragenden Wohnungsbaugesellschaften in enger Anlehnung an das Preisgericht für den Wettbewerb berufene Jury empfahl am 7. März 2018, bei der weiteren Bauleitplanung auch für das „Planungsgebiet Machbarkeitsstudie“ vom Entwurf des Planungsteams zillerplus Architekten mit grabner huber lipp Landschaftsarchitekten auszugehen.
Städtebauliche und landschaftsplanerische Grundidee
Aus Rücksicht auf die Biotope und die Allee ist der Abstand der Bebauung zur Freisinger Landstraße größer als im Südteil. Der Garchinger Mühlbach bewegt sich in einem östlichen Bogen vom Grundstück weg. So entschied man sich bei der nördlichen Wohnbebauung konsequent für eine geöffnete Blockstruktur mit innerer Erschließung. Die Frischluftschneise wird folgerichtig als Quartiersplatz genutzt und erhält im Norden und Süden eine angemessene Kante durch einerseits die Wohnbebauung und andererseits die ebenerdige Turnhalle. Unter dem Quartiersplatz entsteht eine Einzelhandelsfläche, die über die Wohnbebauung erschlossen ist. Im Osten ist der Weg entlang des Bachs geführt und bindet die Turnhallen, den Quartiersplatz und die südliche Bebauung zu einem Gesamtkonzept zusammen. Der Raum zwischen Bach und Bebauung wird zum attraktiven Freiraum und dient auch der Erschließung des neuen Quartiers.
Würdigung der Jury
- Begrüßt wird, dass der Entwurf auf die Rahmenbedingungen des Planungsareals mit einer anderen Grundkonzeption reagiert, als im südlich anschließenden Gelände.
- Der gewählte Bautypus trägt der Zielsetzung Naturschutz Rechnung und vermeidet größere Eingriffe in die Biotopflächen und den wertvollen Baumbestand.
- Durch die Situierung der Bebauung mit einem entsprechenden Abstand zur Freisinger Landstraße wird der Erhalt der bestehenden Baumallee ermöglicht. Konsequenterweise erfolgt die Erschließung und Adressierung des neuen Wohnquartiers über die urbanen Innenhöfe. Dem umgebenden wertvollen Naturraum wird mit vielfältigen Grünbezügen nach außen Rechnung getragen.
- Durch die Anordnung der Wohnbebauung in drei Abschnitten wird die Schaffung eines durchgängig geschlossenen Großbaus vermieden und die Baumasse geschickt gegliedert.
- Ein Großteil der Stellplätze wird im Untergeschoss angeordnet; die Freiflächen werden dadurch entlastet.
- Der Abstand zum nördlichen Discounter ist dem Gewerbelärm geschuldet, die stadträumliche Qualität des entstehenden Zwischenraums wird kontrovers diskutiert.
- Die angebotenen wohnungsbezogenen Freiräume sind gelungen. Die Kita-Freiflächen sind attraktiv und lärmgeschützt angeordnet.
- Der übergroße Platz entspricht der geforderten Breite der Frischluftleitbahn, ist jedoch hinsichtlich seiner Zonierung noch nicht entschieden genug ausformuliert.
- Vermisst wird ein attraktiver fußläufiger Zugang von Westen zum Naturraum am Bach. Vor allem die Anordnung der Tiefgaragen-Zufahrt und der Anlieferung für den Einzelhandel über den Platz führen hierbei zu Konflikten.
- Die Gestaltung des Zugangs zum Wohnen im Norden des Platzes über eine zentrale Öffnung zwischen zwei Kopfgebäuden ist fragwürdig.
- Durch die Stellung der ebenerdigen Sporthalle entsteht eine gute räumliche Fassung im Süden.
- Die Zweiteilung der Sportnutzung wird begrüßt. Eine direkte Anbindung von der Freisinger Landstraße oder über den Platz wird im Sinne einer guten Auffindbarkeit und Belebung der Quartiersmitte vermisst.
Überarbeitung des städtebaulichen Konzepts im Nordteil
Die Erkenntnisse aus dem Klimagutachten führten in den Jahren 2020 und 2021 anhand von Variantenprüfungen zu umfangreichen Umplanungen der städtebaulichen Struktur im Bereich des nördlichen Teilgebiets (ehemalige Vereinssportflächen).
Chronologie
03/2026 Satzungsbeschluss
12/2025 Erneute Beteiligung der Öffentlichkeit nach § 4a Absatz 3 BauGB in Verbindung mit § 3 Absatz 2 BauGB
09/2024 Beteiligung der Öffentlichkeit nach § 3 Absatz 2 BauGB
07/2024 Billigungsbeschluss
07/2018 Frühzeitige Unterrichtung der Öffentlichkeit und frühzeitige Beteiligung der Behörden
03/2018 Jurysitzung zur Machbarkeitsstudie für die Flächen des Sportvereins TS Jahn
03/2018 Erweiterung und Ergänzung des Aufstellungsbeschlusses und Entscheidung für Planungsvariante B2
03/2018 Bekanntgabe des Wettbewerbsergebnisses im Stadtrat
07/2017 Preisgerichtsitzung städtebaulicher und landschaftsplanerischer Wettbewerb
02/2017 Öffentlicher Bürgerdialog zur geplanten Wohnbebauung
07/2016 Aufstellungs- und Eckdatenbeschluss für den Bebauungsplan mit Grünordnung Nr. 2113
Urheberrechtshinweis
Alle Inhalte, insbesondere Texte, Fotografien und Grafiken sind urheberrechtlich geschützt.