Messestadt Riem

Bis 1992 befand sich auf dem Areal der Flughafen München-Riem. Nach einer Zwischennutzungsphase mit Clubkultur ist dort ein komplett neuer Stadtteil entstanden.

Digitale Ausstellung in der Stadtbibliothek Riem

Digitale Ausstellung Messestadt Riem
MRG

Eine digitale Dauerausstellung über die Messestadt Riem ist im Foyer der Stadtbibliothek Riem am Elisabeth-Castonier-Platz 19 zu sehen. Umfassend und interaktiv informiert sie über die Geschichte, die Besonderheiten und aktuellen Angebote des Stadtteils. Eine drei Meter lange Videowand mit Touchscreen lädt zum intuitiven Entdecken ein. Sie verbindet Historisches und Aktuelles und spannt den Bogen vom ehemaligen Flughafengelände bis zur heutigen Messestadt.

Zwei neue Module

Zwei neue Module ergänzen die Ausstellung.

  • Der illustrierte Videoclip „Leben in der Messestadt“ zeigt mit Szenen aus dem Stadtleben und von besonderen Orten einen typischen Tag im Quartier.
  • Das Modul „Entdecken“ lädt zu einem digitalen Spaziergang am Touchscreen ein. 14 Plätze, Gebäude und Parks werden hier  vorgestellt. Die Stationen finden Sie auch in der App „München entdecken“!

Einen Überblick über den gesamten Stadtteil gibt das städtebauliche Modell im Maßstab 1:1.000, das von der städtischen Modellwerkstatt aktualisiert wurde.

Information

Öffnungszeiten Stadtbibliotek Riem

Dienstag bis Samstag, 8 bis 22 Uhr
Sonntag, 10 bis 20 Uhr
Montag geschlossen

Bildungscampus eingeweiht

Im Juni 2025 wurde der Bildungscampus feierlich eingeweiht. Neben Gymnasium und Realschule beherbergt das acht Hektar große Areal einen neuen Standort der Volkshochschule, zwei Mehrfachsporthallen, eine Schulschwimmhalle und einen Outdoor-Sportpark.
Bildungscampus kennenlernen

Wettbewerbsergebnis fünfter Bauabschnitt Wohnen

Perspektive Anger, 5. Bauabschnitt Messestadt Riem, überarbeiteter Wettbewerbsentwurf
03 Arch. und Studio Vulkan
Perspektive überarbeiteter Entwurf von 03 Arch. mit Studio Vulkan

Im Juli 2022 wurde der städtebauliche und landschaftsplanerische Wettbewerb für den fünften Bauabschnitt entschieden - ein wichtiger Schritt für die Messestadt Riem. Die Siegerentwürfe - ein erster sowie zwei zweite Preise - wurden bis Mai 2023 überarbeitet. Anschließend wurde bekannt gegeben, dass der überarbeitete Entwurf von 03 Arch. Grundlage für die weitere Entwicklung des Quartiers sein wird.

Dieser sieht für die 25 Hektar große Fläche zwischen Kirchtrudering und der Messestadt Riem zwei klar abgegrenzte Baufelder vor, die sich entlang der neuen Entlastungsstraße durch das neue Stadtviertel erstrecken. Durch die Konzentration in den beiden Baufeldern kann ein breites Grünband dazwischen freigehalten werden, das als qualitätsvoller Freiraum den Riemer Park bis nach Kirchtrudering fortführt.

Die Siegerentwürfe Juli 2022

Für die Fläche zwischen Kirchtrudering und der Messestadt Riem sieht der Siegerentwurf des Münchner Büros 03 Architekten mit Studio Vulkan zwei Quartiere entlang der neuen Entlastungsstraße vor. Hochpunkte an den jeweiligen Quartierszentren schaffen eine räumliche Verbindung über die trennende Wirkung der Entlastungsstraße hinweg. Ein großes Grünband bildet einen qualitätsvollen Freiraum zwischen den beiden Quartieren aus und führt den Riemer Park bis nach Kirchtrudering fort.

Der Entwurf des zweiten Preisträgers, des Kölner Büros De Zwarte Hond mit RMP Stephan Lenzen Landschaftsarchitekten, überzeugt durch einen hohen Anteil an Freiflächen sowie den Wechsel zwischen verdichteten Nachbarschaften und offenen Freiraumkorridoren. Der weitere zweite Preisträger, das Berliner Studio Wessendorf mit Atelier Loidl, arbeitet mit Blockstrukturen, aufgelockert durch teilweise geöffnete Innenhöfe, die Sichtachsen ermöglichen. Akzente setzen Hochpunkte an den Ecken der Blockstrukturen.
Das Preisgericht identifizierte unterschiedliche Aspekte, die in der Überarbeitung zu lösen sind: Unter anderem wird die Freihaltung von Sichtbezügen bei allen Preisträger*innen, eine deutliche Reduzierung der unterbauten Flächen beim ersten Preis sowie eine verringerte Lärmbelastung der bestehenden Quartiere beim Beitrag von De Zwarte Hond gefordert.

Das rund 25 Hektar große Areal verbindet Kirchtrudering mit der Messestadt Riem und dem Riemer Park. Auf den unbebauten und bisher landwirtschaftlich genutzten Flächen nördlich der Eisenbahnlinie München-Rosenheim soll ein neues Stadtquartier entstehen. Neben etwa 2.500 neuen Wohnungen und Flächen für Dienstleistung und Gewerbe entstehen zahlreiche soziale Einrichtungen, darunter eine Grundschule, ein Haus für offene Kinder- und Jugendarbeit sowie Kindergärten und -krippen. Weiterhin sind Grün- und Freiflächen sowie Schulsportflächen mit Vereinsnutzung geplant. Der Ost-West-Korridor der Bahnlinie ist von hoher Bedeutung für den Biotopverbund und das Stadtklima. Daher wird die Bebauung einen entsprechenden Abstand halten. Durch das Viertel soll von Süd nach Nord eine neue Straße führen, die den Ortskern von Kirchtrudering entlasten wird.

Nachhaltigkeit spielt bei der Entwicklung des neuen Stadtteils eine zentrale Rolle: kompakte Bauformen, flächensparende Erschließungskonzepte sowie ressourcenschonende und klimaneutrale Bauweisen sind geplant. Das Viertel soll über die Geothermie der Messestadt Riem mit nachhaltiger Energie versorgt werden.

Hinter dem Projekt steht eine Eigentümergemeinschaft bestehend aus privaten und institutionellen Grundstückseigentümer*innen zusammen mit der Landeshauptstadt München. Bereits 2021 führte die Eigentümergemeinschaft eine erste Informationsveranstaltung mit Workshops durch.

Weitere Bilder des Entwurfs von 03 Arch. mit Studio Vulkan, Mai 2023

Dies ist eine Bildergalerie in einem Slider. Mit den Vor- und Zurück-Kontrollelementen kann navigiert werden. Bei Klick öffnet sich ein Modal-Dialog, um das vergrößerte Bild mit weiteren Informationen anzuzeigen.

Lagepläne der Siegerentwürfe, Juli 2022

Dies ist eine Bildergalerie in einem Slider. Mit den Vor- und Zurück-Kontrollelementen kann navigiert werden. Bei Klick öffnet sich ein Modal-Dialog, um das vergrößerte Bild mit weiteren Informationen anzuzeigen.

Der neue Stadtteil auf dem früheren Flughafengelände

Auf dem Luftbild ist der fünfte Bauabschnitt der Messestadt Riem  gekennzeichnet.
Bayer. Landesamt für Vermessung / LHM
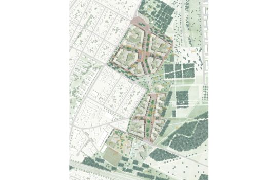
Der fünfte Bauabschnitt der Messestadt Riem

Mit dem Umzug des Flughafens ins Erdinger Moos wurde Anfang der 1990er Jahre am östlichen Stadtrand von München Platz für einen neuen Stadtteil: die Messestadt Riem, in der heute bereits 16.000 Menschen leben und 10.000 arbeiten.

Gut sieben Kilometer vom Münchner Stadtzentrum entfernt, ist die Messestadt Riem eines der größten städtebaulichen Entwicklungsgebiete Europas. Wohnen, Arbeiten und Natur sind dort eng miteinander verbunden: Auf 560 Hektar Fläche befinden sich neben einem vielfältigen Wohnungsangebot für unterschiedliche Einkommensgruppen alle wesentlichen Infrastruktureinrichtungen wie Kindergärten, Schulen, ein Kirchenzentrum, ein Friedhof, ein Altenservicezentrum, eine Polizeistation und eine Feuerwache und ein Einkaufszentrum. Die verschiedenen Gewerbeflächen bieten Raum für klassische Gewerbebetriebe oder auch für Unternehmen aus dem High-Tech-Bereich, die Neue Messe München. Der 200 Hektar große Landschaftspark mit Rodelhügel und Badesee ist über Grünzüge mit den Wohngebieten vernetzt.

Als Leitprojekt der "Perspektive München" und als Münchner Agenda21-Projekt ist der Gedanke der Nachhaltigkeit in Planung und Realisierung der Messestadt Riem als Kernziel verankert und umgesetzt worden.

Die Messestadt Riem ist ein eigenständiger Stadtteil, der nach ökologischen Grundsätzen und der Leitlinie "kompakt, urban, grün" entwickelt wurde. Das Areal ist in mehrere Abschnitte unterteilt, zentrale Ost-West-Achse ist die Willy-Brandt-Allee. Nördlich davon befinden sich die Neue Messe, der Technologiepark West, das Gewerbegebiet Ost und der Bildungscampus mit Sportpark. Südlich davon die Wohngebiete, eine Promenade mit Infrastruktureinrichtungen und der Riemer Park. Mit der U-Bahn sind es von der Messestadt West ins Münchner Stadtzentrum gut 20 Minuten. Buslinien entlang der Willy-Brandt-Allee ergänzen und verbinden die Messestadt Riem mit der östlichen Region.

Konzeptplan

Dies ist eine Bildergalerie in einem Slider. Mit den Vor- und Zurück-Kontrollelementen kann navigiert werden. Bei Klick öffnet sich ein Modal-Dialog, um das vergrößerte Bild mit weiteren Informationen anzuzeigen.

Planungsprozess und Umsetzung

Schmolche
LHM
"Schmolche" von Steffen Schuster im Durchgang zum Innenhof Helsinkistraße 8

Die Landeshauptstadt München bediente sich zur Umsetzung ihrer Ziele in der Messestadt mehrerer Instrumente:

  • Auflagen in Grundstückskaufverträgen
  • Beratung aller Bauvorhaben in der „Beratergruppe für Stadtgestaltung und Ökologie“
  • Vergabe von Bauherrenpreisen
  • mehr als 20 Planungswettbewerbe
  • Festsetzungen in Bebauungsplänen mit Grünordnung
  • Gestaltungsleitlinien
  • Freiflächenrahmenpläne
  • Ökologisches Rahmenkonzept, dokumentiert in den Ökologischen Bausteinen

Bürger- und Nutzerbeteiligung

Die Bewohner*innen beteiligen sich von Anfang an am Aufbau ihres neuen Stadtteils. Aus dem Modellprojekt der „Bürger- und Nutzerbeteiligung“ hat sich eine Vielzahl von Bürgerinitiativen entwickelt, insbesondere auch das „Bürgerforum Messestadt e.V.“, das heute Trägerverein des „Kulturzentrums“ ist. Das Bürgerforum gibt unter anderem seit dem Jahr 2000 die „Take Off!“, das Nachbarschaftsmagazin der Messestadt Riem, heraus.

Informelle Öffentlichkeitsbeteiligung zum fünften Bauabschnitt

Im Juli 2021 fand eine digitale Infoveranstaltung zum fünften Bauabschnitt der Messestadt Riem statt. In der Veranstaltung informierten Vertreter*innen der Stadt, der Eigentümergemeinschaft und des Bezirksausschusses über die Rahmenbedingungen des städtebaulichen Entwicklungsprozesses. Interessierte konnten sich via Chat mit Fragen und Anregungen beteiligen.

Die Infoveranstaltung bildete den Auftakt der informellen Öffentlichkeitsbeteiligung im Vorfeld des städtebaulichen und landschaftsplanerischen Wettbewerbs für den fünften Bauabschnitt, der die bereits bestehenden Stadtviertel verbindet und den Riemer Park im Westen abschließt. Im Anschluss an die Infoveranstaltung wurde ein Online-Dialog durchgeführt, dessen Ergebnisse im September 2021 in einem Workshop behandelt wurden.

Hier finden Sie eine Dokumentation der Öffentlichkeitsbeteiligung 2021.

Städtebauliche Wettbewerbe

1. Preis städtebaulicher und landschaftsplanerischer Ideenwettbewerb, Juli 1991 Arbeitsgemeinschaft Frauenfeld und Partner mit Landschaftsplaner Beer, Frankfurt/ Main
LHM
1. Preis städtebaulicher und landschaftsplanerischer Ideenwettbewerb 1990

Eine eigene Identität und hohe Gestaltqualität sind grundlegende Ziele in der Planung und Realisierung der Messestadt Riem. Wettbewerbe auf allen Planungsebenen, Gestaltungsregeln und eine Beratergruppe unterstützen diese Ziele.

2021/2022 - städtebaulicher und landschaftsplanerischer Wettbewerb für den fünften Bauabschnitt Wohnen am westlichen Rand des Riemer Parks

2017 - Nichtoffener Realisierungswettbewerb mit Ideenteil, Schulcampus mit Sportpark, Ausloberin: Landeshauptstadt München, vertreten durch die MRG Maßnahmeträger München-Riem GmbH, 1. Preis: h4a Gessert + Randecker Architekten, Stuttgart, mit Glück Landschaftsarchitektur, Stuttgart

2008 - Beschränkt offener städtebaulicher und landschaftsplanerischer Realisierungswettbewerb mit acht Teilnehmern für den 4. Bauabschnitt Wohnen, 1. Preis: ASTOC GmbH&Co. KG architects and planners, Köln, mit lohrer.hochrein Landschaftsarchitekten, München

1998 - Offener, einstufiger Realisierungswettbewerb in zwei Bearbeitungsphasen für den östlichen Bereich der Messestadt Riem (2. und 3. Bauabschnitt Wohnen), 1. Preisgruppe: Arbeitsgemeinschaft Goergens+Miklautz, Lynen, Billinger, München, Marzling, Stuttgart; Arbeitsgemeinschaft Burger•Ratzinger, München, Freising; Albers und Cerliani mit Hesse+Schwarze+Partner, Zürich

1995/1996 - Ideen- und Realisierungswettbewerb für den Landschaftspark München-Riem (heute: Riemer Park), 1. Preis: Büro Latitude Nord, Paris

1993 - Zweistufiger städtebaulicher und landschaftsplanerischer Ideen- und Realisierungswettbewerb, 1. Preis für Bereich Stadtkante, Messevorfeld und zentraler Platz: Architektengemeinschaft Bystrup, Bregenhøj und Partner, Kopenhagen, 1. Preis für Bereich 1. Bauabschnitt Wohnen: Arbeitsgemeinschaft Reiner•Weber•Hammer, Valentien+Valentien und Billinger München, Weßling, Stuttgart

1990/1991 - Städtebaulicher und landschaftsplanerischer Ideenwettbewerb mit vertiefender Messeplanung Künftige Nutzung Flughafengelände München-Riem, 1. Preis: Arbeitsgemeinschaft Frauenfeld und Partner, Frankfurt/Main

Beratergruppe

Der „Beratergruppe für Stadtgestaltung und Ökologie“ gehören Fachleute aus den Bereichen Architektur / Städtebau, Landschaftsplanung und Ökologie sowie Mitglieder des Stadtrats, des Bezirksausschusses, der Verwaltung und des Maßnahmeträgers an. Im Sinne konstruktiver Kritik berät sie die Stadt, private Bauherr*innen und alle Planer*innen bei der Erstellung von neuen Bauvorhaben (ohne Wettbewerb) und ist gleichzeitig ein Forum für gemeinsame Diskussion und Planungsfragen. Ziel der Präsentationen und der anschließenden Diskussionen ist und war, die Umsetzung der „Leitlinien zur Gestaltung” und Vorgaben der „Ökologischen Bausteine” zu gewährleisten.

Bauherr*innenpreise

Der Bauherr*innenpreis der Landeshauptstadt München honoriert das Engagement besonders motivierter Bauherr*innen und Architekten*innen sowie Landschaftsarchitekt*innen, die mit ihren Gebäuden und Freianlagen in besonderer Weise die Empfehlungen der „Ökologischen Bausteine” und Vorgaben der „Leitlinien zur Gestaltung” umgesetzt haben.

Die Landeshauptstadt München hat im Jahr 2000 zum ersten Mal den Bauherr*innenpreis zur Auszeichnung positiver Ansätze und Lösungen im Wohnungs- und Gewerbebau gestiftet. Bis heute sind neun Wettbewerbe mit großem Erfolg ausgelobt worden.

Details zu Wettbewerben

Messestadt Riem-Ost WA3

1. Preis

Henchion Reuter Architekten, Berlin, mit Marcel Adam Landschaftsarchitekten, Potsdam

1. Preis

Bogevischs Buero Architekten & Stadtplaner, München, mit Grabner + Huber Landschaftsarchitekten, Freising

Auslober

Gewofag Wohnen GmbH, München

Weitere Preise

2. Preis
Rüdiger Lainer + Partner Architekten ZT GmbH, Wien, mit Atelier Thomas Pucher, Graz

3. Preis
Knerer und Lang Architekten GmbH, Dresden, mit Landschaftsarchitekten Keller Damm Roser, München

Lage

Das Wettbewerbsgrundstück liegt im zweiten Bauabschnitt Wohnen der Messestadt Riem direkt an der U-Bahn-Station Messestadt Ost. Im Norden wird das Grundstück von der stark befahrenen Willy-Brandt-Allee begrenzt, im Westen von der Selma-Lagerlöf-Straße und im Süden und Osten von einer als Quartiersplatz zu gestaltenden Fläche. Der Wettbewerbsumgriff liegt im Umgriff des Bebauungsplans mit Grünordnung Nr. 2065, umfasst das Flurstück Nr. 1408/160 und hat eine Größe von zirka 7.000 Quadratmetern.

Anlass und Ziel des Wettbewerbs

Das Wettbewerbsgebiet umfasst einen Teil der letzten bislang unbebauten Grundstücke im zweitem Bauabschnitt Wohnen der Messestadt Riem. Das städtebauliche Planungskonzept und die daraus entwickelten Bebauungspläne sahen entlang der Willy-Brandt-Allee ein Band von Bürobauten vor, mit Einrichtungen zur Quartiersversorgung in den Erdgeschossen, die sich insbesondere um die U-Bahn-Station Messestadt Ost konzentrieren sollten. Die Realisierung scheiterte bislang daran, dass Büronutzungen im vorgesehenen Umfang an diesem Standort nicht der aktuellen Marktlage entsprechen. Somit fehlt auch die benötigte Nahversorgung für das Quartier. Die Stadt München hat deshalb beschlossen, die bestehenden Bebauungspläne zu ersetzen und stattdessen Baurecht für Wohnungen in Verbindung mit der ursprünglich vorgesehen Quartiersversorgung zu schaffen. Die neue Planung kommt auch dem dringenden Bedarf an Wohnraum in München entgegen.

Die städtische Wohnungsbaugesellschaft Gewofag Wohnen GmbH beabsichtigt, auf dem Wettbewerbsgrundstück günstigen Wohnraum zu schaffen und die im Bebauungsplan vorgesehenen gewerblichen und sozialen Einrichtungen (Stadtteilbibliothek, Bildungslokal, Streetwork-Außenstelle, Jugendcafé, lokales Gesundheitszentrum, Mieterzentrum der Gewofag) sowie kleinteiliges Gewerbe wie zum Beispiel Bäckerei, Kiosk, Gastronomie, Imbiss/Stehcafé und ein Bank-Serviceterminal zur Quartiersversorgung zu realisieren. Mit dem vorliegenden Wettbewerb erwartet sich die Ausloberin für das geplante Bauvorhaben gestalterisch, funktional und wirtschaftlich überzeugende Lösungen.

Würdigung des Preisgerichts: Henchion Reuter Architekten

„Ein privat geprägter Innenhof dient den Bewohnern als Rückzugs-und Kommunikationsraum abseits der umgebenden, belebten Platz-und Erschließungsflächen. Die Ausstattung und Zonierung des inneren Hofraums erscheint schlüssig, jedoch wird die gleichförmige quantitative und qualitative Ausbildung der Grün- und Freiflächen kritisch hinterfragt. Einerseits erscheint der Erschließungsanteil hoch, andererseits wird der hohe Durchgrünungsgrad positiv gesehen. Dachgärten werden ausschließlich auf dem nördlichen Bauteil angeboten und sind in Teilen nicht direkt zugänglich. Der formulierte Anspruch einer außergewöhnlichen Gestaltung müsste im Detail noch nachgewiesen werden. Die Nutzungszuordnungen in der Erdgeschosszone sind gelungen. Insbesondere wird die Situierung der Stadtteilbibliothek am U-Bahn-Aufgang als einladender Auftakt begrüßt."

Würdigung des Preisgerichts: Bogevischs Buero Architekten & Stadtplaner

"Die Bespielung der nördlichen Platzseite mit Jugendcafé, Gastronomie und Verkaufsstätten trägt zur gewünschten Belebung der Platzflächen bei. Die Anordnung der Hauszugänge auf der Hofseite erscheint in dieser Konsequenz schlüssig. Mit neun Treppenhäusern werden die Wohnbereiche sinnvoll erschlossen. Die teilweise dunklen Stichgänge könnten gegebenenfalls etwas verkürzt werden. Die Wohnungsgrundrisse sind sehr gut durchgearbeitet und zoniert. Die Fassadenversprünge ermöglichen nicht nur geschützte Freisitze, sondern auch eine mehrseitige Orientierung einzelner Räume. Die Raumtiefen ermöglichen eine gute Belichtung.

Kritisch gesehen wird die divergierende Ausarbeitung der Fassaden. Während die Platzfassade nach Süden durch Loggien und Sichtschutzbehänge maßstäblich gegliedert ist, erscheint die angedeutete Nordfassade besonders im Hinblick auf den ohnehin wenig abwechslungsreichen Straßenraum der Willy-Brandt-AIIee geradezu ungestaltet. Auch die Fassaden zur östlichen Vorplatzfläche müssen sorgfältig detailliert werden, um nicht zu schematisch zu erscheinen.

Aufgrund der kompakten Erschließungssystematik und einer klaren Grundrissstruktur, die sich in einem günstigen Verhältnis von Wohnfläche zu Grundfläche niederschlägt, ist eine wirtschaftliche Herstellung des Gebäudes sichergestellt. Die Geschoßfläche (GF) entspricht den Vorgaben, ebenso wie der Wohnungsschlüssel. Die Müllräume im Keller bedürfen einer Abweichung. 120 Fahrradabstellplätze fehlen. Etwas fraglich erscheint, dass der zentrale Fahrradraum die maximale Distanz zur Tiefgaragenrampe aufweist. Der Schutz gegenüber dem Anlagenlärm wird an der Westseite durch Schallschutzloggien sichergestellt. Durch die Laubengangerschließung an der Nordseite sind hier keine schutzbedürftigen Räume angeordnet. Die Kastenfenster der Auszubildendenwohnungen nach Osten hin lösen ebenfalls die Schallschutzanforderungen. Insgesamt ist der Beitrag in vielen Aspekten gut durchgearbeitet. Im Hinblick auf die qualitativ unterschiedliche Fassadengestaltung und Teile der Hof- und Dachflächen besteht allerdings noch deutlicher Vertiefungsbedarf."

Empfehlung des Preisgerichts

„Das Preisgericht empfiehlt dem Auslober einstimmig, einem der beiden Verfasser der mit dem ersten Preis ausgezeichneten Arbeiten die weiteren Planungsleistungen zu übertragen. Bei der weiteren Bearbeitung sollen die Anmerkungen des Preisgerichts berücksichtigt werden.“

Preisgerichtssitzung

30. Januar 2015

Koordination

Büro Landherr, München

1. Preis

03 Architekten GmbH, München, mit ver.de Landschaftsarchitektur, Freising

Weitere Preise

2. Preis: ATP Architekten, München
3. Preis: Dömges Architekten AG, Regensburg
4. Preis: Robert Meyer Architekten, München
5. Preis: yes architecture, München

Sitzung der Beratergruppe Riem

19. September 2014

Auslober

Ten Brinke Bayern Projektentwicklungs GmbH, Regensburg

Lage

Das Wettbewerbsgrundstück liegt im zweiten Bauabschnitt Wohnen der Messestadt Riem direkt an der U-Bahn-Station Messestadt Ost und gegenüber dem Eingang Ost der Messe München. Im Norden wird das Grundstück von der stark befahrenen Willy-Brandt-Allee begrenzt, im Westen von einer als Quartiersplatz zu gestaltenden Fläche, im Süden von der Michael-Ende-Straße und im Osten von der Astrid-Lindgren-Straße. Das Grundstück liegt im Umgriff des Bebauungsplans mit Grünordnung Nr. 2065 und hat eine Größe von zirka 3.360 Quadratmetern.

Anlass und Ziel des Gutachterverfahrens

Die TBB Ten Brinke Projektentwicklungs GmbH hat von der Stadt München den Zuschlag für den Erwerb des Grundstücks im Zentrum Ost der Messestadt Riem erhalten. Im Kaufvertrag verpflichtet sich der Käufer, der Beratergruppe für Stadtgestaltung und Ökologie fünf alternative Entwurfsplanungen für das Bauprojekt zur Auswahl und Realisierungsempfehlung vorzulegen.

Gegenstand des Plangutachtens ist der Neubau eines mehrgeschossigen urbanen Wohnblocks mit einem zentral über dem Erdgeschoss begrünten Innenhof, Handelsflächen im Erdgeschoss sowie Parkierungsflächen in den Untergeschossen. Der Bebauungsplan sieht für das Baufeld eine maximale oberirdische Nutzung von 9.900 Quadratmetern Bruttogeschossfläche vor.

Städtebauliches Umfeld des Wettbewerbsgrundstücks / Bestand und Planungskonzept

Das Wettbewerbsgebiet liegt am östlichen Rand der Messestadt Riem an der Willy-Brandt-Allee. Diese bildet eine städtebauliche Zäsur zwischen den großformatigen Messe- und Gewerbebauten im Norden sowie der Wohn- und Gewerbebebauung im Süden.

Auf Höhe des Wettbewerbsgebiets wurde ein Busbahnhof in den grünen Mittelstreifen der Willy-Brandt-Allee integriert. Östlich der Astrid-Lindgren-Straße bilden das Berufsschulzentrum und das angrenzende Sonderpädagogische Förderzentrum den Abschluss des Stadtteils. Südlich und westlich des Wettbewerbsgebiets besteht eine vier- bis fünfgeschossige Wohnbebauung, die im Bereich der Willy-Brandt-Allee mit einer Gebäudehöhe von sechs Geschossen durchlaufend ihren Abschluss finden soll. Südlich des Quartiersplatzes soll ein bis zu neungeschossiges Gebäude mit publikumsorientierter Nutzung im Erdgeschoss den angrenzenden Taschenpark mit einem städtebaulichen Hochpunkt begrenzen. Für dieses Neubauvorhaben liegen noch keine Planungen vor. Den westlichen Abschluss des Quartiersplatzes wird ein fünfgeschossiges Gebäude mit einem zum Platz hin orientierten Hochpunkt mit bis zu 29 Metern bilden.

Im Erdgeschoss sind verschiedene Gemeinbedarfseinrichtungen (Stadtbibliothek, Bildungslokal, Jugendcafé, Streetworkstelle, Gesundheits- und Mieterzentrum der Gewofag Wohnen GmbH) sowie kleinere Gewerbeeinheiten vorgesehen. Zusätzlich entstehen hier Wohnungen bevorzugt für Familien, Auszubildende und Studenten nach dem München Modell Miete und dem konzeptionellen Mietwohnungsbau.

Für die Planung dieses Gebäudes (WA3) wurde ein Realisierungswettbewerb (Preisgericht am 30. Januar 2015) durchgeführt. Die beiden ersten Preise gingen an Bogevischs Büro und Henchion Reuter Architekten. Der endgültige Zuschlag für das Bauvorhaben ging abschließend an das Büro Henchion Reuter Architekten.

Westlich des Grundstücks soll ein lebendiger, öffentlicher Platz mit urbanem Charakter, hoher Aufenthaltsqualität und Anbindung an die bestehenden Grün- und Freiflächen entstehen.

Der Quartiersplatz wird durch drei Hochpunkte mit bis zu neun Geschossen räumlich akzentuiert. Im Norden bildet der Quartiersplatz den Anschlusspunkt an die U-Bahnstation und den Busbahnhof. Für die Gestaltung des Quartiersplatzes wurde am 23. September 2015 ein Gutachterverfahren mit Beteiligung von drei Landschaftsarchitekturbüros durchgeführt. Die Empfehlung der Beratergruppe für Stadtgestaltung und Ökologie ging in diesem Fall an das Landschaftsarchitekturbüro Studio Vulkan.

Der Gestaltung des Platzes wurden die aus einer Bürgerbeteiligung geäußerten Wünsche zugrunde gelegt und gleichzeitig die Anforderungen der Erdgeschossnutzung aus den angrenzenden neuen Bebauungen berücksichtigt.

Die bereits hergestellte Verschwenkung der Michael-Ende-Straße wird analog der folgenden Platzgestaltung zurückgebaut. Südlich des Quartiersplatzes bildet ein „Taschenpark“ den Abschluss eines übergeordneten Grünzugs, der das Gebiet mit dem Riemer Park verbindet.

Empfehlung der Beratergruppe Riem

Das Beratergremium unterstützte die durch den Investor in der Vorprüfung bereits vorgenommene Reihung der Entwürfe und gab einstimmig eine Empfehlung zum Entwurf des Büros 03 Architekten. Da es nur wenige Überarbeitungsempfehlungen gab, wurde auf eine Wiedervorlage verzichtet.

Sitzung der Beratergruppe Riem

19. September 2014

Koordination

Blasch Architekten, München

Modell

Nichtoffener Realisierungswettbewerb

1. Preis

h4a Gessert + Randecker Architekten, Stuttgart, mit Glück Landschaftsarchitektur, Stuttgart

Weitere Preise

2. Preis: Auer Weber, München, mit ver.de Landschaftsarchitektur, Freising

3. Preis: Lehmann Architekten, Offenburg, mit w+p Landschaften, Berlin

Ausloberin

Landeshauptstadt München, vertreten durch den Maßnahmeträger München-Riem GmbH

Lage

Das Wettbewerbsgelände liegt im Münchner Osten im Stadtbezirk 15 Trudering-Riem, an der nordwestlichen Stadtkante des Stadtteils Messestadt Riem. Die Messestadt Riem mit rund 560 Hektar umfasst das Gelände des ehemaligen Flughafens München-Riem. Auf dem Wettbewerbsgelände sollte ursprünglich der zweite Teil des Technologieparks erstellt werden. Durch das Wettbewerbsareal verläuft in Ost-West-Richtung die Joseph-Wild-Straße, die gleichzeitig den westlichen Stadteileingang bildet.

Anlass und Ziel des Wettbewerbs

Die Zahl der Einwohner Münchens steigt und mit ihr auch die Zahl der Schülerinnen und Schüler. Um dem wachsenden Bedarf an schulischer Bildung gerecht zu werden, investiert die Landeshauptstadt München in neue Schulbauten. Im Dezember 2015 hat der Stadtrat beschlossen, dass in der Messestadt Riem ein Schulcampus mit einer fünfzügigen Realschule und einem sechszügigen Gymnasium mit zwei Dreifachsporthallen, einem Schulschwimmbad, ein Stadtteilzentrum der Münchner Volkshochschule und ein Sportpark auf der ehemaligen Fläche des zweiten Teils des Technologieparks West errichtet werden soll. Die Planungen für den zweiten Teil des Technologieparks werden daher nicht weiterverfolgt. Das Ergebnis des Realisierungswettbewerbs bildet die Grundlage für das erforderliche Bebauungsplanverfahren.

Würdigung des Preisgerichts (Auszug)

Die Verfasser teilen das Grundstück in einen nördlich gelegenen Ideenteil und den südlichen Schulcampus. Mit dem Vorschlag, nichtschulische Nutzungen über die ganze Länge an der Straße Am Hüllgraben anzuordnen, werden die Auslobungsvorgaben weit, aber in vertretbarem Maß ausgelegt. Der „Am Hüllgraben“ langgestreckte Baukörper schirmt das Grundstück auf einfache Weise von dem Lärm der Autobahn ab. Zwischen Gewerbe und Schule ist die Polizei- und Rettungswache situiert, die gemäß der Auslobung folgerichtig von der Paul-Wassermann-Straße erschlossen wird.

Der Schulcampus besetzt mit seiner orthogonalen geordneten Pavillonstruktur die städtebaulichen Kanten des Schulareals. Als Auftakt für die aus südöstlicher Richtung ankommenden Schüler befindet sich an der gegenüber dem Gewerbegebiet gelegenen Ecke ein wohlproportionierter Platz, der als einladende Geste von der Mensa begrenzt und belebt wird. Der Platz leitet selbstverständlich über in den offenen gemeinsamen Schulcampus, der sich zwischen den beiden Schulen aufspannt.

Das Erdgeschoss nimmt mit dem MINT-Bereich im Gymnasium und dem Kreativbereich in der Realschule die synergetischen Funktionen der beiden Schulen auf und ermöglicht so auf natürliche Weise einen selbstverständlichen Kontakt zwischen den Schülern. Leider öffnen sich die von Fachklassen umgebenen Kunst- und Experimentierhöfe nicht zu den Haupteingängen und dem Pausenhof. Von den Eingangsbereichen führen großzügige Treppen in die darüber liegenden Clusterhäuser, die sich fingerartig zum Pausenhof hin öffnen. Das geforderte Lernhauskonzept ist vollständig umgesetzt. Die integrierten Lichthöfe sind zu knapp bemessen und müssten zur Verbesserung der Belichtung und Belüftung vergrößert werden. Im ersten Obergeschoss verbindet ein schmaler Brückenbau geschickt die Schulen und beinhaltet die beiden Verwaltungen und Lehrerbereiche. So ist eine einfache Zusammenarbeit der Pädagogen möglich.

Die Mensa am öffentlichen Vorplatz mit dem zweigeschossigen Speisesaal als Versammlungsstätte kann unter Einbeziehung des davor liegenden Freibereiches für bürgerschaftliche Veranstaltungen genutzt werden. Der Eingang der Volkshochschule an der nordöstlichen Ecke des Schulgrundstücks erfüllt nicht die gewünschte leichte Auffindbarkeit von der nahe gelegenen U-Bahn.

Durch die großzügige Anordnung der Schwimm- und Sporthalle mit den externen Zugängen entlang der Planstraße im Osten verteilen sich die Zuschauer- und Sportlerströme. Die Situierung der Betriebsräume, die sich teilweise in der Unterführung und teilweise als eigenständiges Gebäude im Sportpark befinden, sind gut und ansprechend gelöst. Die Unterführung zum Sportpark ist schulseitig etwas knapp bemessen, öffnet sich jedoch zum Sportpark hin großzügig und schafft so eine angstfreie Zone.

Die Ost-West-Ausrichtung ist richtig gewählt. Der Schulhof sollte jedoch von den Proportionen im Vergleich zum Platzgefüge breiter sein. Wünschenswert wäre eine Verschiebung der Mensa nach Norden. Die Achse Plattenmeile sollte aus dem Straßenraum nach Westen verschoben werden. Der Schulgarten sollte vom großen Pausenhof abgesetzt werden. Die Freiraumkonzeption ist stimmig und richtig ausgerichtet. Die Linienführung ist aus dem Städtebau und der Landschaft abgeleitet.

Der Sportpark im Süden ist gut gelöst. Anordnung und Ausrichtung der Sportfelder entsprechen den Vorgaben. Die intensiv ausgeleuchteten Felder des Sportplatzes sollten sich jedoch zur Joseph-Wild-Straße orientieren. Die Situierung der Betriebsräume teilweise in der Unterführung und teilweise in einem eigenen Gebäude im Sportplatz ist sehr ansprechend und trägt zu einer eigenen Adressbildung bei. Die südlichen Gebäuderäume sollten aber in die Pavillonanlage integriert werden. Das südliche Oval muss mit dem nördlichen Platz im gestalterischen Zusammenhang gesehen werden.

Insgesamt stellt die Arbeit einen sehr wertvollen Beitrag zu der gestellten Aufgabe dar und erfüllt auch hinsichtlich der Pädagogik durch die gute Verbindung der beiden Schulen die gewünschten Erwartungen.

Durch die Anordnung der Baukörper auf dem Gelände rückt das Gebäude der Mensa und Volkshochschule an das bestehende Gewerbe östlich der Paul-Wassermann-Straße. Dieses Gewerbe ist mit Bebauungsplan 1728d T1 emissionskontingentiert. Der Schutz vor Verkehrslärm ist auch - solange das nördliche Gewerbe nicht abschirmend vorhanden wäre - durch baulichen Schallschutz, zum Beispiel eine Verglasung des umlaufenden Balkons, möglich. Dies betrifft Teile des Erdgeschosses sowie die Westseiten der westlichen Lernhäuser.

Die kompakte Bauform und gewählte Materialität lassen eine wirtschaftliche Bauweise erwarten und liegen auch hinsichtlich der Flächenwerte im Durchschnitt. Die Sporthallen und die Schwimmhalle werden überbaut. Hieraus resultiert eine deutlich größere Belastung des Deckentragwerkes der Hallen. Die Fassaden sind angenehm zurückhaltend und wirken durch die Rhythmisierung der Fluchtbalkone ansprechend und aufgelockert. Das Erdgeschoss bindet als durchgehender Sockel die Clusterhäuser zusammen und sorgt so für eine wohlproportionierte Höhenentwicklung.

Empfehlung des Preisgerichts (Auszug)

Das Preisgericht empfiehlt einstimmig, unter Berücksichtigung der schriftlichen Beurteilungen, die mit dem ersten Preis ausgezeichnete Arbeit der Realisierung zugrunde zu legen.

Preisgerichtssitzung

18. und 19. Mai 2017

Koordination und Wettbewerbsbetreuung

HOE architects, München

Rechtsverbindliche Bebauungspläne

Online-Kartendienst
Bebauungspläne

Riemer Park und Riemer Badesee

Riemer Badesee, Luftbild: Klaus von Mandelsloh
Klaus von Mandelsloh
Riemer Badesee, Luftbild

Als drittgrößter Münchner Park nach dem Englischen Garten und dem Nymphenburger Schlosspark ist der Riemer Park das wichtigste Naherholungsgebiet für die Messestadt Riem und die umliegenden Stadtteile. Der Riemer Park wurde nach dem Entwurf des Pariser Landschaftsarchitekten Gilles Vexlard errichtet, der 1995 mit seinem Büro Latitude Nord als Sieger aus einem internationalen Ideen- und Landschaftswettbewerb hervorging.

Der Badesee, der Rodelhügel und das südlich der Wohngebiete liegende Aktivitätenband mit der Parkterrasse und seinen vielfältigen, intensiven Spiel- und Sportangeboten bieten attraktive Erholungsmöglichkeiten. Der landschaftliche Teil des Parks im Süden mit den weiten, artenreichen Wiesen im Kontrast zu den beiden Waldmassiven, den Hainen und Gehölzstreifen bildet einen ökologisch wertvollen, naturnahen Lebensraum und ermöglicht Erholung und Naturerlebnisse. Die diagonale Ausrichtung der Pflanzungen orientiert sich an den historischen Flurgrenzen vor der Errichtung des Flughafens.

Eine besondere Attraktion ist der Riemer Badesee. Er ist mit seinen unterschiedlich gestalteten Uferzonen in den Park eingebettet: der städtischen Promenade mit Kai und Stufenanlagen, dem Kiesbadestrand, dem landschaftlichen Ufer mit Wildstaudenpflanzungen und der Flachwasserzone als natürliche Filteranlage. Wegen dieser Qualitäten und der guten Erreichbarkeit zu Fuß, mit dem Rad und mit der U-Bahn erfreut sich der See großer Beliebtheit.

Film von 2010 - deutsche Version

Beitrag auf YouTube ansehen.

Movie - English version

Beitrag auf YouTube ansehen.

Ähnliche Artikel

This is a carousel with rotating cards. Use the previous and next buttons to navigate, and Enter to activate cards.

Münchner Norden

Rund um Feldmoching wird aktuell untersucht, ob und in welchem Umfang hier ein neues lebenswertes Stück Stadt entstehen kann.

Freiham

Der neue Stadtteil im Münchner Westen für über 25.000 Menschen

Neufreimann

5.500 Wohnungen für bis zu 15.000 Menschen auf den Flächen der ehemaligen Bayernkaserne

Münchner Nordosten

Im Münchner Nordosten entsteht ab den 2030er Jahren ein Zukunftsquartier für bis zu 30.000 Menschen.

Neues Leben auf dem PaketPost-Areal

Neues Wohn- und Geschäftsviertel an der Friedenheimer Brücke