Bezirkssportanlage Surheimer Weg 3

Neubau eines Sportbetriebsgebäudes

Ansicht Nord-Ost

Baumaßnahme

Neubau eines Sportbetriebsgebäudes mit Dienstwohnung und Vereinsgaststätte, Modernisierung der Freisportanlagen

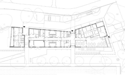
Raumprogramm

Freianlagen: Ein bestehender Tennenplatz wird zu einem Kunstrasenplatz umgewandelt. Die Platzbewässerung erfolgt durch die Errichtung eines Grundwasserbrunnens. Die Leichtathletikanlagen werden saniert und umgestaltet.

Gebäude: Das Sportbetriebsgebäude beherbergt 8 Umkleiden mit Duschen und WCs, 2 Geschäftszimmer, 1 Platzwartraum, 2 Schiedsrichterräume mit WC und Dusche, Erste-Hilfe-Raum, Werkstatt und Abstellräume sowie Geräteräume. Die Vereinsgaststätte mit Terrasse beherbergt neben Küche und Lager, einen Jugend-/ Besprechungsraum, ein Büro für Gastwirt/in mit WC und eine barrierefreie WC-Anlage (1 WC behindertengerecht) für Besucher/innen und Gäste.

Interimscontainer: Der Interimscontainer beherbergt 4 Umkleiden mit Duschen und WCs sowie 1 Platzwartraum.

Projektdaten

Lageplan
Lageplan

Standort
Surheimer Weg 3

Stadtbezirk
Sendling - Westpark

Größe
Nutzungsfläche: 929 Quadratmeter
Bruttogrundfläche: 1.576 Quadratmeter
Bruttorauminhalt: 6.520 Kubikmeter

Genehmigte Projektkosten gemäß Stadtratsbeschluss vom 29. Juni 2016
8,68 Millionen Euro

Baubeginn
Kunstrasenspielfeld: II. Quartal 2018
Gebäude: II. Quartal 2018 (Neubau)

Fertigstellung voraussichtlich
I. Quartal 2020

Architekt (Objektplanung)
Sonanini & Rutka Architekten, München

Planung Freianlagen
EGL Entwicklung und Gestaltung von Landschaft, Landshut

Planungsunterlagen

Dies ist eine Bildergalerie in einem Slider. Mit den Vor- und Zurück-Kontrollelementen kann navigiert werden. Bei Klick öffnet sich ein Modal-Dialog, um das vergrößerte Bild mit weiteren Informationen anzuzeigen.

Aktuelle Meldungen

01. Juli 2020

Die Arbeiten im Außenbereich der Bezirkssportanlage sind seit Juni vollständig abgeschlossen und fertiggestellt. Die Freisportanlagen und Ballfangzäune sind bereits seit Sommer 2019 in Betrieb.

Das Sportbetriebsgebäude ist bereits seit 1. April 2020 in Betrieb. Auch ist die Gaststätte seit diesem Datum betriebsbereit, ist aber aufgrund der aktuellen Situation noch nicht verpachtet.

Insgesamt wurden bei den Freianlagen das Kunstrasenspielfeld, die Flutlichtanlage (am Kunstrasenspielfeld und an bestehenden Spielfeldern), die Beachvolleyballanlage sowie die 400 Meter lange Kunststoffrundlaufbahn erneuert. Die Bezirkssportanlage dient sowohl dem Schul- als auch dem Vereinssport.

Dies ist eine Bildergalerie in einem Slider. Mit den Vor- und Zurück-Kontrollelementen kann navigiert werden. Bei Klick öffnet sich ein Modal-Dialog, um das vergrößerte Bild mit weiteren Informationen anzuzeigen.

15. April 2020

Die Fertigstellung der Bezirkssportanlage ist erfolgt. Die Bepflanzung des Außenbereichs mit Bäumen und Sträuchern hat bereits begonnen und wird in wenigen Wochen abgeschlossen sein.

18. November 2019

Die Fassadenarbeiten sind weitestgehend abgeschlossen. Auf das Klinkermauerwerk wurde ein Schlämmputz aus Zement aufgetragen. Im Bereich des Wirtschaftshof wird noch eine Lochblechfassade aus Metall gesetzt. Zudem beginnen die Außenarbeiten.

Im Inneren des Gebäudes werden die Lüftungsrohre für die Montage vorbereitet.
Zunächst werden diese geschlitzt, dann erfolgt das Einsetzen der Lüftungsgitter in die Lüftungsrohre und abschließend die Positionierung. 

Dies ist eine Bildergalerie in einem Slider. Mit den Vor- und Zurück-Kontrollelementen kann navigiert werden. Bei Klick öffnet sich ein Modal-Dialog, um das vergrößerte Bild mit weiteren Informationen anzuzeigen.

05. September 2019

In den Innenräume ist der Ausbau bereits in vollen Zügen. Installationsarbeiten werden durchgeführt und die Unterkonstruktion für die abhängten Decken montiert. Parallel dazu wird der Estrich gegossen und die Fliesen verlegt.

Dies ist eine Bildergalerie in einem Slider. Mit den Vor- und Zurück-Kontrollelementen kann navigiert werden. Bei Klick öffnet sich ein Modal-Dialog, um das vergrößerte Bild mit weiteren Informationen anzuzeigen.

26. August 2019

Das Gebäude am Surheimer Weg besteht aus drei Nutzungseinheiten. Mittig befindet sich das Sportbetriebsgebäude, rechts davon schließt sich die Gasstätte an und auf der linken Seite liegt die Platzwartewohnung. Die vorgesetzte Klinkerfassade ist noch von einem Gerüst umgeben. Das Mauerwerk soll im nächsten Schritt geschlämmt werden.
Die Laufbahn der Freianlagen hat bereits einen neuen Tartanbelag erhalten.

Dies ist eine Bildergalerie in einem Slider. Mit den Vor- und Zurück-Kontrollelementen kann navigiert werden. Bei Klick öffnet sich ein Modal-Dialog, um das vergrößerte Bild mit weiteren Informationen anzuzeigen.

Ähnliche Artikel

This is a carousel with rotating cards. Use the previous and next buttons to navigate, and Enter to activate cards.

Grundschule St.-Veit-Straße 46

Neubau einer Grundschule mit Sporthalle, Tiefgarage und Freisportflächen

Grund- und Mittelschule Rockefellerstraße 11

Neubau Grundschule und Mittelschule an der Rockefellerstraße 11 _ ehemalige Bernaysstraße 35

Gymnasien Siegfriedstraße und Karl-Theodor-Straße

Zukunft trifft Tradition: Historische Gymnasien umfassend modernisiert

Gymnasium Gmunder Straße

Neubau eines sechszügigen Gymnasiums mit Sporthalle, Tiefgarage und Nebengebäude

Grundschule Emmy-Noether-Straße

Neubau einer Grundschule mit Sporthalle, Tiefgarage und Haus für Kinder

Grundschule Welzenbachstraße

Erweiterung Grundschule am Amphionpark und Neubau des Sporttrakts