Verordnung zur Beschränkung der Erholung in der freien Natur aus Sicherheitsgründen im Naturschutzgebiet „Südliche Fröttmaninger Heide“ in der Landeshauptstadt München und im Landkreis München
vom 8. April 2016
Bekanntmachung: 15.04.2016 (OBABl. Nr. 9/2016, S. 116)
Änderungen:
25.06.2018 (OBABl. Nr.
13/2018, S. 177)
06.12.2018 (OBABl. Nr. 25/2018, S. 279)
15.12.2020 (OBABl. Nr. 31/2020, S. 373)
Auf Grund von § 59 Abs. 2 Satz 2 des Gesetzes über Naturschutz und Landschaftspflege (Bundesnaturschutzgesetz – BNatSchG) vom 29. Juli 2009 (BGBl I 2009 S. 2542, zuletzt geändert durch Gesetz vom 15. September 2017, BGBl I S. 3434) in Verbindung mit Art. 31 Abs. 1 und Art. 43 Abs. 2 Nr. 2 des Gesetzes über den Schutz der Natur, die Pflege der Landschaft und die Erholung in der freien Natur (Bayerisches Naturschutzgesetz – BayNatSchG) in der Fassung der Bekanntmachung vom 23. Februar 2011 (GVBl 2011 S. 82, Bay RS 791-1-U), zuletzt geändert durch Gesetz vom 15. Mai 2018 (GVBl S. 230) erlässt die Regierung von Oberbayern folgende Verordnung:
§ 1 Zweck
1Aufgrund der früheren militärischen Nutzung und möglicher Kriegseinwirkungen kann derzeit das Gefährdungspotential durch verbliebene Kampfmittel auf Teilflächen des Naturschutzgebiets „Südliche Fröttmaninger Heide“ nicht hinreichend sicher eingeschätzt werden. 2Diese Verordnung beschränkt daher zum Schutz von Leib und Leben der Erholungssuchenden die Erholung in diesem Gebiet. 3Soweit die Notwendigkeit von Beschränkungen durch Maßnahmen der Kampfmittelerkundung und -räumung entfällt, wird die Verordnung entsprechend angepasst.
§ 2 Geltungsbereich
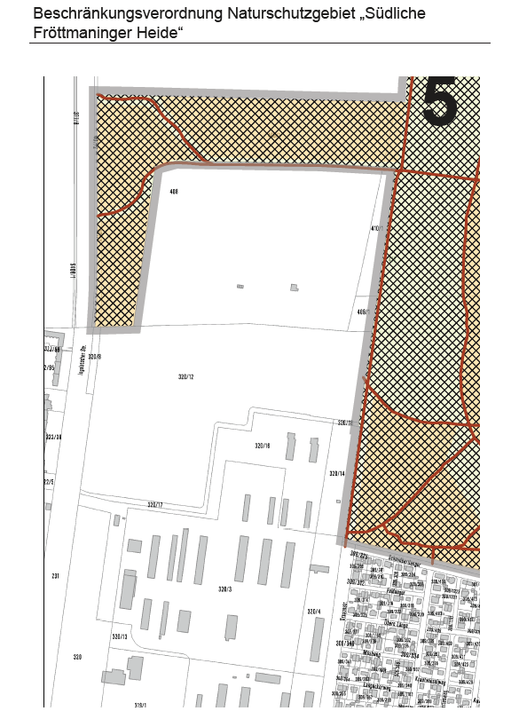
1Der Geltungsbereich der Verordnung ergibt sich aus den Verordnungskarten Maßstab (M 1 : 25.000 und M 1 : 5.000 (Anlagen[1]), die Bestandteil dieser Verordnung sind. 2Maßgebend für den Grenzverlauf ist die Karte M 1 : 5.000. 3Es gilt die Innenkante der Abgrenzungslinie.
§ 3 Verbote
(1) 1Die aus Sicherheitsgründen gesperrten Flächen und Wege ergeben sich aus der Verordnungskarte M 1 : 5.000. 2Maßgebend für die Sperrung ist die schwarzgraue Schraffur und die Punktierung der gesperrten Wege; die Darstellung der farbigen Zonierung gemäß der Verordnung über das Naturschutzgebiet „Südliche Fröttmaninger Heide“ erfolgt nur nachrichtlich und begründet kein Recht, gesperrte Flächen und Wege zu betreten. 3Es ist verboten,
1. diese Flächen und Wege zu betreten, zu befahren oder jede andere Art von Erholungsnutzung dort auszuüben; zulässig ist das Durchqueren der Flächen auf den in der Karte nicht als gesperrt gekennzeichneten Wegen; die Wege dürfen nicht verlassen werden,
2. auf diesen Flächen und Wegen Hunde mitzuführen oder laufen zu lassen; zulässig ist das Mitführen von Hunden an der kurzen Leine (bis 2 m Länge) auf den Wegen gemäß Nr. 1 2. Halbsatz.
(2) 1Im gesamten Geltungsbereich dieser Verordnung ist es verboten,
1. Sondierungs- oder Grabungsgeräte aller Art mitzuführen oder zu gebrauchen
2. zu graben oder sonstige Eingriffe in die Bodenstruktur vorzunehmen.
3. Kampfmittel oder Kampfmittelreste zu suchen, zu sammeln, zu bearbeiten oder in sonstiger Weise zu behandeln oder in Besitz zu nehmen; Kampfmittel sind alle zur Kriegsführung bestimmten Gegenstände (wie z. B. Minen und Granaten) oder Teile davon, Munition und Waffen nach dem Waffengesetz, auch wenn sie beschädigt oder unbrauchbar geworden sind.
2Im Falle eines Kampfmittelfundes ist unverzüglich die Polizei zu verständigen.
(3) 1Die Beschränkungen gelten nicht für den Grundeigentümer und von ihm beauftragte Personen. 2Der Grundeigentümer weist beauftragte Personen, soweit diese nicht selbst über entsprechende Kenntnisse verfügen, auf die bei der Durchführung des Auftrags zu beachtenden Vorsichtsmaßnahmen hin.
(4) 1Die Beschränkungen gelten ebenfalls nicht für Personen, die ein selbständiges besonderes Betretungsrecht haben, insbesondere den Jagdberechtigten, sowie für Mitarbeiter von Behörden sowie deren Beauftragte im Rahmen ihrer gesetzlichen Aufgabenerfüllung. 2Der Grundeigentümer stellt diesen Personen auf Anforderung die bei ihm vorhandenen Informationen bezüglich der Kampfmittelbelastung zur Verfügung.
(5) 1Für die Fortführung des Betriebs des bestehenden Modellflugplatzes durch die Interessengemeinschaft für ferngelenkte Modelle e. V (IFM) München im bisherigen Umfang gilt Folgendes:
1. Ausgenommen von den Verboten gemäß § 3 Abs. 1 und 2 ist die Nutzung der in der Karte M 1 : 5.000 zu dieser Verordnung als Modellflugplatz gekennzeichneten Fläche, soweit sie gemäß § 7 Abs. 1 Nr. 10 der Verordnung über das Naturschutzgebiet „Südliche Fröttmaninger Heide“ vom 08. April 2016 zulässig ist; jede andere Art der Erholungsnutzung ist auf dieser Fläche verboten.
2. Ausgenommen
vom Verbot des § 3 Abs. 1 Nr. 1 ist außerdem das Überfliegen mit
Modellflugzeugen sowie das Betreten der gesperrten Flächen und Wege zur Bergung
von Modellflugzeugen außerhalb des Modellflugplatzes, soweit es gemäß § 7 Abs.
1 Nr. 10 e und f der Verordnung über das Naturschutzgebiet „Südliche
Fröttmaninger Heide“ vom
08. April 2016 zulässig ist.
2Die Verpflichtung, im Falle eines Kampfmittelfundes unverzüglich die Polizei zu verständigen (§ 3 Abs. 2 Satz 2), bleibt unberührt.
§ 4 Ordnungswidrigkeiten
1Nach Art. 57 Abs. 2 Nr. 3 BayNatSchG kann mit Geldbuße bis zu fünfundzwanzigtausend Euro belegt werden, wer einem Verbot des § 3 zuwiderhandelt. 2Bei fahrlässigem Handeln kann die Geldbuße nach Art. 57 Abs. 3 BayNatSchG bis zu zehntausend Euro betragen.
§ 5 Verhältnis zu anderen Vorschriften
(1) 1Die Regelungen der Verordnung über das Naturschutzgebiet „Südliche Fröttmaninger Heide“ in der Landeshauptstadt München und im Landkreis München in ihrer jeweiligen Fassung bleiben unberührt, soweit nicht diese Verordnung weitergehende Beschränkungen enthält; weitergehende Beschränkungen in dieser Verordnung haben Vorrang. 2In der Verordnungskarte M 1 : 5.000 sind die in der Verordnung über das Naturschutzgebiet ausgewiesenen Zonen und Wege nachrichtlich dargestellt.
(2) Weitergehende Anordnungen der zuständigen Behörden bleiben unberührt.
§ 6 Inkrafttreten
Diese Verordnung tritt am 9. Mai 2016 in Kraft.







[1] Hinweis: Die Karte M 1 : 5000 vom 6. Dezember 2018 wird ersetzt durch die Karte M 1 : 5000 vom 15. Dezember 2020, die Anlage und Bestandteil der dritten Verordnung zur Änderung dieser Verordnung ist.