Verordnung zur Beschränkung der Erholung in der freien Natur aus Sicherheitsgründen im Naturschutzgebiet „Südliche Fröttmaninger Heide“ in der Landeshauptstadt München und im Landkreis München
vom 8. April 2016
Bekanntmachung: 15.04.2016 (OBABl. Nr. 9/2016, S. 116)
Aufgrund von § 59 Abs. 2 Satz 2 des Gesetzes über Naturschutz und Landschaftspflege (Bundesnaturschutzgesetz - BNatSchG) vom 29.07.2009 (BGBl. I S. 2542, zuletzt geändert durch Verordnung vom 31.08.2015, BGBl. I S. 1474) in Verbindung mit Art. 31 Abs. 1 und Art. 43 Abs. 2 Nr. 2 des Gesetzes über den Schutz der Natur, die Pflege der Landschaft und die Erholung in der freien Natur (Bayerisches Naturschutzgesetz - BayNatSchG) in der Fassung der Bekanntmachung vom 23.02.2011 (GVBl. S. 82, BayRS 791-1-U), zuletzt geändert durch Gesetz vom 22.12.2015 (GVBl. S. 458) erlässt die Regierung von Oberbayern folgende Verordnung:
§ 1 Zweck
Aufgrund der früheren militärischen Nutzung und möglicher Kriegseinwirkungen kann derzeit das Gefährdungspotential durch verbliebene Kampfmittel auf Teilflächen des Naturschutzgebiets „Südliche Fröttmaninger Heide“ nicht hinreichend sicher eingeschätzt werden. Diese Verordnung beschränkt daher zum Schutz von Leib und Leben der Erholungssuchenden die Erholung in diesem Gebiet. Soweit die Notwendigkeit von Beschränkungen durch Maßnahmen der Kampfmittelerkundung und -räumung entfällt, wird die Verordnung entsprechend angepasst.
§ 2 Geltungsbereich
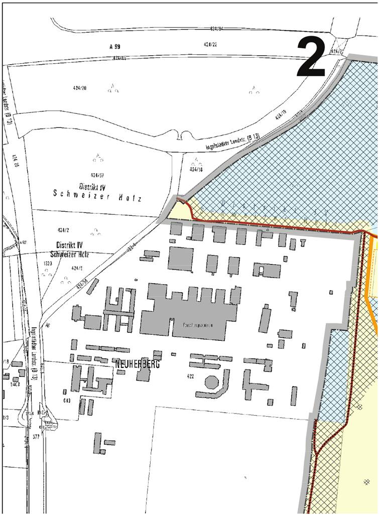
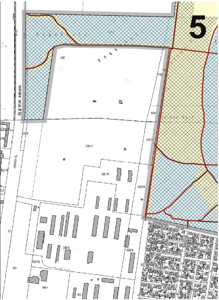
Der Geltungsbereich der Verordnung ergibt sich aus dem Verordnungskarten Maßstab (M 1 : 25.000 und M 1 : 5.000) (Anlagen), die Bestandteil dieser Verordnung sind. Maßgebend für den Grenzverlauf ist die Karte M 1 . 5.000. Es gilt die Innenkante der Abgrenzungslinie.
§ 3 Verbote
Die aus Sicherheitsgründen gesperrten Flächen und Wege ergeben sich aus der Verordnungskarte M 1 :5.000. Maßgebend für die Sperrung ist die schwarzgraue Schraffur und die Punktierung der gesperrten Wege; die Darstellung der Farbigen Zonierung gemäß der Verordnung über das Naturschutzgebiet „Südliche Fröttmaninger Heide“ erfolgt nur nachrichtlich und begründet kein Recht, gesperrte Flächen und Wege zu betreten. Es ist verboten,
1. diese Flächen und Wege zu betreten, zu befahren oder jede andere Art von Erholungsnutzung dort auszuüben; zulässig ist das Durchqueren der Flächen auf den in der Karte nicht als gesperrt gekennzeichneten Wegen; die Wege dürfen nicht verlassen werden,
2.
auf diesen Flächen und Wegen Hunde mitzuführen
oder laufen zu lassen; zulässig ist das Mitführen von Hunden an der kurzen
Leine (bis 2 m Länge) auf den Wegen gemäß Nr. 1 2. Halbsatz.
(2) Im gesamten Geltungsbereich dieser Verordnung ist es verboten,
1. Sondierungs- oder Grabungsgeräte aller Art mitzuführen oder zu gebrauchen.
2. zu graben oder sonstige Eingriffe in die Bodenstruktur vorzunehmen.
3.
Kampfmittel oder Kampfmittelreste zu suchen, zu
sammeln, zu bearbeiten oder in sonstiger Weise zu behandeln oder in Besitz zu
nehmen; Kampfmittel sind alle zur Kriegsführung bestimmten Gegenstände (wie
z.B. Minen und Granaten) oder Teile davon, Munition und Waffen nach dem Waffengesetz,
auch wenn sie beschädigt oder unbrauchbar geworden sind.
Im Falle eines Kampfmittelfundes ist unverzüglich die Polizei zu verständigen.
(3) Die Beschränkungen gelten nicht für den Grundeigentümer und von ihm beauftragte Personen. Der Grundeigentümer weist beauftragte Personen, soweit diese nicht selbst über entsprechende Kenntnisse verfügen, auf die bei der Durchführung des Auftrags zu beachtenden Vorsichtsmaßnahmen hin.
(4) Die Beschränkungen gelten ebenfalls nicht für Personen, die ein selbständiges besonderes Betretungsrecht haben, insbesondere den Jagdberechtigten, sowie für Mitarbeiter von Behörden sowie deren Beauftragte im Rahmen ihrer gesetzlichen Aufgabenerfüllung. Der Grundeigentümer stellt diesen Personen auf Anforderung die bei ihm vorhandenen Informationen bezüglich der Kampfmittelbelastung zur Verfügung.
§ 4 Ordnungswidrigkeiten
Nach Art. 57 Abs. 2 Nr. 3 BayNatSchG kann mit Geldbuße bis zu fünfundzwanzigtausend Euro belegt werden, wer einem Verbot des § 3 zuwiderhandelt. Bei fahrlässigem Handeln kann die Geldbuße nach Art. 57 Abs. 3 BayNatSchG bis zu zehntausend Euro betragen.
§ 5 Verhältnis zu anderen Vorschriften
(1) Regelungen der Verordnung über das Naturschutzgebiet „Südliche Fröttmaninger Heide“ in der Landeshauptstadt München und im Landkreis München in ihrer jeweiligen Fassung bleiben unberührt, soweit nicht diese Verordnung weitergehende Beschränkungen enthält; weitergehende Beschränkungen in dieser Verordnung haben Vorrang. In der Verordnungskarte M 1 : 5.000 sind die in der Verordnung über das Naturschutzgebiet ausgewiesenen Zonen und Wege nachrichtlich dargestellt.
(2) Weitergehende Anordnungen der zuständigen Behörden bleiben unberührt.
§ 6 Inkrafttreten
Diese Verordnung tritt am 9. Mai 2016 in Kraft.






