Verordnung über das Naturschutzgebiet “Südliche Fröttmaninger Heide“
in der Landeshauptstadt München
und im Landkreis München
vom 8. April 2016
Bekanntmachung: 15.04.2016 (OBABl. Nr. 9/2016, S. 101)
Änderungen: 15.12.2020 (OBABl. Nr. 31/2020, S. 359)
Auf Grund von § 23 und § 32 Abs. 2 und 3 sowie § 59 Abs. 2 Satz 2 des Gesetzes über Naturschutz und Landschaftspflege (Bundesnaturschutzgesetz - BNatSchG) vom 29.07.2009 (BGBl. I S. 2542, zuletzt geändert durch Verordnung vom 31.08. 2015 BGBl. I S. 1474) in Verbindung mit Art. 31 Abs. 1, Art. 51 Abs. 1 Nr. 2 und Art. 43 Abs. 2 Nr. 2 des Gesetzes über den Schutz der Natur, die Pflege der Landschaft und die Erholung in der freien Natur (Bayerisches Naturschutzgesetz - BayNatSchG) in der Fassung der Bekanntmachung vom 23.02. 2011 (GVBl. S. 82, BayRS 791-I-U), zuletzt geändert durch Gesetz vom 22.12.2015 (GVBl. S. 458), erlässt die Regierung von Oberbayern folgende Verordnung:
§ 1 Schutzgegenstand
Der südliche Teil der Fröttmaninger Heide als Teil der eiszeitlichen Schotterlandschaft im Norden Münchens mit seinen Kalkmagerrasen und lichten Kiefernwaldbeständen wird unter der Bezeichnung „Südliche Fröttmaninger Heide“ in den in § 2 näher bezeichneten Grenzen als Naturschutzgebiet geschützt. Der Schutz erstreckt sich auch auf Teilflächen des Gebiets von gemeinschaftlicher Bedeutung (FFH-Gebiet) „Heideflächen und Lohwälder nördlich von München“, Nr. 7735-371.
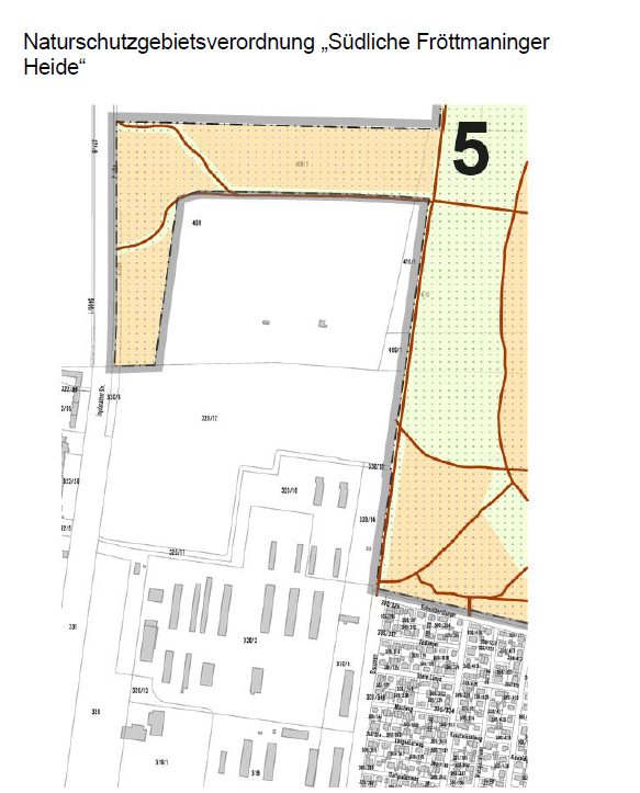
§ 2 Schutzgebietsgrenzen
(1) Das Schutzgebiet liegt in der Landeshauptstadt München, Gemarkung Freimann, der Stadt Garching bei München, Gemarkung Garching bei München, und der Gemeinde Oberschleißheim, Gemarkung Oberschleißheim. Es hat eine Größe von ca. 347,0 ha und umfasst Teilbereiche des Gebiets von gemeinschaftlicher Bedeutung (FFH-Gebiet) „Heideflächen und Lohwälder nördlich von München“, Nr. 7735-371, mit einer Größe von ca. 332,0 ha.
(2) Die
Grenzen des Schutzgebietes ergeben sich aus den Schutzgebietskarten Maßstab (M)
1 : 25.000 und M 1 : 5.000 (Anlagen), die Bestandteil dieser Verordnung sind.
Maßgebend für den Grenzverlauf ist die Karte M 1 : 5.000. Es gilt die
Innenkante der Abgrenzungslinie. In den Karten ist auch der Teilbereich des
Gebiets von gemeinschaftlicher Bedeutung (FFH-Gebiet) „Heideflächen und
Lohwälder nördlich von München“, Nr. 7735-371, dargestellt; maßgebend für den
Grenzverlauf ist die Bayerische Natura 2000-Verordnung vom 19.02.2016 (AllMBl.
3/2016 S. 258) in ihrer jeweiligen Fassung.
§ 3 Schutzzweck
(1) Zweck der Festlegung des Naturschutzgebietes „Südliche Fröttmaninger Heide“ ist es,
1. die landesweit bedeutsamen Magerrasen der Fröttmaninger Heide als großräumiges Relikt der Heideflächen des Münchener Nordens sowie die Übergangszonen zwischen dem offenen Magerrasen und den Waldflächen zu erhalten und entsprechend zu bewirtschaften,
2. die landesweit bedeutsamen Lebensgemeinschaften der Grasheiden, lichten Kiefernwälder, aquatischen und terrestrischen Pionierlebensräume, Wärme liebenden Waldsäume und Waldlichtungen mit ihren typischen, seltenen und gefährdeten Pflanzen- und Tierarten in ihrem Lebensraum zu erhalten, zu fördern, zu vernetzen und entsprechend zu bewirtschaften,
3. in Waldteilen ihrem Standort und ihrem historisch gewachsenen Charakter entsprechend, lichte Waldstrukturen und den Aufbau eines Totholz- und Altbaumbestands zu fördern sowie auf geeigneten Standorten magerrasenartige Bestände, Wärme liebende Saumgesellschaften und lichte Wald-/Offenlandstrukturen (Ökotone) zu erhalten und zu fördern,
4. die durch die Standortfaktoren, die Tier- und Pflanzenwelt und die Nutzungsgeschichte bestimmte natürliche Eigenart des Gebiets zu bewahren bzw. durch Pflege und Nutzung wiederherzustellen,
5. das charakteristische, offene Landschaftsbild der Fröttmaninger Heide mit ihren Lebensgemeinschaften zu sichern,
6. die Erholung und Nutzung im Schutzgebiet zur Vermeidung von Schäden im Beziehungsgefüge der Lebensgemeinschaften, insbesondere durch Veränderungen im Nährstoffhaushalt und in der Nutzungsintensität, zu ordnen.
(2) Schutzzweck für das Gebiet von gemeinschaftlicher Bedeutung (FFH-Gebiet) „Heideflächen und Lohwälder nördlich von München“, soweit es Bestandteil des Naturschutzgebietes ist, ist außerdem die Erhaltung und Wiederherstellung eines günstigen Erhaltungszustands der Lebensraumtypen und Arten, für die das Gebiet nach der Bayerischen Natura 2000-Verordnung vom 19.02.2016 (AllMBl. 3/2016 S. 258) in ihrer jeweiligen Fassung ausgewiesen ist
(3) Die Erhaltungsziele für das Gebiet von gemeinschaftlicher Bedeutung (FFH-Gebiet) „Heideflächen und Lohwälder nördlich von München“, soweit es Bestandteil des Naturschutzgebietes ist, ergeben sich aus der Bayerischen Natura 2000-Verordnung vom 19.02.2016 (AllMBl. 3/2016 S. 258) in ihrer jeweiligen Fassung.
§ 4 Zonierung
(1) Um die langfristige Erhaltung und Entwicklung des ökologisch hochwertigen Gebiets sowie die Umsetzung der Erhaltungsziele gemäß § 3 Abs. 3 zu gewährleisten und zugleich ein Erleben der Heide und eine naturverträgliche Erholung jetzt und in Zukunft sowie eine erfolgreiche Arbeit des Umweltbildungszentrums zu ermöglichen, werden folgende Zonen festgelegt:
a)
Schutzzone (rote Zone in der Karte M 1: 5.000)
In dieser Zone haben Belange des Naturschutzes Vorrang; sie dient insbesondere
der Entwicklung und Optimierung von Lebensräumen und Habitaten von Arten.
b)
Zone für das Heideerleben (orange Zone in der
Karte M 1 : 5.000)
In dieser Zone sind Belange des Naturschutzes besonders zu berücksichtigen;
naturschonende Formen der Erholung sind möglich, soweit die Belange des
Naturschutzes, insbesondere der Schutz von bodenbrütenden Vogelarten und
Amphibien, und die Gewährleistung der für die Erhaltung der Qualität
erforderlichen Pflege, insbesondere durch extensive Beweidung, hierdurch nicht
beeinträchtigt werden.
c)
Umweltbildungszone (blaue Zone in der Karte M 1
: 5.000)
In dieser Zone sind neben den Belangen des Naturschutzes, insbesondere dem
Schutz und langfristigen Erhalt der vorhandenen Amphibienlebensräume, die
Belange der Umweltbildung besonders zu berücksichtigen; naturschonende Formen der
Erholung sind möglich, soweit die genannten Belange nicht beeinträchtigt
werden.
d)
Zone für das freie Betreten (grüne Zone in der
Karte M 1 : 5.000)
In dieser Zone sind naturschonende Formen der Erholung unter Berücksichtigung
der Belange des Naturschutzes ganzjährig möglich.
(2)
Die Grenzen der Zonen und die ausgewiesenen Wege
in diesen Zonen ergeben sich aus der Schutzgebietskarte M 1 : 5.000. Soweit die
Grenzziehung im Bereich des Modellflugplatzes dem Vereinsgelände (gestrichelte
Linie) und der Flugzone (durchgezogene Linie) folgt, gilt jeweils die
Innenkante dieser Linien. Soweit die Grenzziehung entlang eines Weges erfolgt,
gilt für die Zuordnung dieses Wegeabschnittes Folgendes:
- Wege, die die Grenze einer grünen Zone bilden, werden der grünen Zone zugeordnet,
- Wege, die die Grenze zwischen einer orangen Zone und einer roten oder blauen Zone bilden, werden der orangen Zone zugeordnet,
- Wege, die die Grenze zwischen der blauen und der roten Zone bilden, werden der blauen Zone zugeordnet.
§ 5 Verbote
Nach § 23 Abs. 2 Satz 1 BNatSchG sind alle Handlungen verboten, die zu einer Zerstörung, Beschädigung oder Veränderung des Naturschutzgebietes oder seiner Bestandteile oder zu einer nachhaltigen Störung führen können. Deshalb ist es insbesondere verboten, im Schutzgebiet
1. bauliche Anlagen im Sinne der Bayerischen Bauordnung zu errichten, zu ändern oder ihre Nutzung zu ändern,
2. Bodenbestandteile abzubauen, Aufschüttungen, Ablagerungen, Grabungen, Sprengungen oder Bohrungen vorzunehmen, zu graben oder die Bodengestalt in sonstiger Weise zu verändern,
3. Straßen, Wege, Pfade oder Plätze neu anzulegen oder bestehende zu verändern,
4. Loipen anzulegen,
5. Leitungen zu errichten, zu verlegen oder bestehende zu verändern,
6. oberirdisch oder unterirdisch über den zugelassenen Gemeingebrauch hinaus Wasser zu entnehmen, die Wasserflächen einschließlich deren Ufer, den Wasserhaushalt, den Grundwasserstand oder den Zu- und Ablauf des Wassers zu verändern oder neue Gewässer anzulegen,
7. Erstaufforstungen oder Gehölzpflanzungen auf bisher gehölzfreien Standorten vorzunehmen,
8. Wildäcker anzulegen oder Wildfütterungen und sonstige jagdliche Einrichtungen ohne vorherige Zustimmung durch die jeweils zuständige untere Naturschutzbehörde zu errichten,
9. die Lebensbereiche (Biotope) der Tiere und Pflanzen zu stören oder nachteilig zu verändern, insbesondere sie durch chemische (einschließlich Düngung) oder mechanische Maßnahmen zu beeinflussen; zu einer nachteiligen Veränderung zählt auch das Belassen von Hundekot im Schutzgebiet durch diejenige Person, die den Hund mit sich führt,
10. Pflanzen einzubringen oder Tiere auszusetzen,
11. Pflanzen oder deren Bestandteile zu entnehmen oder zu beschädigen,
12. wild lebenden Tieren nachzustellen, sie zu fangen oder zu töten, Brut- oder Wohnstätten oder Gelege der Tiere zu stören, fortzunehmen oder zu beschädigen,
13. Tiere an ihren Nist-, Brut-, Wohn- und Zufluchtsstätten zu stören,
14. Bäume mit erkennbaren Horsten oder Höhlen zu besteigen,
15. mit Kraftfahrzeugen aller Art zu fahren oder diese dort abzustellen,
16. mit sonstigen Fahrzeugen aller Art und Sportgeräten zu fahren; hierzu gehören auch Fahrräder, Gespanne und Hundeschlitten; zulässig ist
(a) die Benutzung von Krankenfahrstühlen auf hierfür geeigneten Wegen,
(b) das Fahrradfahren auf hierfür geeigneten oder öffentlich gewidmeten Wegen,
soweit das Betreten der Wege nach § 6 zulässig ist.
17. zu reiten,
18. mit Luftfahrzeugen zu starten oder zu landen oder das Schutzgebiet in einer Höhe von weniger als 600 m zu überfliegen; zu den Luftfahrzeugen gehören auch Flugmodelle, Luftsportgeräte und sonstige Fluggeräte wie Drohnen; zulässig ist Drachen steigen zu lassen, soweit das Betreten nach § 6 zulässig ist,
19. zu lagern, zu zelten oder Wohnwagen abzustellen,
20. Sachen im Gelände zu lagern oder abzulagern,
21. Feuer zu machen, zu betreiben oder zu grillen; hierzu zählt auch das Abbrennen von Feuerwerkskörpern,
22. Sportveranstaltungen durchzuführen,
23. zu lärmen oder mit Tonübertragungs- oder Tonwiedergabegeräten Lärm zu verursachen,
24. Bild- oder Schrifttafeln anzubringen,
25. eine andere als die in § 7 dieser Verordnung genannte wirtschaftliche oder gewerbliche Nutzung auszuüben.
§ 6 Betreten und Mitführen von Hunden
(1) Das Schutzgebiet kann im Rahmen des naturschutzrechtlichen Betretungsrechts von jedermann zum Zwecke einer naturverträglichen Erholung auf eigene Gefahr betreten werden, soweit sich nicht aus § 5 und § 6 Abs. 2 etwas anderes ergibt. Bei der Ausübung des Betretungsrechts ist Rücksicht zu nehmen auf Natur und Landschaft, auf andere Erholungssuchende sowie auf die Belange des Eigentümers und der Nutzungsberechtigten. Besondere Rücksicht ist während der Beweidungszeit auf die Weidetiere zu nehmen.
(2) Es gelten folgende Regelungen des Betretens und Mitführens von Hunden:
a)
Schutzzone (rote Zone in der Karte M 1 : 5.000)
Es ist ganzjährig verboten,
-
die Schutzzone außerhalb der in der
Schutzgebietskarte M 1 : 5.000 ausgewiesenen Wege zu
betreten,
-
Hunde frei oder an langer Leine (mehr als 2 m
Länge) laufen zu lassen;
zulässig ist das Mitführen von Hunden an kurzer Leine auf den ausgewiesenen
Wegen.
b)
Zone für das Heideerleben (orange Zone in der
Karte M 1 : 5.000)
In der Zeit vom 1. März bis 31. Juli ist es verboten,
-
die Zone für das Heideerleben (orange Zone)
außerhalb der in der Schutzgebietskarte M
1 : 5.000 ausgewiesenen Wege zu betreten,
-
in dieser Zone Hunde frei oder an langer Leine
(mehr als 2 m Länge) laufen zu lassen;
zulässig ist das Mitführen von Hunden an kurzer Leine auf den ausgewiesenen
Wegen.
In der Zeit vom 1. August bis zum letzten Tag des Februars ist es verboten,
- in dieser Zone Hunde außerhalb der in der Schutzgebietskarte M 1 : 5.000 ausgewiesenen Wege mitzuführen,
- in dieser Zone Hunde auf den ausgewiesenen Wegen frei oder an langer Leine (mehr als 2 m Länge) laufen zu lassen; zulässig ist das Mitführen von Hunden an kurzer Leine auf den ausgewiesenen Wegen; ein Mitführen ohne Leine auf dem Weg ist zulässig, wenn der Hund im Einwirkungsbereich des Hundeführers gesichert verbleibt und die Voraussetzungen des Absatzes 3 vorliegen.
c)
Umweltbildungszone (blaue Zone in der Karte M 1
: 5.000)
Es ist ganzjährig verboten,
- in dieser Zone Hunde außerhalb der in der Schutzgebietskarte M : 5.000 ausgewiesenen Wege mitzuführen,
- in dieser Zone Hunde frei oder an langer Leine (mehr als 2 m Länge) laufen zu lassen; zulässig ist das Mitführen von Hunden an kurzer Leine auf den ausgewiesenen Wegen.
d)
Zone für das freie Betreten (grüne Zone in der
Karte M 1: 5.000)
Es ist ganzjährig verboten, Hunde frei oder an langer Leine (mehr als 2 m
Länge) laufen zu lassen; dies gilt nicht wenn der Hund im Einwirkungsbereich
des Hundeführers gesichert verbleibt und die Voraussetzungen des Absatzes 3
vorliegen.
Im gesamten Schutzgebiet gilt außerdem ganzjährig, dass Hunde einen Abstand von
mindestens 50 m zu Weidetieren einhalten müssen.
Ausgebildete Assistenzhunde (z. B. Blindenhunde, Diabetikerhunde) im Einsatz
sind von den Einschränkungen nach Satz 1 und 2 ausgenommen, die Regelungen des
Betretens für die Person, die vom Assistenzhund begleitet wird, bleiben
unberührt.
(3)
Unter folgenden Voraussetzungen darf ein Hund in
der Zone für das freie Betreten (grüne Zone in der Karte M 1 :5.000) ganzjährig
und in der Zone für das Heideerleben (orange Zone in der Karte M 1 :5.000) auf
den ausgewiesenen Wegen in der Zeit vom 1. August bis zum letzten Tag des Februars
ohne Leine mitgeführt werden:
- Die Person, die den Hund mitführt, oder eine andere im Haushalt lebende Person hat mit dem Hund erfolgreich an einem Kurs teilgenommen, der Kenntnisse und praktische Fertigkeiten in Bezug auf das sichere Führen des Hundes in der Öffentlichkeit und in der freien Natur vermittelt und eine theoretische und praktische Prüfung umfasst (Hundeführerschein).
- Die Person, die den Hund mitführt, und der Hund sind in einer Liste eingetragen, die bei der unteren Naturschutzbehörde (Landeshauptstadt München oder Landratsamt München) geführt wird.
- Der Hund trägt ein von der unteren Naturschutzbehörde bei der Eintragung ausgegebenes Erkennungszeichen.
(4) Die Freistellung von der Leinenpflicht nach Abs. 3 gilt nicht
- für Kampfhunde; Kampfhunde sind Hunde, bei denen aufgrund rassespezifischer Merkmale, Zucht oder Ausbildung von einer gesteigerten Aggressivität und Gefährlichkeit gegenüber Menschen und Tieren auszugehen ist; Hunde, für die nach der Verordnung des Bayerischen Staatsministeriums des Innern über Hunde mit gesteigerter Aggressivität und Gefährlichkeit vom 10.07.1992 (GVBl. S. 268, BayRS 2011-2-7-1) in der jeweils gültigen Fassung die Eigenschaft als Kampfhund vermutet wird, gelten als Kampfhunde im Sinne dieser Verordnung,
- wenn gegenüber dem Halter des Hundes oder der Person, die den Hund mitführt, sicherheitsrechtliche Anordnungen in Bezug auf das Halten oder Mitführen von Hunden bestehen oder
- wenn die untere Naturschutzbehörde im Einzelfall wegen schwerwiegender oder wiederholter Zuwiderhandlungen gegen diese Verordnung eine naturschutzrechtliche Anordnung in Bezug auf das Mitführen von Hunden erlassen hat;
In diesen Fällen ist der Hund im gesamten Schutzgebiet ganzjährig an der kurzen Leine zu führen.
(5) Für die Eintragung in die Liste nach Abs. 3 2. Spiegelstrich sind folgende Angaben und Nachweise vorzulegen:
- Angabe von Name und Wohnsitz der Person, die die Prüfung abgelegt hat, sowie der weiteren im Haushalt lebenden Personen, die den Hund im Schutzgebiet mitführen,
- Angaben zu dem Hund, mit dem die praktische Prüfung abgelegt wurde,
- Nachweis über das Bestehen der Prüfung,
- Nachweis, dass der Kurs die Anforderungen nach Abs. 3 1. Spiegelstrich erfüllt; sofern der Kurs von einer Behörde oder Kommune als Sachkundennachweis anerkannt ist, erfüllt er in der Regel die Voraussetzungen,
- Erklärung, dass keine Ausschlussgründe nach Abs. 4 vorliegen,
Wenn die Voraussetzungen für die Freistellung nach Abs. 3 i.V.m. Abs. 4 nicht oder nicht mehr vorliegen, wird die Eintragung in der Liste gelöscht und das Erkennungszeichen ist der unteren Naturschutzbehörde zurück zu geben.
(6) Soweit im Hinblick auf die Kampfmittelbelastung in einer Verordnung zur Regelung des Betretens oder durch Anordnung der zuständigen Behörden weitergehende Beschränkungen des Betretungsrechts festgesetzt sind, haben diese Vorrang.
(7) Die Beschränkungen des Abs. 2 gelten nicht für den Grundeigentümer und von ihm beauftragte Personen.
§ 7 Ausnahmen
(1) Ausgenommen von den Verboten nach § 5 und § 6 dieser Verordnung sind:
1. die ordnungsgemäße landwirtschaftliche Bodennutzung in Form der Beweidung einschließlich des Einsatzes von Hütehunden sowie Errichtung, Instandhaltung und Betrieb der zur Beweidung erforderlichen Anlagen entsprechend dem mit der höheren Naturschutzbehörde abgestimmten Beweidungskonzept; in diesem kann die Mahd zur Weidepflege enthalten sein; die Errichtung von baulichen Anlagen bedarf der Genehmigung der höheren Naturschutzbehörde,
2. die ordnungsgemäße forstwirtschaftliche Bodennutzung mit dem Ziel, in den Wäldern ihren Standort und ihrem historisch gewachsenen Charakter entsprechend lichte Waldstrukturen und den Aufbau eines Totholz- und Altbaumbestands zu fördern und auf geeigneten Standorten magerrasenartige Bestände und Wärme liebende Saumgesellschaften sowie lichte Wald-/Offenlandstrukturen (Ökotone) zu erhalten und zu fördern,
3. die rechtmäßige Ausübung der Jagd einschließlich Aufgaben des Jagdschutzes und des Einsatzes von Jagdhunden; es gilt jedoch § 5 Satz 2 Nr. 8,
4. der Betrieb, die Unterhaltung, Wartung und Instandsetzung der bestehenden Umweltbildungseinrichtungen des Heideflächenvereins einschließlich der zugehörigen Verkehrswege und die naturnahe Anlage und gärtnerische Pflege der Schaubeete mit charakteristischen Heidepflanzen im Bereich des Umweltbildungsgeländes; sowie die Errichtung weiterer Umweltbildungseinrichtungen im Bereich des Umweltbildungsgeländes mit Genehmigung der höheren Naturschutzbehörde,
5. die Nutzung von nicht besonders oder streng geschützten Pflanzen oder deren Bestandteile sowie von wild lebenden Tieren zu Umweltbildungszwecken außerhalb der Schutzzone im Rahmen von Umweltbildungsmaßnahmen und naturschutzfachlichen Führungen durch den Heideflächenverein Münchener Norden e.V. oder den von ihm damit Beauftragten,
6. die Neuanlage von Wegen und Pfaden sowie die Veränderung bestehender Wege und Pfade zur Ergänzung und Optimierung des in der Schutzgebietskarte M 1 : 5.000 ausgewiesenen Wegegrundgerüstes und andere Maßnahmen der Besucherlenkung mit Genehmigung der höheren Naturschutzbehörde; die Neuanlage von Wegen und Pfaden in der Schutzzone jedoch nur dann, wenn das Wegegrundgerüst hierdurch nicht wesentlich geändert wird,
7. Unterhaltungsmaßnahen an den bestehenden Wegen im gesetzlich zugelassenen Umfang; soweit die Maßnahmen nicht unaufschiebbar sind, sind sie nur in der Zeit vom 1. August bis zum letzten Tag des Monats Februar zulässig,
8. die Errichtung der bereits genehmigten zwei neuen Brunnen durch das HelmholtzZentrum München mit Genehmigung der höheren Naturschutzbehörde,
9. der Betrieb der bestehenden Wasserversorgungs-, Abwasserentsorgungs-, Versickerungs-, Energieversorgungs- und Fernmeldeanlagen und der gemäß Nr. 8 errichteten Brunnen sowie deren Wartung, Unterhaltung und Instandsetzung; soweit die Maßnahmen nicht unaufschiebbar sind, sind sie nur in der Zeit vom 1. August bis einschließlich des letzten Tages des Monats Februar zulässig,
10. zur Fortführung des Betriebs des bestehenden Modellflugplatzes durch die Interessengemeinschaft für ferngelenkte Modelle e.V. (IFM) München im bisherigen Umfang
a) die Nutzung, Wartung, Unterhaltung und Instandsetzung der auf der in der Karte M 1 : 5.000 dargestellten Fläche (Modellflugplatz) bestehenden Gebäude und Einrichtungen einschließlich des bestehenden Parkplatzes,
b) die Unterhaltung der bestehenden Start- und Landebahn durch regelmäßige Mahd; es gilt jedoch § 5 Satz 2 Nr. 9,
c) die Zufahrt mit Kraftfahrzeugen und sonstigen Fahrzeugen zum Vereinsgelände über den von der Ingolstädter Landstraße abzweigenden, entlang der nördlichen Grundstücksgrenze des Grundstücks Fl.Nr. 422/0, Gemarkung Oberschleißheim, verlaufenden Weg,
d) das Starten und Landen von Modellflugzeugen auf dem in der Karte M 1 : 5.000 dargestellten Modellflugplatz,
e) das Überfliegen mit Modellflugzeugen in der Karte M 1 : 5.000 dargestellten Flugzone; unzulässig sind jedoch organisierte Flugveranstaltungen,
f) das Betreten des Schutzgebiets zur Bergung von Modellflugzeugen; die Bergung ist der unteren Naturschutzbehörde am Landratsamt München unverzüglich nachträglich anzuzeigen,
11. die Verlegung einer Stromleitung von der Anschlussstelle auf dem Gelände des HelmholtzZentrums München zum Vereinsgelände des IFM e.V. mit Genehmigung der höheren Naturschutzbehörde,
12. Maßnahmen zur Umsetzung des Gesamtkonzepts für das südliche Vorfeld der Fröttmaninger Heide zwischen Fürst-Wrede-Kaserne und Kieferngartensiedlung der Landeshauptstadt München; Maßnahmen innerhalb des Schutzgebiets und Veränderungen des Walls bedürfen der Genehmigung der höheren Naturschutzbehörde,
13. unaufschiebbare Maßnahmen zur Beseitigung einer akuten Gefahr für Leib und Leben im Falle eines Kampfmittelfundes im erforderlichen Umfang; die Maßnahmen sind vor ihrer Durchführung oder, wenn dies nicht möglich ist, unverzüglich nach ihrer Durchführung der zuständigen unteren Naturschutzbehörde anzuzeigen,
14. Maßnahmen zur Kampfmittelerkundungen und -räumung mit Genehmigung der höheren Naturschutzbehörde; eine Genehmigung ist nicht erforderlich für Erkundungsmaßnahmen ohne Bodeneingriffe in der Zeit vom 1. August bis zum letzten Tag des Februars,
15. das Aufstellen oder Anbringen von Zeichen oder Schildern, die auf den Schutz oder die Bedeutung des Gebiets hinweisen, sowie von Wegmarkierungen, Warntafeln, Ortshinweisen, Sperrzeichen oder sonstigen Absperrungen, wenn die Maßnahme auf Veranlassung oder mit vorheriger Genehmigung der örtlich zuständigen unteren Naturschutzbehörde erfolgt sowie von temporären Hinweisschildern an beweideten Flächen durch den Schäfer oder den Grundeigentümer,
16.
die zur Erhaltung der Funktionsfähigkeit des
Schutzgebiets einschließlich der Umsetzung der Erhaltungsziele gemäß § 3 Abs. 3
notwendigen und von den Naturschutzbehörden angeordneten oder zugelassenen
Überwachungs-, Schutz-, Pflege- und Entwicklungsmaßnahmen einschließlich der
Mahd und des Befahrens von Flächen mit schwerem Gerät zur Herstellung und
Erhaltung von Pionierlebensräumen sowie dem Schutzzweck entsprechende, mit der
jeweils zuständigen unteren Naturschutzbehörde abgestimmte
Kompensationsmaßnahmen,
sofern der mit dieser Verordnung geschützte Teilbereich des Gebiets von gemeinschaftlicher
Bedeutung (FFH-Gebiet) „Heideflächen und Lohwälder nördlich von München“ in
seinen für die Erhaltungsziele gemäß § 3 Abs. 2 und 3 maßgeblichen
Bestandteilen nicht erheblich beeinträchtigt werden kann. § 34 Abs. 1 Satz 1
BNatSchG und Art. 21 BayNatSchG sind zu beachten.
(2)
Die Durchführung von Maßnahmen zur Wartung,
Unterhaltung und Instandsetzung bestehender Anlagen und Wege, die mit
nachteiligen Auswirkungen auf das Schutzgebiet verbunden sein kann, ist der
jeweils zuständigen unteren Naturschutzbehörde mindestens zwei Wochen vor ihrer
Inangriffnahme schriftlich oder elektronisch (E-Mail) anzuzeigen; die Frist
kann unterschritten werden, wenn die Maßnahmen unaufschiebbar sind.
Die Durchführung umfangreicher Unterhaltungs- und Instandsetzungsmaßnahmen
bedarf der vorherigen Zustimmung der höheren Naturschutzbehörde, soweit die
Maßnahmen aufschiebbar sind; eine umfangreiche Maßnahme liegt insbesondere vor,
wenn die Anlage grundlegend überholt und auf einen baulichen oder fachlichen
Stand gebracht wird, den sie im Falle einer Neuerrichtung aufweisen müsste und
somit eine an sich notwendige Neuerrichtung vermieden wird.
§ 8 Befreiungen
(1)
Von den Verboten des Bundesnaturschutzgesetzes
und dieser Verordnung kann gemäß § 67 BNatSchG im Einzelfall Befreiung erteilt
werden.
Können Erhaltungsziele nach § 3 Abs. 2 und 3 erheblich beeinträchtigt werden,
ist § 67 Abs. 2 Satz 1 BNatSchG zu beachten.
(2) Zuständig für die Erteilung der Befreiung ist die Regierung von Oberbayern; bei Vorhaben der Landesverteidigung und des Zivilschutzes entscheidet über die Befreiung das Bayerische Staatsministerium für Umwelt und Verbraucherschutz.
§ 9 Ordnungswidrigkeiten
(1) Nach Art. 57 Abs. 1 Nr. 2 BayNatSchG kann mit Geldbuße bis zu fünfzigtausend Euro belegt werden, wer vorsätzlich oder fahrlässig einem Verbot des § 5 dieser Verordnung zuwiderhandelt.
(2)
Nach Art. 57 Abs. 2 Nr. 3 BayNatSchG kann mit
Geldbuße bis zu fünfundzwanzigtausend Euro belegt werden wer einem Verbot des §
6 dieser Verordnung zuwiderhandelt.
Bei fahrlässigem Handeln kann die Geldbuße nach Art. 57 Abs. 3 BayNatSchG bis
zu zehntausend Euro betragen.
§ 10 Inkrafttreten, Außerkrafttreten
(1) Diese Verordnung tritt am 9. Mai 2016 in Kraft.
(2) Die Verordnung über die einstweilige Sicherstellung der Fröttmaninger Heide - Südliche Teil der Landeshauptstadt München und im Landkreis München als Naturschutzgebiet und zur Regelung des Betretens der Fröttmaninger Heide - Südlicher Teil vom 26.04.2012 (OBABl. Nr. 9/2012, OBABl. Nr. 7/2014) tritt am 9. Mai 2016 außer Kraft
Hinweis:
Eine Verletzung der Vorschriften des Art. 52 Abs. 1 bis 6 BayNatSchG ist unbeachtlich, wenn sie nicht innerhalb eines Jahres nach Bekanntmachung dieser Rechtsverordnung schriftlich unter Angabe der Tatsachen, die die Verletzung begründen sollen, bei der Regierung von Oberbayern geltend gemacht wird.






