Satzung über die Benutzung der Markthallen München der Landeshauptstadt München (Markthallen-Satzung)
vom 17. Dezember 2008
Stadtratsbeschluss: 17.12.2008
Bekanntmachung: 19.12.2008 (MüABl. S. 714)
Änderungen: 17.05.2013 (MüABl. S. 238)
03.12.2014
(MüABl. S. 943)
08.04.2019
(MüABl. S. 179)
Die Landeshauptstadt München erlässt aufgrund von Art. 23 und Art. 24 Abs. 1 Nr. 1 und Abs. 2 Satz 2 der Gemeindeordnung für den Freistaat Bayern (GO) in der Fassung der Bekanntmachung vom 22.08.1998 (GVBl. S. 796; BayRS 2020-1-1-I), zuletzt geändert durch Gesetz vom 20.12.2007 (GVBl. S. 958), folgende Satzung:
Teil A: Allgemeine Vorschriften
§ 1 Satzungszweck, Gegenstand der Satzung, Geltungsbereich, Begriffsbestimmung
(1) Die Markthallen München (Markthallen) sind eine öffentliche Einrichtung der Landeshauptstadt München, bestehend aus dem Betriebsgelände Großmarkthalle, den ständigen Lebensmittelmärkten (Viktualienmarkt, Markt am Elisabethplatz, Pasinger Viktualienmarkt, Markt am Wiener Platz) und den städtischen Wochen- und Bauernmärkten, sowie dem verwalteten Schlacht- und Viehhofareal. Die den Markthallen zur Verfügung stehenden Flächen sind gewerblichen Nutzungen zuzuführen mit dem Ziel, zur Versorgung der Bevölkerung mit hochwertigen, gesunden und frischen Lebensmitteln und Blumen beizutragen und die Gewerbestandorte für Handel, Handwerk, Produktion und Gastronomiebedarf zu optimieren. Eine Gewinnerzielungsabsicht besteht nicht.
(2) Diese Satzung gilt für den Umgriff
1. des Betriebsgeländes Großmarkthalle und des Schlachthofes mit den Standorten der in dieser Satzung genannten Anlagen, der sich aus der vorhandenen Einfriedung und dem Plan des Vermessungsamtes, Stand: 18.02.2008, Maßstab 1:6.000 ergibt (Anlage 1), sowie
2.
der Lebensmittelmärkte, der sich aus den
jeweiligen Lageplänen ergibt:
Plan des Vermessungsamtes für den Viktualienmarkt, Stand 18.02.2008, Maßstab
1:1.000
(Anlage 2),
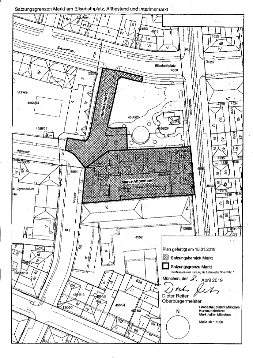
Plan Satzungsgrenzen Markt am Elisabethplatz, Altbestand und Interimsmarkt, Maßstab
1:1.000,ausgefertigt am 08.04.2019 (Anlage 3),
Plan des Vermessungsamtes für den Markt
am Wiener Platz, Stand 18.02.2008, Maßstab 1:500
(Anlage 4) und
Plan des Vermessungsamtes für den Pasinger Viktualienmarkt, Stand: 18.02.2008,
Maßstab 1:500
(Anlage 5)
(Satzungsgebiet). Diese Pläne sind Bestandteil der Satzung. Die Benutzung der städtischen Wochen- und Bauernmärkte ist nicht in dieser Satzung geregelt.
(3) Betriebsgelände im Sinne dieser Satzung ist der Umgriff des Betriebsgeländes Großmarkthalle und des Schlachthofes gemäß Abs. 2 Nr. 1.
(4) Die Markthallen München sind Gesamtrechtsnachfolger der mit der Fusion aufgelösten öffentlichen Einrichtungen Großmarkthalle und Schlachthof.
(5) Diese Satzung ersetzt vollumfänglich die Schlachthofsatzung, Großmarkthallen-Satzung und Lebensmittelmarktsatzung.
§ 2 Leitung und Verwaltung
(1) Die Markthallen werden durch die Werkleitung vertreten und geleitet. Die Werkleitung vollzieht die Regelungen dieser Satzung, überwacht die Einhaltung aller einschlägigen Rechtsvorschriften und sorgt für einen ungestörten und reibungslosen Betriebsablauf.
(2) Im Vollzug dieser Satzung sowie zum Zwecke der Aufrechterhaltung von Sicherheit und Ordnung, der Verhinderung von marktschädigendem Verhalten, zur Regelung des Fahrzeugverkehrs, der Abfallentsorgung, zur Gewährleistung von Brandschutz, Sauberkeit und Hygiene und zum Schutz der Umwelt können die Markthallen Allgemeinverfügungen sowie Anordnungen für den Einzelfall treffen. Gleiches gilt für die Umsetzung der Europäischen Qualitäts- und Umweltmanagementrichtlinien.
§ 3 Benutzer
Benutzer/Benutzerin der Markthallen ist,
1. wer eine Zuweisung gemäß § 4 Abs. 1 oder vor Inkrafttreten dieser Satzung aufgrund der Schlachthofsatzung, Großmarkthallen-Satzung oder Lebensmittelmarktsatzung erhalten hat (Zuweisungsnehmer/Zuweisungsnehmerin),
2. wer gemäß § 18 oder vor Inkrafttreten dieser Satzung aufgrund der Großmarkthallen-Satzung zugelassen worden ist (Zulassungsinhaber/Zulassungsinhaberin),
3. wer Ware bei Zuweisungsunternehmern/Zuweisungsunternehmerinnen, Vertragspartner/ Vertragspartnerinnen mit Sondervereinbarung einkauft (Kunde/Kundin),
4. wer Ware für Zuweisungsunternehmer/Zuweisungsunternehmerinnen, Vertragspartner/ Vertragspartnerinnen mit Sondervereinbarung oder Zulassungsinhaber/Zulassungsinhaberinnen in das Satzungsgebiet einbringt oder ausführt,
5. wer eine Sondervereinbarung gemäß § 8 mit den Markthallen abgeschlossen hat oder
6. wer vor Inkrafttreten dieser Satzung eine Erlaubnis aufgrund der mit dieser Satzung außer Kraft getretenen Schlachthofsatzung erhalten hat (Erlaubnisinhaber/Erlaubnisinhaberin).
§ 4 Erteilung und Umschreibung der Zuweisung
(1) Wer im Satzungsgebiet die verfügbaren Verkaufsstände, Räume, Lagerflächen, Keller oder sonstige Anlagen oder Grundstücksflächen (Objekte) zum Zwecke des Lebensmittelhandels, der Lebensmittellagerung und/oder -produktion benutzen will, bedarf der Zuweisung durch die Markthallen. Unabhängig vom Nutzungszeck bedarf der Zuweisung durch die Markthallen, wer die Keller auf dem Betriebsgelände Großmarkthalle unter den Hallen 1 - 6 oder Objekte im Bereich der Lebensmittelmärkte benutzen will.
(2) In der Zuweisung wird neben den Objekten auch die Art, der Umfang und der Inhalt der gewerblichen Betätigung sowie das Warensortiment festgelegt. Die Zuweisung kann auf Dauer oder befristet erteilt und mit Bedingungen und Auflagen verbunden werden. Die überlassenen Objekte dürfen nicht entgegen der erteilten Zuweisung und der damit verbundenen Bedingungen und Auflagen benutzt werden. Die Zuweisung ist nicht vererblich und unbeschadet der Regelungen in Abs. 5 nicht übertragbar.
(3) Die Zuweisung wird dem geeignetsten Bewerber/der geeignetsten Bewerberin erteilt. Die Auswahl des geeignetsten Bewerbers/der geeignetsten Bewerberin erfolgt durch die Markthallen München nach einem festgelegten Verfahren. Gebührenschuldner/Gebührenschuldnerinnen und Bewerber/Bewerberinnen, deren Angebot dem Gesamtcharakter des Betriebes bzw. des Marktes nicht entspricht, können am Vergabeverfahren nicht teilnehmen. Das zu überlassende Objekt wird ausgeschrieben, das Ausschreibungs- und Bewerbungsverfahren erfolgt fristgebunden. Maßgebend für die Rechtzeitigkeit einer zugesandten Bewerbung ist der Eingang bei der in den Ausschreibungsunterlagen bezeichneten Dienststelle. Der Bewerbungsschluss ist eine Ausschlussfrist.
(4) Jegliche Änderung der Art, des Umfangs und des Inhalts der gewerblichen Betätigung oder des Warensortiments bedarf der vorherigen schriftlichen Zustimmung der Markthallen. Die Markthallen sind berechtigt, die Zustimmung zu verweigern, wenn Belange des Marktzwecks gegen die Änderung sprechen.
(5) Beabsichtigt ein Zuweisungsnehmer/eine Zuweisungsnehmerin
1. seine/ihre Einzelfirma in eine juristische Person oder Personengesellschaft umzuwandeln oder
2. wenn die Zuweisungsnehmerin eine juristische Person oder Personengesellschaft ist, ihre Rechtsform zu ändern oder in der Zusammensetzung des Vorstands bzw. der Geschäftsführung oder im Gesellschafterbestand Änderungen durchzuführen,
so bedarf dieses Vorhaben der vorherigen schriftlichen Zustimmung der Markthallen. Die Zustimmung wird erteilt, wenn die Belange des Marktzwecks und der öffentlichen Versorgung sowie die Eignung und Zuverlässigkeit des Zuweisungsnehmers/der Zuweisungsnehmerin weiterhin gewahrt bleiben. Die Belange des Marktzwecks gelten in der Regel als gewahrt, wenn der bisherige Zuweisungsnehmer/die bisherige Zuweisungsnehmerin die Majorität in der neuen juristischen Person oder Personengesellschaft mindestens fünf Jahre ab dem Zeitpunkt der Umschreibung behält und ihm/ihr die Regelungen des Gesellschaftsvertrages oder andere Vereinbarungen auch die tatsächliche Ausübung eines bestimmenden Einflusses ermöglichen. Nach Erteilung der Zustimmung wird die Zuweisung von den Markthallen entsprechend der Änderung umgeschrieben. Abs. 4 gilt hierfür entsprechend. Die Umschreibung kann, insbesondere zur Wahrung der Belange des Marktzweckes, mit Bedingungen und Auflagen verbunden werden.
§ 5 Beendigung der Zuweisung
(1) Die Zuweisung kann von dem Zuweisungsnehmer/der Zuweisungsnehmerin spätestens am letzten Werktag eines Monats zum Ende des darauffolgenden Quartals durch schriftliche Erklärung gegenüber den Markthallen zurückgegeben werden.
(2) Die Zuweisung erlischt,
1. wenn die Rückgabe nach Abs. 1 wirksam wird,
2. wenn, im Falle einer zeitlich befristet erteilten Zuweisung, der in der Zuweisung festgesetzte Zeitraum abgelaufen ist,
3. wenn der Zuweisungsnehmer/die Zuweisungsnehmerin stirbt oder
4. wenn es sich bei der Zuweisungsnehmerin um eine juristische Person oder Personengesellschaft handelt und diese sich auflöst.
(3) Die Zuweisung wird widerrufen,
1. wenn der Zuweisungsnehmer/die Zuweisungsnehmerin, der/die zum Nachweis einer Umsatzmeldung verpflichtet ist, trotz Mahnung und Hinweises auf die Folgen mit seiner/ihrer Meldung über den Jahresumsatz länger als einen Monat im Rückstand bleibt oder unrichtige Angaben über die Höhe seines/ihres Jahresumsatzes macht,
2. wenn der Zuweisungsnehmer/die Zuweisungsnehmerin seine/ihre Zahlungen eingestellt oder die eidesstattliche Versicherung nach § 807 ZPO geleistet hat,
3. wenn entgegen § 4 Abs. 5 der Zuweisungsnehmer/die Zuweisungsnehmerin ohne vorherige schriftliche Zustimmung der Markthallen seine/ihre Einzelfirma in eine juristische Person oder Personengesellschaft umwandelt,
4. wenn die Zuweisungsnehmerin eine juristische Person oder Personengesellschaft ist und diese entgegen § 4 Abs. 5 ohne vorherige schriftliche Zustimmung der Markthallen ihre Rechtsform ändert oder in der Zusammensetzung des Vorstandes bzw. der Geschäftsführung oder im Gesellschafterbestand Änderungen durchführt oder
5. wenn die zugewiesenen Objekte für bauliche Änderungen oder für andere im öffentlichen oder betrieblichen Interesse liegende Zwecke unabweisbar benötigt werden.
(4) Die Zuweisung kann jederzeit aus wichtigem Grund widerrufen werden, insbesondere
1. wenn der Zuweisungsnehmer/die Zuweisungsnehmerin entgegen § 4 Abs. 2 Satz 3 die zugewiesenen Objekte trotz Mahnung und Hinweises auf die Folgen nicht innerhalb des Rahmens der erteilten Zuweisung benutzt,
2. wenn der Zuweisungsnehmer/die Zuweisungsnehmerin entgegen § 4 Abs. 4 die Art, den Umfang oder den Inhalt der gewerblichen Betätigung oder des Warensortiments ohne vorherige schriftliche Zustimmung der Markthallen geändert hat und trotz Mahnung und Hinweises auf die Folgen nicht wieder rückgängig macht,
3. wenn der Zuweisungsnehmer/die Zuweisungsnehmerin trotz Mahnung und Hinweises auf die Folgen mit den fälligen Gebühren länger als einen Monat im Rückstand bleibt,
4. wenn der Zuweisungsnehmer/die Zuweisungsnehmerin die höchstpersönliche und eigenverantwortliche Betätigung seines/ihres Gewerbes oder die zugewiesenen Objekte ganz oder teilweise auch nur vorübergehend einer anderen Person oder Gesellschaft überlässt oder mit überlässt,
5. wenn der Zuweisungsnehmer/die Zuweisungsnehmerin von der Zuweisung aus von ihm/ihr zu vertretenden Gründen insgesamt länger als sechs Wochen im Kalenderjahr oder länger als vier Wochen ununterbrochen keinen Gebrauch macht; wirtschaftliche Gründe sind stets von ihm/ihr zu vertreten,
6. wenn über das Vermögen des Zuweisungsnehmers/der Zuweisungsnehmerin das Insolvenzverfahren eröffnet oder die Eröffnung dieses Verfahrens mangels Masse abgelehnt wurde oder wenn er/sie zur Abwendung eines solchen Verfahrens einen außergerichtlichen Vergleich abgeschlossen oder wenn er/sie ein gerichtliches Vergleichsverfahren beantragt hat,
7. wenn objektive Merkmale die Annahme rechtfertigen, dass das zugewiesene Objekt auf Dauer nicht mehr zum Betriebserfolg der Markthallen beitragen wird,
8. wenn dies aus Gründen der öffentlichen Sicherheit und Ordnung erforderlich ist oder
9. wenn der Zuweisungsnehmer/die Zuweisungsnehmerin, dessen Vertreter/deren Vertreterin oder Beauftragter/Beauftragte
a) im Satzungsgebiet eine strafbare Handlung begangen hat, die in das Führungszeugnis aufgenommen wurde, oder in einem schwerwiegenden Fall oder wiederholt inner- oder außerhalb der Markthallen eine strafbare Handlung begangen hat,
b) in einem schwerwiegenden Fall oder wiederholt trotz Mahnung und Hinweises auf die Folgen eine Zuwiderhandlung im Sinne des § 31 begangen hat,
c) in einem schwerwiegenden Fall oder trotz Mahnung und Hinweises auf die Folgen gegen eine aufgrund des § 2 Abs. 2 erlassene Allgemeinverfügung oder Anordnung für den Einzelfall verstößt,
d) wiederholt trotz Mahnung und Hinweises auf die Folgen sich marktschädigend verhält, die öffentliche oder betriebliche Sicherheit und Ordnung in den Markthallen gefährdet oder stört oder entsprechendes Verhalten seines Vertreters/ihrer Vertreterin, Beauftragten oder Bediensteten nicht unverzüglich und nachhaltig abstellt oder wer sich eine Gefährdung oder Störung der öffentlichen betrieblichen Sicherheit und Ordnung zurechnen lassen muss,
e) eine Handlung begangen hat, die gemäß § 149 GewO in das Gewerbezentralregister eingetragen wurde, die in Verbindung mit der gewerblichen Tätigkeit des Zuweisungsnehmers/ der Zuweisungsnehmerin in den Markthallen steht und die Zuverlässigkeit und die persönliche Eignung nicht mehr vermuten lässt,
f) vorsätzlich oder grob fahrlässig schwerwiegend oder wiederholt gegen lebensmittelrechtliche, hygienerechtliche oder andere dem Verbraucherschutz dienende Vorschriften verstößt oder
g) schwerwiegend oder wiederholt gegen die Belange des Umwelt- oder Brandschutzes verstößt,
sofern der Ausschluss nach § 16 keine ausreichende Gewähr für die Aufrechterhaltung der Sicherheit und Ordnung in den Markthallen bietet. Werden die in Nr. 9 Buchstaben a) bis g) genannten Verstöße von dem vertretungsberechtigten Organ oder dem Mitglied einer juristischen Person oder Personengesellschaft persönlich begangen, so kann die Zuweisung gegenüber der juristischen Person oder Personengesellschaft widerrufen werden.
§ 6 Rückgabe der zugewiesenen Objekte
Die zugewiesenen Objekte sind unverzüglich zu räumen und den Markthallen in gereinigtem, benutzbarem und bestimmungsgemäßem Zustand zu übergeben,
1. wenn die Rückgabe der Zuweisung wirksam ist (§ 5 Abs. 1),
2. wenn die Zuweisung erloschen ist (§ 5 Abs. 2) oder
3. wenn die Zuweisung widerrufen wurde (§ 5 Abs. 3 und 4) und der Widerrufsbescheid unanfechtbar geworden oder seine sofortige Vollziehung angeordnet worden ist.
§ 7 Erlaubnisse nach der Schlachthofsatzung
Für Erlaubnisse, die aufgrund der mit dieser Satzung außer Kraft getretenen Schlachthofsatzung erteilt wurden (Erlaubnisse), gelten die Regelungen dieser Satzung für Zuweisungen entsprechend. Die im Zusammenhang mit diesen Erlaubnissen erteilten Zuweisungen bleiben Bestandteile dieser Erlaubnisse und gelten für deren Dauer.
§ 8 Sondervereinbarungen
(1) Wer im Bereich des Betriebsgeländes Objekte abweichend von § 4 Abs. 1 Satz 1 nutzen will, bedarf einer Sondervereinbarung mit den Markthallen.
(2) In begründeten Fällen kann die Benutzung nach § 4 Abs. 1 auch durch Sondervereinbarung geregelt werden.
(3) Im Übrigen gelten die Regelungen der §§ 4 bis 6 für die Sondervereinbarung entsprechend.
§ 9 Veranstaltungen
Im Einzelfall können Veranstaltungen im Interesse der Markthallen oder aus traditionellen Anlässen nach Maßgabe der einschlägigen gesetzlichen Bestimmungen und besonderen Vereinbarungen mit den Antragstellern von den Markthallen gestattet werden. Dabei werden betriebs- oder marktfremde Veranstaltungen, soweit nicht im Einzelfall aufgrund gesetzlicher Bestimmungen etwas anderes gilt, in der Regel nicht gestattet.
§ 10 Aufnahmen
Fotoaufnahmen sowie Ton- und Filmaufnahmen auf dem Satzungsgebiet zum Zwecke der öffentlichen Vorführung oder Veröffentlichung ihres Inhalt bedürfen, soweit diese nicht aufgrund übergeordneter Rechtsvorschriften entbehrlich ist, der vorherigen Zustimmung der Markthallen.
§ 11 Betriebs- und Verkaufszeiten
Die Betriebs- und Verkaufszeiten werden von den Markthallen für den jeweiligen Bereich durch Allgemeinverfügung festgesetzt.
§ 12 Allgemeine Verhaltensregeln
Jeder/Jede, der/die sich auf dem Satzungsgebiet der Markthallen befindet, hat
1. die Bestimmungen dieser Satzung und aufgrund dieser Satzung erlassene Anordnungen für den Einzelfall sowie Allgemeinverfügungen zu beachten sowie den Weisungen des Aufsichtspersonals Folge zu leisten,
2. sich auf Verlangen des Aufsichtspersonals diesem gegenüber auszuweisen,
3. die Anlagen und Betriebseinrichtungen schonend zu behandeln, diese weder unberechtigt zu benutzen, zu beschädigen noch zu beschmutzen und
4. sich so zu verhalten, dass kein anderer gefährdet, geschädigt oder mehr, als nach den Umständen unvermeidbar, behindert oder belästigt wird. Insbesondere ist untersagt:
a) das Nächtigen, Liegen oder Sitzen, letzteres außerhalb der vorgesehenen Sitzeinrichtungen,
b) das Betteln in jeder Form und
c) das Füttern von Tauben.
§ 13 Auskunfts- und Anzeigepflicht, Zutritt zu den überlassenen Anlagen
(1) Zuweisungsnehmer/Zuweisungsnehmerinnen, Zulassungsinhaber/Zulassungsinhaberinnen, Erlaubnisinhaber/Erlaubnisinhaberinnen oder Vertragspartner/Vertragspartnerinnen mit Sondervereinbarung haben den Beauftragten der Markthallen alle Auskünfte für die Betriebsführung der Markthallen sowie die zur Erstellung der Marktberichte und ähnlicher statistischer Erhebungen erforderlichen Auskünfte richtig, vollständig und fristgerecht zu erteilen.
(2) Zuweisungsnehmer/Zuweisungsnehmerinnen oder Vertragspartner/Vertragspartnerinnen mit Sondervereinbarung haben den/der Beauftragten der Markthallen
1. Beschädigungen und Beschmutzungen an ihnen überlassenen Objekten und darauf befindlichen Betriebseinrichtungen unverzüglich anzuzeigen und
2. jederzeit den Zutritt zu den überlassenen Objekten zu gestatten.
§ 14 Bauliche Maßnahmen
(1) Einbauten, bauliche Veränderungen und sonstige Maßnahmen an Objekten und darauf befindlichen Betriebseinrichtungen darf der Benutzer/die Benutzerin nur mit vorheriger schriftlicher Zustimmung der Markthallen vornehmen. Die Zustimmung kann mit Auflagen verbunden sein, die vom Benutzer/von der Benutzerin einzuhalten sind.
(2) Vor Erteilung der Zustimmung ist mit dem Benutzer/der Benutzerin eine Regelung über die sich aus diesen Maßnahmen ergebenden Rechtsfolgen zu treffen.
(3) Führt der Benutzer/die Benutzerin Maßnahmen im Sinne des § 14 Abs. 1 ohne vorherige Zustimmung der Markthallen durch, so steht ihm/ihr in keinem Fall ein Ablösungsanspruch gegenüber den Markthallen zu und es kann jederzeit die Herstellung des früheren Zustandes auf seine/ihre Kosten verlangt werden.
§ 15 Unzulässige Benutzung und Geschäftsausübung
Im Satzungsgebiet dürfen ohne Zustimmung der Markthallen
1. ohne gültige Zuweisung, Zulassung, Sondervereinbarung oder Erlaubnis oder
2. außerhalb der durch Zuweisung oder Sondervereinbarung überlassenen Objekte
gewerbliche Tätigkeiten nicht ausgeübt und im Falle der Nr. 1 Objekte nicht benutzt werden. Unter gewerbliche Tätigkeit fallen auch wirtschaftliche Werbemaßnahmen, wie z. B. Handzettelverteilen oder das Herumtragen von Werbetafeln.
§ 16 Ausschluss
(1) Wer im Satzungsgebiet
1. eine strafbare Handlung begangen hat oder in den hinreichenden Verdacht gerät, dort eine strafbare Handlung begangen zu haben,
2. in einem schwerwiegenden Fall oder wiederholt trotz Mahnung und Hinweises auf die Folgen Zuwiderhandlungen im Sinne des § 31 begangen hat,
3. wiederholt trotz Mahnung und Hinweises auf die Folgen gegen diese Satzung oder die aufgrund dieser Vorschriften ergangenen Anordnungen im Einzelfall oder Allgemeinverfügungen verstößt,
4. wiederholt trotz Mahnung und Hinweises auf die Folgen sich marktschädigend verhält, die öffentliche Sicherheit und Ordnung in den Markthallen gefährdet oder stört oder entsprechendes Verhalten seines Vertreters/ihrer Vertreterin, Beauftragten oder Bediensteten nicht unverzüglich und nachhaltig abstellt oder wer sich eine Gefährdung oder Störung der öffentlichen Sicherheit und Ordnung zurechnen lassen muss,
5. eine Handlung begangen hat, die gemäß § 149 GewO in das Gewerbezentralregister eingetragen wurde, die in Verbindung mit der gewerblichen Tätigkeit des Benutzers/der Benutzerin in den Markthallen steht und die Zuverlässigkeit und persönliche Eignung nicht mehr vermuten lässt,
6. vorsätzlich oder grob fahrlässig schwerwiegend oder wiederholt gegen lebensmittelrechtliche, hygienerechtliche oder andere dem Verbraucherschutz dienende Vorschriften verstößt oder
7. schwerwiegend oder wiederholt gegen die Belange des Umwelt- oder des Brandschutzes verstößt,
kann von den Markthallen vom Satzungsgebiet der Markthallen München ausgeschlossen werden (Ausschluss). Der Ausschluss ist für eine bestimmte Zeit auszusprechen; er kann - unabhängig von einer Anzeige wegen Hausfriedensbruchs - verlängert werden, wenn der/die Betroffene gegen die Ausschlussverfügung verstößt oder die Handlung bzw. der Umstand, die/der für den Ausschluss ursächlich war, noch nicht abgeschlossen ist.
(2) Nach Abs. 1 kann auch verfahren werden, wenn der/die Betroffene in einem schwerwiegenden Fall oder wiederholt außerhalb der Markthallen eine strafbare Handlung begangen hat oder diesbezüglich in den hinreichenden Verdacht gerät.
§ 17 Haftung
(1) Die Markthallen haften für Schäden, die im Bereich der Markthallen entstehen, nach Maßgabe der allgemeinen Bestimmungen.
(2) Jeder, der Anlagen und Betriebseinrichtungen der Markthallen beschädigt oder zerstört, haftet nach Maßgabe dieser Satzung und der allgemeinen Bestimmungen.
Teil B: Besondere Vorschriften
I. Betriebsgelände Großmarkthalle und Schlachthof
§ 18 Zulassung
(1) Abweichend von § 4 bedarf einer Zulassung durch die Markthallen
1. wer ohne Zuweisung oder Sondervereinbarung Ware in das Betriebsgelände auf eigenen Namen und auf eigene Rechnung oder in fremdem Auftrag einführen und entweder an Zuweisungsnehmer/Zuweisungsnehmerinnen, Vertragspartner/Vertragspartnerinnen mit Sondervereinbarung oder Adressaten außerhalb des Betriebsgeländes weitervermitteln oder weiterveräußern will (Agentur),
2. wer als Frachtführer/Frachtführerin fremde Waren innerhalb des Betriebsgeländes Großmarkthalle oder von dort ausgehend, befördern will oder
3. wer als Spediteur/Spediteurin auf dem Betriebsgelände gewerblich tätig sein will.
(2) Die Zulassung berechtigt nicht zum Verkauf unmittelbar an Kunden/Kundinnen.
(3) Im Übrigen gelten die Vorschriften über die Erteilung und die Beendigung der Zuweisung (§§ 4 und 5) für die Zulassung entsprechend.
§ 19 Tageseinfahrtscheine / Kundenausweise
Wer auf dem Betriebsgelände Großmarkthalle (mit Ausnahme des Blumengroßmarktes) Ware einkaufen will, bedarf eines Tageseinfahrtscheines oder eines Kundenausweises der Markthallen.
§ 20 Lieferung, Zutritt und Aufenthalt
(1) Die Einfahrt und der Zutritt in das Betriebsgelände ist nur bei Vorliegen eines berechtigten Interesses zulässig.
(2) Bei Einfahrt in das Betriebsgelände durch Lieferanten muss der Empfänger/die Empfängerin der Ware bereits durch Frachtpapiere oder vergleichbare Dokumente nachgewiesen werden können.
(3) Während der Betriebs- und Verkaufszeiten ist der Zutritt zum Betriebsgelände nur den Personen gestattet, die dort beschäftigt oder im Rahmen des Anstaltszwecks tätig sind. Kunden/Kundinnen oder ihren Beauftragten ist der Zutritt nur während der Verkaufszeiten gestattet.
(4) Außerhalb der festgesetzten Betriebszeiten ist der Aufenthalt im Betriebsgelände nur mit Einwilligung der Markthallen gestattet.
(5) Außerhalb der festgesetzten Verkaufszeiten dürfen im Betriebsgelände nur mit Einwilligung der Markthallen Waren verkauft werden.
§ 21 Mindestabgabemengen
Bei der Warenabgabe darf die durch Anordnung der Markthallen für bestimmte Waren vorgeschriebene Mindestverkaufsmenge nicht unterschritten werden.
§ 22 Verkehr
(1) Auf dem Betriebsgelände sind nur solche Fahrzeuge gestattet, die
1. von der zuständigen Zulassungsbehörde zum Verkehr auf öffentlichen Straßen zugelassen sind oder
2. den Vorschriften der Straßenverkehrszulassungsordnung in ihrer jeweils gültigen Fassung entsprechen und von den Markthallen zum Verkehr auf dem Betriebsgelände zugelassen sind.
Das Fahrzeug muss vorschriftsmäßig versteuert und versichert sein. Der Fahrzeugführer/Die Fahrzeugführerin muss im Besitz der vorgeschriebenen Fahrerlaubnis sein.
(2) Auf dem Betriebsgelände sind die Verkehrs- und Hinweisschilder sowie die sonst von den Markthallen zur Regelung des Verkehrs getroffenen Allgemeinverfügungen und Anordnungen von jedem Verkehrsteilnehmer zu beachten. Im Übrigen gelten auf dem Betriebsgelände die Straßenverkehrsordnung sowie § 25 a des Straßenverkehrsgesetzes in ihrer jeweils gültigen Fassung entsprechend.
§ 23 Einbringen von Kundenabfällen
(1) Kunden/Kundinnen ist es gestattet, gebrauchte Transportverpackungen und kompostierfähige Stoffe, die auf dem Betriebsgelände erworben wurden oder in denen auf dem Betriebsgelände erworbene Waren verpackt waren, getrennt nach Fraktionen (Holz, Papier/Kartonagen, kompostierfähige Stoffe - ausgenommen organischer Mist -, sonstiges Verpackungsmaterial) in das Betriebsgelände Großmarkthalle einzubringen. Das Einbringen vermischter Stoffe oder sonstiger Abfälle ist nicht gestattet.
(2) Sollen Stoffe im Sinne des Abs. 1 mit einem Kundenfahrzeug in das Betriebsgelände Großmarkthalle eingebracht werden, darf dieses Fahrzeug ausschließlich über die Zentraleinfahrt in der Schäftlarnstraße einfahren. Die Mitführung dieser Stoffe ist an der Einfahrt anzuzeigen. Mit dem Fahrzeug ist sodann auf dem kürzesten Wege zur Entsorgungsstation am Lkw-Platz zu fahren, wobei der Verkaufsbereich westlich der Linie Umschlagszentrum II - Tunnelbauwerk - Umschlagszentrum III nicht befahren werden darf. An der Entsorgungsstation am Lkw-Platz werden diese Stoffe gegen Entgelt angenommen.
§ 24 Reinigung, Winterdienst, Abfallentsorgung
(1) Zuweisungsnehmer/Zuweisungsnehmerinnen oder Vertragspartner/Vertragspartnerinnen mit Sondervereinbarung haben die ihnen überlassenen Objekte sowie, im Bereich der Hallen I bis V (Südseite) im Betriebsgelände Großmarkthalle, die angrenzenden Verkehrsflächen bis zur jeweiligen Flächenmitte zu reinigen und den darauf befindlichen Abfall nach den für die Landeshauptstadt München geltenden rechtlichen Bestimmungen zu entsorgen. Die Reinigungsbereiche haben jeden Tag nach Ende der Verkaufszeit besenrein zu sein.
(2) Büromüll ist nach den von den Markthallen festgelegten Fraktionen getrennt in den für die jeweiligen Fraktionen vorgesehenen Abfallsammelbehältern zu entsorgen.
(3) Sonstige Abfälle (einschließlich Wertstoffe) von Benutzern/Benutzerinnen sowie deren Vertragspartnern, die im Rahmen der Geschäftsausübung oder des Betriebsablaufs auf dem Betriebsgelände entstehen, müssen nach den von den Markthallen festgelegten Fraktionen getrennt auf dem Betriebsgelände entsorgt werden, es sei denn, der Benutzer/die Benutzerin führt diese Abfälle selbst im Rahmen und unter Beachtung der gesetzlichen Bestimmungen aus dem Betriebsgelände aus. Die Entsorgung muss entweder an den vorgehaltenen Entsorgungsstationen oder an den vom Betreiber der Entsorgungsstationen mit Zustimmung der Markthallen zur Verfügung gestellten Abfallbehälter erfolgen. Im Betriebsgelände Großmarkthalle steht die Entsorgungsstation am Lkw-Platz zur Verfügung. Zuweisungsnehmer/Zuweisungsnehmerinnen, Erlaubnisinhaber/ Erlaubnisinhaberinnen oder Vertragspartner mit Sondervereinbarung im Schlacht- und Viehhofareal ist es darüber hinaus gestattet, die Entsorgungsstation östlich des Schweinekühlhauses zu benutzen. Abfälle können nur während der Öffnungszeiten der Entsorgungsstationen angeliefert werden.
(4) Fallen Abfälle an, die auf dem Betriebsgelände nicht entsorgt werden können, sind diese außerhalb des Betriebsgeländes gemäß den geltenden gesetzlichen Bestimmungen zu entsorgen.
(5) Fleisch-, Fleischwaren-, Fisch- und Speiseabfälle sind entsprechend den geltenden gesetzlichen Bestimmungen eigenständig zu entsorgen.
§ 25 Verbotene Abfallentsorgung
Das Ablagern oder Zurücklassen jeglicher Abfälle (einschließlich Wertstoffe) auf dem Betriebsgelände außerhalb der bereitgestellten Abfallbehälter und vorgehaltenen Entsorgungsstationen ist verboten.
§ 26 Fundsachen
Wer auf dem Betriebsgelände eine verlorene Sache findet, hat dies unverzüglich den Markthallen zu melden und, soweit möglich, abzugeben.
II. Lebensmittelmärkte
§ 27 Warensortiment
(1) Grundsätzlich dürfen auf den Lebensmittelmärkten zum Verkauf nur angeboten werden:
1. Lebensmittel aller Art, deren Verkauf auf den Lebensmittelmärkten herkömmlich ist,
2. sonstige Erzeugnisse des Gartenbaus, des Waldes und des Feldes mit Ausnahme von bewurzelten Bäumen und Sträuchern.
(2) In begründeten Einzelfällen können die Markthallen Ausnahmen zulassen oder weitere Beschränkungen festlegen.
(3) Bei der Festlegung des Sortiments nach § 4 Abs. 2 Satz 1 berücksichtigen die Markthallen die Ausgewogenheit des Sortiments bzw. Warenangebots, sowie die konkreten Umstände der Verkaufseinrichtung.
§ 28 Besondere Verhaltensregeln
Neben den in § 12 festgelegten Verhaltensregeln gelten für die Lebensmittelmärkte folgende besondere Verhaltensregeln:
1. Das Befahren der Lebensmittelmärkte mit Fahrrädern, Inline-Skates oder ähnlichen Freizeitfortbewegungsmitteln ist untersagt.
2. Hunde sind an der kurzen Leine zu führen und von den gelagerten und angebotenen Waren fernzuhalten. Hundekot ist durch den Besitzer unverzüglich zu beseitigen.
§ 29 Kraftfahrzeugverkehr
(1) Das Fahren und Anhalten von Kraftfahrzeugen ist im Bereich der Lebensmittelmärkte nur nach Maßgabe der nachfolgenden Abs. 2 bis 7 gestattet.
(2) Der für den Marktbetrieb erforderliche An- und Ablieferverkehr der Benutzer/Benutzerinnen von Anlagen und ihrer Lieferanten ist
1. Sonntag bis Freitag von 10.45 Uhr und ab 18.00 Uhr,
2. Samstag bis 10.45 Uhr und ab 15.00 Uhr sowie
3. an gesetzlichen Feiertagen ab 18.00 Uhr
4. abweichend von Nr. 1. – 3. für den Markt am Elisabethplatz (Interimsmarkt) an Werktagen in der Zeit von 06.00 Uhr bis 22.00 Uhr
gestattet.
(3) Den Blumenhändlern ist der erforderliche An- und Ablieferverkehr auch außerhalb der in Abs. 2 festgesetzten Zeiten an Sonn- und Feiertagen gestattet. Auf Verlangen der Markthallen ist die Erforderlichkeit nachzuweisen. Abs. 3 gilt nicht für den Markt am Elisabethplatz (Interimsmarkt).
(4) Die Markthallen können im Einzelfall, z. B. für Service- und Kundendienstfahrzeuge, eine Sondererlaubnis für das Fahren und Anhalten im Bereich der Lebensmittelmärkte erteilen; diese Erlaubnis ist am Kraftfahrzeug sichtbar anzubringen.
(5) Die Kraftfahrzeuge dürfen eine maximale Einzelradlast von 3,25 t nicht überschreiten. Ein entsprechender Nachweis ist den Markthallen auf Anforderung vorzulegen. Die Markthallen können im Einzelfall eine abweichende Sondererlaubnis erteilen.
(6) Wenn es im Interesse der Sicherheit und Leichtigkeit des Verkehrs oder zum Schutze der Fußgänger erforderlich ist, kann der nach Abs. 2 bis 5 zulässige Kraftfahrzeugverkehr für den Einzelfall untersagt werden. Bei Untersagung, Sperrung, Änderung, Umstufung oder Einziehung entsteht den durch die Abs. 2 bis 5 Begünstigten kein über Art. 17 Bayerisches Straßen- und Wegegesetz hinausgehender Anspruch.
(7) Im Bereich der Lebensmittelmärkte gelten für den Kraftfahrzeugverkehr folgende besonderen Verhaltensregeln:
1. Der Aufenthalt der Fahrzeuge ist auf die unbedingt notwendige Dauer zu beschränken.
2. Der Fußgängerverkehr hat in jedem Fall Vorrang.
3. Es darf nur mit Schrittgeschwindigkeit gefahren werden.
4. Lastwagen dürfen rückwärts nur gefahren werden, wenn eine einweisende Person zur Absicherung beigezogen ist.
5. Die gekennzeichneten Ein- und Ausfahrtsstellen müssen eingehalten werden.
6. Von den Standfronten ist ein Sicherheitsabstand von 2 m und von den übrigen Gegenständen mindesten 0,5 m einzuhalten.
(8) Die Verkehrs- und Hinweisschilder sowie die sonst von den Markthallen zur Regelung des Verkehrs getroffenen Allgemeinverfügungen und Anordnungen sind von allen Verkehrsteilnehmern zu beachten. Im Übrigen gelten im Bereich der Lebensmittelmärkte die Straßenverkehrsordnung und § 25 a des Straßenverkehrsgesetzes in ihrer jeweils gültigen Fassung entsprechend.
§ 30 Abfallentsorgung
(1) In die Abfallsammelbehälter und -vorrichtungen der zentralen Entsorgungsstationen dürfen ausschließlich die auf dem jeweiligen Lebensmittelmarkt entstandenen Abfälle der marktansässigen Vertragspartner, denen von den Markthallen Objekte überlassen wurden, entsorgt werden.
(2) Der Abfall ist nach den von den Markthallen jeweils festgelegten Fraktionen zu trennen und in den für die jeweiligen Fraktionen vorgesehenen Abfallsammelbehältern und -vorrichtungen zu entsorgen.
(3) Fleisch-, Fleischwaren-, Fisch- und Speiseabfälle sind
entsprechend den gesetzlichen Bestimmungen eigenständig zu entsorgen.
Teil C: Schlussbestimmungen
§ 31 Zuwiderhandlungen
Nach Art. 24 Abs. 2 Satz 2 GO kann mit Geldbuße belegt werden, wer vorsätzlich
1. einer aufgrund des § 2 Abs. 2 erlassenen Allgemeinverfügung, Anordnung für den Einzelfall oder Weisung des Aufsichtspersonals zuwiderhandelt,
2. entgegen § 4 Abs. 2 Satz 3 trotz Mahnung und Hinweises auf die Folgen überlassene Objekte entgegen der erteilten Zuweisung oder der damit verbundenen Bedingungen und Auflagen benutzt,
3. entgegen § 4 Abs. 4 die Art, den Umfang oder den Inhalt der gewerblichen Betätigung oder des Warensortiments ohne vorherige schriftliche Zustimmung der Markthallen geändert hat und trotz Mahnung und Hinweises auf die Folgen nicht wieder rückgängig macht,
4. die höchstpersönliche und eigenverantwortliche Betätigung seines/ihres Gewerbes oder die überlassenen Objekte ganz oder teilweise auch nur vorübergehend einer anderen Person oder Gesellschaft überlässt oder mit überlässt,
5. von der ihm/ihr erteilten Zuweisung gemäß § 4 aus von ihm/ihr zu vertretenden Gründen insgesamt länger als sechs Wochen im Kalenderjahr oder länger als vier Wochen ununterbrochen keinen Gebrauch macht; wirtschaftliche Gründe sind stets von ihm/ihr zu vertreten,
6. sich trotz Mahnung und Hinweises auf die Folgen marktschädigend verhält, die öffentliche Sicherheit und Ordnung in den Markthallen gefährdet oder stört oder entsprechendes Verhalten seiner/ihrer Beauftragten oder Bediensteten nicht unverzüglich und nachhaltig abstellt,
7. entgegen § 6 die zugewiesenen Objekte nicht unverzüglich räumt und den Markthallen in gereinigtem, benutzbarem und bestimmungsgemäßem Zustand übergibt,
8. entgegen § 9 Veranstaltungen ohne vorherige Gestattung der Markthallen durchführt,
9. einer aufgrund des § 11 erlassenen Allgemeinverfügung über die Betriebs- und Verkaufszeiten zuwiderhandelt,
10. die in § 12 aufgeführten allgemeinen Verhaltensregeln nicht beachtet,
11. die in § 13 Abs. 1 genannten Auskünfte den Beauftragten der Markthallen nicht, nicht richtig, nicht vollständig oder nicht fristgerecht erteilt,
12. entgegen § 13 Abs. 2 Nr. 1 den Beauftragten der Markthallen Beschädigungen und Beschmutzungen an überlassenen Objekten und darauf befindlichen Betriebseinrichtungen nicht unverzüglich anzeigt,
13. entgegen § 13 Abs. 2 Nr. 2 den Beauftragten den Zutritt zu den überlassenen Objekten nicht jederzeit gestattet,
14. entgegen § 14 Abs. 1 Einbauten, bauliche Veränderungen oder sonstige Maßnahmen an Objekten und darauf befindlichen Betriebseinrichtungen ohne vorherige schriftliche Zustimmung der Markthallen vornimmt,
15. entgegen § 15 Nr. 1 ohne gültige Zuweisung, Sondervereinbarung, Zulassung oder Erlaubnis eine gewerbliche Tätigkeit ausübt oder Objekte tatsächlich benutzt,
16. entgegen § 15 Nr. 2 außerhalb der durch Zuweisung oder Sondervereinbarung überlassenen Objekte eine gewerbliche Tätigkeit ausübt,
17. einem nach § 16 ausgesprochenem Ausschluss zuwiderhandelt,
18. entgegen § 20 Abs. 1 ohne berechtigtes Interesse in das Betriebsgelände einfährt oder dieses betritt,
19. entgegen § 20 Abs. 2 bei Einfahrt in das Betriebsgelände den Empfänger/die Empfängerin durch Frachtpapiere oder vergleichbare Dokumente nicht, nicht vollständig oder nicht richtig nachweist oder derartige Dokumente fälscht,
20. sich entgegen § 20 Abs. 4 ohne Genehmigung außerhalb der festgesetzten Betriebszeiten im Betriebsgelände aufhält,
21. entgegen § 20 Abs. 5 ohne Genehmigung Waren außerhalb der festgesetzten Verkaufszeiten verkauft,
22. entgegen § 21 die vorgeschriebene Mindestverkaufsmenge unterschreitet,
23. entgegen § 22 Abs. 1 ein Fahrzeug führt, das nicht von der zuständigen Zulassungsbehörde zum Verkehr auf öffentlichen Straßen zugelassen ist oder den Vorschriften der Straßenverkehrszulassungsordnung entspricht und von den Markthallen zum Verkehr auf dem Betriebsgelände zugelassen ist,
24. entgegen § 22 Abs. 1 ein Fahrzeug führt, das nicht vorschriftsmäßig versteuert oder versichert ist,
25. entgegen § 22 Abs. 1 ein Fahrzeug führt, ohne im Besitz der vorgeschriebenen Fahrerlaubnis zu sein,
26. entgegen § 22 Abs. 2 Satz 1 die von den Markthallen zur Regelung des Verkehrs angebrachten Verkehrs- und Hinweisschilder oder sonst hierzu getroffene Allgemeinverfügungen und Anordnungen oder entgegen § 22 Abs. 2 Satz 2 die Bestimmungen der Straßenverkehrsordnung nicht beachtet,
27. entgegen § 23 Abs. 1 vermischte Stoffe oder sonstige Abfälle in das Betriebsgelände einbringt,
28. entgegen § 23 Abs. 2 an einer anderen als der dort vorgeschriebenen Einfahrt einfährt oder die Anzeige, das er Stoffe im Sinne von § 23 Abs. 1 einbringen will, unterlässt oder mit diesen Stoffen im Verkaufsbereich westlich der Linie Umschlagszentrum II - Tunnelbauwerk - Umschlagszentrum III angetroffen wird,
29. entgegen § 24 Abs. 1 seiner/ihrer Reinigungs- und Entsorgungspflicht nicht nachkommt,
30. entgegen § 24 Abs. 2 Büromüll nicht ordnungsgemäß nach den festgelegten Fraktionen getrennt in den für die jeweiligen Fraktionen vorgesehenen Abfallsammelbehältern entsorgt,
31. entgegen § 24 Abs. 3 Satz 5 Abfälle außerhalb der Öffnungszeiten der Entsorgungsstationen an den Entsorgungsstationen zurücklässt,
32. entgegen § 24 Abs. 5 oder § 30 Abs. 3 Fleisch-, Fleischwaren-, Fisch- oder Speiseabfälle nicht entsprechend den gesetzlichen Bestimmungen entsorgt,
33. entgegen § 25 Abfälle auf dem Betriebsgelände außerhalb der bereitgestellten Abfallbehälter und vorgehaltenen Entsorgungsstationen ablagert oder zurücklässt,
34. entgegen § 26 einen Fund nicht meldet,
35. entgegen § 27 andere als auf den Lebensmittelmärkten gemäß § 27 Abs. 1 grundsätzlich oder gemäß § 27 Abs. 2 von den Markthallen in begründeten Einzelfällen zugelassene Waren zum Verkauf anbietet oder eine gemäß § 27 Abs. 2 festgelegte Beschränkung nicht beachtet,
36. die in § 28 aufgeführten besonderen Verhaltensregeln nicht beachtet,
37. die in § 29 Abs. 2 bis 4 festgelegten Regelungen über den An- und Ablieferverkehr nicht beachtet,
38. entgegen § 29 Abs. 5 die zugelassene maximale Einzelradlast überschreitet,
39. einer nach § 29 Abs. 6 getroffenen Untersagung des Kraftfahrzeugverkehrs zuwiderhandelt,
40. die in § 29 Abs. 7 aufgeführten besonderen Verhaltensregeln für den Kraftfahrzeugverkehr nicht beachtet,
41. entgegen § 29 Abs. 8 Satz 1 die von den Markthallen zur Regelung des Verkehrs angebrachten Verkehrs- und Hinweisschilder oder sonst hierzu getroffene Allgemeinverfügungen und Anordnungen oder entgegen § 29 Abs. 8 Satz 2 die Bestimmungen der Straßenverkehrsordnung nicht beachtet,
42. entgegen § 30 Abs. 1 Abfälle in die Abfallsammelbehälter und -vorrichtungen der zentralen Entsorgungsstationen entsorgt oder
43. entgegen § 30 Abs. 2 den Abfall nicht ordnungsgemäß nach den jeweils festgelegten Fraktionen trennt und in den für die jeweiligen Fraktionen vorgesehenen Abfallsammelbehältern und -vorrichtungen entsorgt.
§ 32 Inkrafttreten
Diese Satzung tritt am Tage nach ihrer Bekanntmachung in Kraft.
Gleichzeitig treten die Großmarkthallen-Satzung vom 3. Dezember 2003 (MüABl. S. 438), zuletzt geändert durch Satzung vom 12. Dezember 2006 (MüABl. S. 491), die Schlachthofsatzung vom 20. Dezember 2005 (MüABl. S. 527), zuletzt geändert durch Satzung vom 12. Dezember 2006 (MüABl. S. 493), und die Lebensmittelmarktsatzung vom 3. Dezember 2003 (MüABl. S. 445), zuletzt geändert durch Satzung vom 12. Dezember 2006 (MüABl. S. 492), außer Kraft.
